Обеспечивают просмотр содержимого сайта и получение доступа к функционалу. Данный вид cookies используется только для корректной работы сайта и не передается третьим лицам. Отключении невозможно без нарушения функционирования сайта.
Аналитические cookie-файлы
Помогают нам улучшить производительность сайта, ваш опыт использования сайта и сделать его более удобным для использования. Информация, которую собирают этот вид cookies агрегатируется и по этой причине анонимна. Применяются в целях предоставления статистических показателей использования сайта без идентификации пользователей.
Рекламные cookie-файлы
Позволяют нам снижать наши маркетинговые расходы и улучшать пользовательский опыт.
Realting.com использует файлы cookie для улучшения вашего взаимодействия с веб-сайтом. Вы можете настроить, какие файлы cookie будут сохраняться на вашем устройстве.
Узнать больше
Инвестиции в производство мирового уровня: Готовый бизнес-комплекс в Калининграде
Предлагаем к приобретению уникальный производственный актив на 1-й линии ключевой транспортной артерии Калининграда (ул. Дзержинского). Это объект с подтвержденной доходностью, объединяющий современную инфраструктуру и премиальное производство мебели по итальянским технологиям.
Ключевые преимущества: Стратегическая локация: Участок 2,8 Га на первой линии с трафиком 10 000 авто/сутки. Мощный ресурс: Собственная подстанция на 1416 кВт редкое преимущество для производственных площадок. Инфраструктурная автономия: Газопровод высокого давления, своя котельная, артезианская скважина.
Готовый доход: Стабильный арендный поток от якорных резидентов с перспективой роста.
Параметры объекта:
Общая площадь строений: более 4000 кв.м (АБК, цеха, мастерские).
Земля в собственности (категория: земли населенных пунктов, ВРИ: легкая промышленность).
Форма сделки: Продажа комплекса за 150 000 000 или покупка доли 51% в действующем бизнесе.
Возможна Аренда с последующем выкупом
Это предложение для тех, кто ищет качественный актив с быстрой окупаемостью и потенциалом масштабирования.
Узнайте подробности и запишитесь на просмотр!
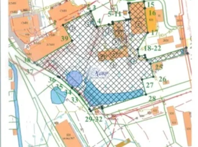
Площадь участка: 28375 кв.м категория: земли населенных пунктов; ВРИ лёгкая промышленность
9 объектов:
-Нежилое здание (административно-производсвенно-бытовое здание), 2 этажа, общая площадь 1340,6 кв.м
- нежилое здание (котельная), 1 этаж, площадь 559,4 кв.м
- нежилое здание (производственное, мастерские), 2 этажа, площадь 2147,6 КВ.м
- нежилое здание (компрессорная), 1 этаж, площадь 12,6 КВ.м
- нежилое здание (насосной станции), 1 этаж, площадь 13,6 КВ.м
- сооружение
- сооружение (газопровод высокого давления(
- сооружение (артезианская скважина) Объект №26256-33055.
Вы можете поделиться рекомендацией в своих социальных сетях
Скопировать URL
Поделитесь рекомендацией!
Зачем рекомендовать?
Вы можете поделиться рекомендацией в своих социальных сетях
Скопировать URL
Объект не отображается в блоке ваших рекомендаций. Добавьте его в рекомендации, чтобы он появился на вашей странице
Добавить в мои рекомендации
Данный объект сохранен в ваших рекомендациях Realting. Чтобы удалить его из рекомендаций, перейдите по ссылке ниже
Удалить из рекомендаций
Требуется авторизация
Вы должны быть зарегистрированным пользователем, чтобы полноценно работать с избранным, а также иметь возможность просматривать и делиться тем, что вы добавили в избранное.