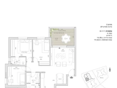
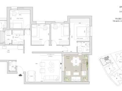
New buildings for sale in Jerusalem Subdistrict

;
Search for new buildings
Hide
Search for new buildings
Search parameters
Sort
John TaylorJohn Taylor TekceTekce
1 2