Capital house 65 m2 near Fanipol: monolithic reinforced concrete, gas in ST, 26 km from Minsk
Address: ST Pyatigorje-3
❤️ House 65 m2 in ST Pyatigorye-3 between Fanipol and Dzerzhinsk. Base - 2 monolithic apartment blocks, brick cladding. Gas in ST, lake and forest nearby.
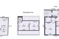
- The house with a total area of 65 m2 (including a kitchen of 9.2 m2) is located in the Pyatigorye-3 station between Fanipol and Dzerzhinsk. The basis of the building is two residential monolithic blocks: walls, ceilings and floors are made of solid concrete. Outside, the structure is lined with brick. This solution provides high strength, durability and the effect of "thermos": the first floor retains heat even in winter. All windows are double-chamber windows. The interior decoration is made qualitatively, the house is well maintained and does not require capital investment.
- The layout includes five rooms. On the first level - 3 living rooms, a corridor with stairs and a kitchen. There is room for shower and bathroom equipment.
The second floor is two bedrooms separated by a partition adjacent to the stove pipe: heat spreads evenly throughout both rooms. Entrance is supported by a full door, not a hatch. The second level is not insulated, but there is access under the roof for future insulation laying. The house has an oven with a cooking surface and an oven: it is able to warm the whole house in cool weather and create a pleasant microclimate. Thanks to the monolithic design, the ground floor will be warm even in winter.
- Water supply is seasonal, electricity is connected. The main gas passes through the territory of the ST - if desired, it can be carried out and connected. The plot of 6 acres is located on a hill: dry all year round, without the risk of flooding. The territory is flat, fenced with a fence, sown with a lawn. Soils are favorable for planting. The entrance is a gate with a width of 3 meters, convenient for any equipment. The driveways are in good condition.
Location and infrastructure
- ST "Pyatigorye-3" is located between Fanipol and Dzerzhinsk - this gives access to the infrastructure of both cities: schools, gardens, shops, polyclinics in short transport accessibility. Minsk is 26 km away, mainly along the M1 highway. Railway station "Pyatigorye" at 1.2 km: trains and trains on schedule. The bus stop in Krysovo is less than 1 km. There's a car shop coming in twice a week. Nearby - a pine forest with paths and mushroom places, within walking distance - a forest lake with swans, a beach and the possibility of fishing.
❤️Capital house with monolithic reinforced concrete base and brick cladding. It does not require capital investment and is ready for operation. Gas in CT - there is a possibility of connection. Land on a hill, dry territory, convenient entry. The location between Fanipol and Dzerzhinsk, with good transport accessibility and all natural advantages - the forest and the lake are nearby. The object is for those who appreciate the reliability of the design, thoughtful planning and the potential for year-round living. We invite you to view for a personal assessment of the quality and atmosphere.
❤️ Are you looking for a profitable property or want to sell yours? We will solve this for you with care and professionalism:
- Buy an apartment or house in Minsk and the region
- Sell property at a bargain price
- Get a mortgage, family capital or loan to buy real estate
- Help with real estate investments
- Choose a design repair or redevelopment
- Choose the best bank for a profitable loan and leasing
* Write us in a convenient messenger - Viber, Telegram or WhatsApp, and we will answer all questions!
❤️ My 7Y will solve it like it does for its family: with love, care and the result it wants!
Real Estate Agency LLC "International Real Estate Center My 7Ya" | UNP 193750826 | License: No 02240/484 issued by MJ RB 18.05.2024 | Insurance Certificate BR 0005017
Contract number with the agency 245/1 from 2026-03-26