Дом 48 м² Радовичи, Черногория

Радовичи, Черногория
$540,577
$11,262/м²
;
In CRM: 4421
ID объявления на сайте или в CRM компании
Дата обновления: 24.05.2024

Местонахождение

  • Страна
    Черногория
  • Район
    Община Тиват
  • Деревня
    Радовичи

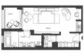
Характеристики объекта

Параметры здания

  • Общая площадь
    Общая площадь
    48 м²

Описание

Тиватская ривьера, полуостров Луштица. Новые квартиры от Застройщика Застройщик предоставляет гибкую схему оплаты, по разным объектам – от трёх до пяти лет!!! Элитный город на полуострове, это: Центр яхтинга и гастрономии, шоппинга и уединённого отдыха Население 6000 человек Апартаментов премиум класса - более 3000 Школа, стоматология, спортивный центр, бассейн, коммерческий центр Виллы премиум – класса 300 Отели 5* - семь Набережная, протяженностью 4900м. Круглосуточная охрана Индивидуальная парковка Четыре полностью оборудованных современных пляжей, три морских лаунжа и теннисные корты, поля для пляжного волейбола Две яхтенные марины, с возможностью бункеровки судов, с общей численностью стояночных мест 220 – для сорока пяти метровых яхт Поле для гольфа – единственное в Черногории 18-луночное поле, спроектированное дизайн-студией Гарри Плейера Потрясающие пейзажи природы полуострова Всё продумано с учётом максимальных возможностей для отдыха на свежем воздухе: панорамные окна, просторные террасы, сады с фруктовыми деревьями и палисадники с буйной средиземноморской растительностью, множество открытых бассейнов, шикарная прогулочная набережная с множеством ресторанов высокой кухни Высочайшее качество строительных и отделочных работ, современный дизайн, отделочные материалы и оборудование от производителей мировых брендов, натуральный камень, мягкие ткани и натуральное дерево Покой и безмятежность Инфраструктура способна удовлетворить любые запросы: продуктовые магазины, аптеки, дистрибуторы товаров для яхтинга, банковские услуги, инвестиционные компании, продавцы яхт, автомобилей и гидроциклов, морское такси, Вы можете здесь инвестировать в Шотландский виски и в другие интересные проекты. Здесь работают мастера маникюра и педикюра высокого класса, косметические салоны, салоны СПА, стилисты и парикмахеры, секция йоги Квартиры-студии: Количество предлагаемых к продаже - 3 Спален – 0 Площадь – 48 кв.м. Вид на море Цена: 500000 евро Квартиры сданы в эксплуатаци. Апартаменты с одной и с двумя спальнями: Количество предлагаемых к продаже - 20 Спален – одна или две Площадь – от 64 до 135 кв.м. Вид на море Эксклюзивная территория использования – от 0 до 74 кв.м. кв.м. Цены: от 328500 до 1077500 евро Срок ввода в эксплуатацию – по разным апартаментам – июль 2023, 2024, 2025 декабрь 2023, 2024, 2025 Апартаменты с двумя и с тремя спальнями: Количество предлагаемых к продаже - 9 Спален – две или три Площадь – от 117 до 157 кв.м. Эксклюзивная территория использования – от 31 до 89 кв.м. кв.м. Вид на море Цены: от 933000 до 1350000 евро Срок ввода в эксплуатацию – декабрь 2025 Вилла: Количество предлагаемых к продаже - 1 Спален – три Площадь – 371,33 кв.м. Эксклюзивная территория использования – 1352,69 кв.м. Вид на море Цена: 3977000 евро Срок ввода в эксплуатацию – декабрь 2024 Таунхаусы: Количество предлагаемых к продаже - 2 Спален – три Площадь – 214 кв.м., и 217 кв.м. Вид на море Цена: 1847000 евро, и 1820000 евро Срок ввода в эксплуатацию – декабрь 2025 Здесь постоянно проводятся концерты с участием звёзд мирового масштаба, спортивные фестивали, гастрономические фестивали, показы мод, концерты, театральные представления, выставки искусств и кулинарные мастерские, парусные регаты, волейбольные матчи и турниры по бочче, занятия по приготовлению пиццы и мастер-классы по выпеканию печенья Все аэропорты Черногории имеют международный статус, и обслуживают прямые рейсы из всех стран мира. На сегодняшний день, счастливыми владельцами апартаментов, вилл и таунхаусов, стали граждане 46 стран мира Наше конкретное предложение: А-211 Статус – завершено, введено в эксплуатацию Квартира-студия Площадь 48,12 кв.м., в том числе: - площадь террасы 5,53 кв.м. Вид на море Цена 500000 евро Условия оплаты: - 25% при заключении Договора, 75% - ежеквартальные платежи в течение трёх лет В предложении – три идентичных квартиры Недвижимость у моря с грамотной локацией теперь рассматривают как объекты инвестиций с круглогодичной (а не сезонной) доходностью. Вкладывать средства в недвижимость на берегу моря стало как никогда выгодно.

Местонахождение на карте

Радовичи, Черногория
Продуктовые магазины
Еда и напитки
Досуг

Калькулятор ипотеки

Процентная ставка, %
Срок кредитования, лет
Стоимость жилья
Первоначальный взнос, %
{{ initialPaymentCurrency }} USD
Обратите внимание! Вы изменили параметр стоимости жилья на {{ differentPrice }}%. Это влияет на актуальность расчета ежемесячных платежей для текущего объекта недвижимости. Вернуть обратно
Процентная ставка
{{ loanPercentValue.toLocaleString() }} %
Процентная ставка
Сумма кредита
{{ mortgageAmount }} USD
Сумма кредита
Срок
{{ loanPeriodValue | pluralizeRu("год", "года", "лет") }}
Срок
Ежемесячный платеж
{{ paymentPerMonth }} USD
Ежемесячный платеж
Задайте все интересующие вопросы
Отправьте Вашу заявку агенту
Спасибо! Ваша заявка принята
Хочу посмотреть этот объект. Актуальна ли стоимость объекта? Хочу получить больше информации об объекте. Какие условия покупки для иностранцев? Хотел бы посмотреть больше фото/видео. Возможна ли покупка в кредит/ипотеку? Получу ли я ВНЖ при покупке недвижимости?
Назад Оставить заявку
Похожие объекты
Вилла в Radenovici, Черногория
Вилла
Radenovici, Черногория
Количество спален 3
Кол-во ванных комнат 2
Площадь 216 м²
Thisvilla for saleis located in village Blizikuće – Carsko selo,in Budva municipality. Blizi…
$472,480
Оставить заявку
Закрыть
Пожалуйста, скажите продавцу, что Вы нашли это объявление на Realting.com
Агентство
International Property Alerts
Языки общения
English
Вилла в Шушань, Черногория
Вилла
Шушань, Черногория
Количество спален 1
Кол-во ванных комнат 1
Площадь 138 м²
Welcome to Villa Ariana, a stunning one-bedroom retreat within “The View” – a prestigious en…
$531,540
Оставить заявку
Закрыть
Пожалуйста, скажите продавцу, что Вы нашли это объявление на Realting.com
Агентство
International Property Alerts
Языки общения
English
Дом 2 спальни в Херцег-Нови, Черногория
Дом 2 спальни
Херцег-Нови, Черногория
Количество спален 2
Кол-во ванных комнат 3
Площадь 200 м²
Предлагаем на продажу новую виллу, расположенную в пос. Зеленика (Герцег-Нови), всего в 300 …
$493,766
Оставить заявку
Закрыть
Пожалуйста, скажите продавцу, что Вы нашли это объявление на Realting.com
Агентство
First Realty
Языки общения
English, Русский, Српски, Crnogorski
Дом 2 спальни в Skaljari, Черногория
Дом 2 спальни
Skaljari, Черногория
Количество спален 2
Площадь 170 м²
Villa for Sale in Škaljari, Kotor — Comfort, Style, and a Great LocationBeautiful villa of 1…
$609,224
Оставить заявку
Закрыть
Пожалуйста, скажите продавцу, что Вы нашли это объявление на Realting.com
Агентство
Mbroker
Языки общения
English, Русский, Українська, Српски, Hrvatski, Crnogorski
Вилла в Будва, Черногория
Вилла
Будва, Черногория
Количество спален 3
Кол-во ванных комнат 2
Площадь 160 м²
Новая стильная вилла площадью 160 м² расположена на участке 350 м² в спокойном жилом районе …
$522,192
Оставить заявку
Закрыть
Пожалуйста, скажите продавцу, что Вы нашли это объявление на Realting.com
Агентство
Monteonline
Языки общения
English, Русский, Српски
Вилла в Radenovici, Черногория
Вилла
Radenovici, Черногория
Количество спален 3
Кол-во ванных комнат 2
Площадь 114 м²
Discover the epitome of Mediterranean living in these two beautiful small villas in Blizikuć…
$584,694
Оставить заявку
Закрыть
Пожалуйста, скажите продавцу, что Вы нашли это объявление на Realting.com
Агентство
International Property Alerts
Языки общения
English
Дом 3 спальни в Дженовичи, Черногория
Дом 3 спальни
Дженовичи, Черногория
Количество спален 3
Кол-во ванных комнат 2
Площадь 212 м²
Nestled in the tranquil coastal village of Đenovići, at the entrance of the spectacular Bay …
$561,070
Оставить заявку
Закрыть
Пожалуйста, скажите продавцу, что Вы нашли это объявление на Realting.com
Агентство
International Property Alerts
Языки общения
English