1 bedroom apartment 50 m² Warsaw, Poland

Poland, Warsaw
$154,062
$3,063/m²
;
In CRM: 29227
ID of the ad on the website or in the company’s CRM
Last update: 07/11/2025

Location

  • Country
    Poland
  • State
    Masovian Voivodeship
  • City
    Warsaw
  • Address
    Szymona Askenazego, 9
  • Metro
    Targówek Mieszkaniowy (~ 1000 m)
  • Metro
    Trocka (~ 400 m)
  • Metro
    Zacisze (~ 900 m)

Property characteristics

Apartment parameters

  • Price per m²
    Price per m²
    $3,063/m²
  • Floor
    Floor
    6
  • Rooms
    Rooms
    2
  • Bedrooms
    Bedrooms
    1
  • Bathrooms
    Bathrooms
    1
  • Total area
    Total area
    50 m²

Building parameters

  • Number of floors
    Number of floors
    9

Description

For sale 2-room apartment with an area of 50.30 m² in Warsaw, Targówek

Description
We offer for sale a bright, dual-aspect apartment with excellent investment potential, located just 200 meters from the Trocka metro station. The property is on the 6th floor of a 9-story, insulated building from 1980 with an elevator. The flexible layout of the partition walls allows for easy space modification and the creation of a dream layout, e.g., a spacious bedroom with an additional relaxation zone. The apartment is ideal both for living and for rental investment.

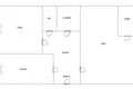
Layout

  • Living room: 19 m² with access to an enclosed balcony (loggia, approx. 4 m²)

  • Separate, bright kitchen: 9 m²

  • Bedroom/Office: 10 m²

  • Bathroom: 2.8 m² with a bathtub

  • Separate toilet: 1.5 m²

  • Entrance hall: 8 m² with spacious wardrobes

  • Basement: approx. 2.5 m² (included in the price)

Key Advantages

  • Excellent location: only 200 m (3 minutes) from the Trocka metro station and bus stops

  • Flexible layout: possibility for easy room modification and adaptation to your own needs

  • Very good transport: quick access to the city center and main universities (UW, PW, WUM)

  • Full infrastructure in the immediate vicinity: shops (Lidl, Rossman), a market, schools, clinics, pharmacies, recreational facilities

  • Building after thermal modernization, with an elevator and replaced installations

  • Balcony (loggia) with southern exposure and basement included in the price

  • Condition: Requires refreshing, with great potential

  • Maintenance fee: approx. 930 PLN (including renovation fund)

  • Year of construction: 1980

  • Floor: 6/9

This is an offer for those looking for an apartment with huge potential in a well-connected location, ready to become a dream home or an excellent investment.

]]>

Location on the map

Poland, Warsaw
Education
Healthcare

Mortgage calculator

Interest rate, %
Loan term, years
Property cost
Down payment, %
{{ initialPaymentCurrency }} USD
Please note! You changed the property cost parameter to {{ differentPrice }}%. This affects the relevance of the calculation of monthly payments for the current property. Return
Interest rate
{{ loanPercentValue.toLocaleString() }} %
Interest rate
Loan amount
{{ mortgageAmount }} USD
Loan amount
Period
{{ loanPeriodValue | pluralize("year", "years") }}
Period
Monthly payment
{{ paymentPerMonth }} USD
Monthly payment
MIPIF
Ask all your questions
Send your request to the agent
Thank you! Your request has been accepted
I want to view this property. Is the price of the property relevant? I want more information about the property. What are the purchase conditions for foreigners? I want to see more photos/videos. Is it possible to buy with a loan/mortgage? Will I get a residence permit if I buy a property?
Back Leave a request Show contacts
Similar properties
2 room apartment in Poznan, Poland
2 room apartment
Poznan, Poland
Rooms 2
Area 34 m²
Unique address in the heart of Poznań – just a few minutes walk from the Old Market Square o…
$147,505
Leave a request
Close
Please tell the seller that you found this ad on Realting.com
Agency
Zaitseva Estates
Languages
Русский, Polski
2 room apartment in Krakow, Poland
2 room apartment
Krakow, Poland
Rooms 2
Area 43 m²
For sale apartment 43m2, 2 rooms, separate kitchen, MPEC, after replacing the electrical ins…
$142,293
Leave a request
Close
Please tell the seller that you found this ad on Realting.com
Agency
Zaitseva Estates
Languages
Русский, Polski
2 room apartment in Krakow, Poland
2 room apartment
Krakow, Poland
Rooms 2
Area 36 m²
Bright 2 rooms with a large balcony on the quiet Kliny, ready for introduction, Harmonia estate
$150,241
Leave a request
Close
Please tell the seller that you found this ad on Realting.com
Agency
Zaitseva Estates
Languages
Русский, Polski
3 room apartment in Kostrzyn, Poland
3 room apartment
Kostrzyn, Poland
Rooms 3
Area 156 m²
I am pleased to present to you an interesting offer of sale of a restaurant with a residenti…
$158,725
Leave a request
Close
Please tell the seller that you found this ad on Realting.com
Agency
Zaitseva Estates
Languages
Русский, Polski
2 room apartment in Warsaw, Poland
2 room apartment
Warsaw, Poland
Rooms 2
Area 39 m²
For sale functional and bright 2-room apartment with an exact area of 38.76 m2 along with a …
$146,632
Leave a request
Close
Please tell the seller that you found this ad on Realting.com
Agency
Zaitseva Estates
Languages
Русский, Polski
2 room apartment in Poznan, Poland
2 room apartment
Poznan, Poland
Rooms 2
Area 44 m²
I strongly recommend the offer of a two-bedroom apartment with an area of 43.70 m2, located …
$145,014
Leave a request
Close
Please tell the seller that you found this ad on Realting.com
Agency
Zaitseva Estates
Languages
Русский, Polski
2 room apartment in Krakow, Poland
2 room apartment
Krakow, Poland
Rooms 2
Area 48 m²
UWAGA NOWA OFERT!
$147,505
Leave a request
Close
Please tell the seller that you found this ad on Realting.com
Agency
Zaitseva Estates
Languages
Русский, Polski
3 room apartment in Gdynia, Poland
3 room apartment
Gdynia, Poland
Rooms 3
Area 53 m²
Cooperative apartment located on the second floor in a block at ul. Lk. Dąbka in Gdynia (Oks…
$160,641
Leave a request
Close
Please tell the seller that you found this ad on Realting.com
Agency
Zaitseva Estates
Languages
Русский, Polski