2 bedroom penthouse Sliema, Malta

Sliema, Malta
Price on request
;
ID: 2114401
Property ID on Realting
In CRM: 20493
ID of the ad on the website or in the company’s CRM
Last update: 06/02/2025

Location

  • Country
    Malta
  • State
    Central Region
  • Town
    Sliema

Property characteristics

Apartment parameters

  • Bedrooms
    Bedrooms
    2

Description

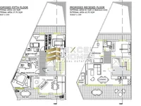
A 2 bedroom Penthouse enjoying an exhilarating atmosphere, close to amenities and Within walking distance to the seafront, Malta's biggest shopping district, and a long parade of fine dining outlets, cafes, bars, salons and more. To be sold finished including bathrooms and doors. Completion date December 2020.

Location on the map

Sliema, Malta
Education
Healthcare
Grocery stores
Food & Drink
Finance
Leisure
Ask all your questions
Send your request to the agent
Thank you! Your request has been accepted
I want to view this property. Is the price of the property relevant? I want more information about the property. What are the purchase conditions for foreigners? I want to see more photos/videos. Is it possible to buy with a loan/mortgage? Will I get a residence permit if I buy a property?
Back Leave a request
Similar properties