Provide viewing of site content and gaining access to functionality. This type of cookies is used only for the correct operation of the site and is not transferred to third parties. Disabling is impossible without disrupting the functioning of the site.
Analytical cookies
Help us improve the performance of the site, your experience of using the site and making it more convenient to use. The information that these types of cookies collect is aggregated and for this reason anonymous. Used to provide statistical indicators of site use without identifying users.
Advertising cookies
Allow us to reduce our marketing costs and improve user experience.
Realting.com uses cookies to improve your interaction with the website. You can configure which cookies will be saved on your device.
Learn more
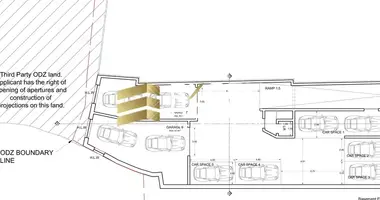
Introducing Your Future Home in Dingli Modern Apartments and Penthouses in a Prime Location
Discover the perfect investment or dream home in the highly sought-after area of Dingli, where lifestyle meets convenience and long-term value. This brand-new apartment block is currently being built and will be offered in shell form, giving buyers the flexibility to design and finish their property to their own personal taste. Starting from 85sqms.
Key Features:
Penthouses starting from 285,000 well-planned, modern layouts ready to be customized.
Garages available from 35,000 secure parking with convenient access.
Optional finishes available including bathrooms, flooring, doors, and other internal finishes, allowing you to tailor the apartment to your budget and style.
Prime Dingli location set in one of the most sought-after residential areas, known for its tranquility, open views, and close proximity to everyday amenities.
Ideal for both homeowners and investors, this development offers a rare opportunity to secure a property in Dingli, an area renowned for its strong demand and excellent capital appreciation.
Contact us today for more information and to secure your unit early.