Wohnung 2 zimmer 67 m² Demirtas Koyu, Türkei

Demirtas Koyu, Türkei
$137,426
$2,051/m²
;
In CRM: 2021
ID der Anzeige auf der Website oder im CRM des Unternehmens
Letzte Aktualisierung: 23.08.24

Standort

  • Grundstück
    Türkei
  • Region / Bundesland
    Zentralanatolien
  • Nachbarschaft
    Ürgüp
  • Dorf
    Demirtas Koyu

Objekteigenschaften

Angaben zu den Wohnungen

  • Preis pro m²
    Preis pro m²
    $2,051/m²
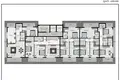
  • Stockwerk
    Stockwerk
    1
  • Rooms:
    Rooms:
    2
  • Bedrooms:
    Bedrooms:
    1
  • Bathrooms:
    Bathrooms:
    1
  • Gesamt fläche
    Gesamt fläche
    67 m²

Gebäudedaten

  • Etagenzahl
    Etagenzahl
    7

Beschreibung

Zur Miete. Für Investitionen Was Sie erhalten: Apartments und Penthäuser in einem neuen Komplex im Stadtteil Demirtas, Alanya. Auf dem Bau: Der Bau des Komplexes ist für März 2023 geplant, und die Fertigstellung des Baus ist für März 2024 geplant. Interessante Raten sind in Kraft. Demirtas ist eine ruhige, ökologisch saubere Gegend 10 km vom Zentrum von Mahmutlar, 20 km vom Zentrum von Alanya und 20 km vom Flughafen Gazipasha, an der Mittelmeerküste, umgeben von den Toros Bergen. Die Gegend hat wunderbare Strände, an denen es wenige Urlauber, sauberes Meerwasser und Nadelwälder gibt. In der Nähe befindet sich der berühmte Sapadere Canyon. Was kommt als nächstes? In Gehdistanz gibt es Geschäfte mit wesentlichen Gütern und Stadtverkehr Haltestellen in Richtung Alanya und Mahmutlar. Der Komplex besteht aus 1 Wohnblock für 30 Wohnungen. Auf dem geschlossenen, angelegten Gebiet des Komplexes gibt es einen Außenpool, einen Spielplatz, Arbors zur Erholung, einen Erholungsbereich und einen Grill, eine finnische Sauna, Tischtennis, Fitness, offene Parkplätze. Innen: Apartments des folgenden Layouts sind verfügbar:
1+1 mit einer Fläche von 67 m2;
2+1 Penthouses mit einer Fläche von 140 m2;
3+1 Penthäuser von 160 m2.

Die Apartments sind im kompletten Finish mit einem Küchenset und ausgestatteten Badezimmern gemietet.

Wir helfen Ihnen, schöne Möbel und hochwertige Geräte für Ihr Haus zu wählen, als Teil eines kostenlosen After-Sales-Service von unserem Unternehmen. Wer kann interessant sein: Wohnungen im Bereich Demirtas, für Investitionen, im Bau, billiger als der Marktpreis, in der Nähe des Zentrums von Alanya, dem Flughafen.

Standort auf der Karte

Demirtas Koyu, Türkei

Hypotheken-Rechner

Zinssatz, %
Laufzeit des Darlehens, jahre
Kosten der Immobilie
Erste Zahlung, %
{{ initialPaymentCurrency }} USD
Bitte beachten Sie! Sie haben den Parameter Wohnkosten geändert in {{ differentPrice }}%. Dies wirkt sich auf die Relevanz der Berechnung der monatlichen Zahlungen für die aktuelle Immobilie aus. Zurücklegen
Zinssatz
{{ loanPercentValue.toLocaleString() }} %
Zinssatz
Darlehensbetrag
{{ mortgageAmount }} USD
Darlehensbetrag
Termin
{{ loanPeriodValue | pluralize("jahr", "jahre") }}
Termin
Monatliche Zahlung
{{ paymentPerMonth }} USD
Monatliche Zahlung
Stellen Sie alle Fragen, die Sie haben
Die Anfrage an den Makler senden
Danke! Ihre Anfrage ist eingegangen
Ich möchte diese Einrichtung sehen. Ist der Immobilienwert aktuell? Ich möchte mehr Informationen über das Objekt. Welche Kaufbedingungen gelten für Ausländer? Möchte mehr Fotos/Videos sehen. Ist ein Kauf auf Kredit/Hypothek möglich? Ist es möglich, eine Aufenthaltsgenehmigung zu erhalten?
Zurück zu Eine Anfrage hinterlassen
Ähnliche Objekte
Condo 1 zimmer in Hasan Pasa Sokagi, Türkei
Condo 1 zimmer
Hasan Pasa Sokagi, Türkei
Zimmer 1
Schlafräume 2
Anzahl der Badezimmer 1
Fläche 98 m²
Stockwerk 1/3
Bayrampaşa, Muratpaşa Mahallesi'nde Satılık 2+1 Daire   Şirketimiz bu mülkün satışında…
$150,000
Eine Anfrage stellen
Schließen
Bitte lassen Sie mich wissen, dass Sie diese Anzeige auf Realting.com
Immobilienagentur
TURK KEY
Sprachen
English
Condo 1 zimmer in Didim, Türkei
Condo 1 zimmer
Didim, Türkei
Zimmer 1
Schlafräume 2
Anzahl der Badezimmer 1
Fläche 80 m²
Stockwerk 2/3
AUSKLUSIVE SALE AUTHORIZIERTEN UNSERE GENTURFür detaillierte Informationen und eine professi…
$152,062
Eine Anfrage stellen
Schließen
Bitte lassen Sie mich wissen, dass Sie diese Anzeige auf Realting.com
Immobilienagentur
TURK KEY
Sprachen
English
Wohnung 3 Schlafzimmer in Alanya, Türkei
Wohnung 3 Schlafzimmer
Alanya, Türkei
Schlafräume 3
Anzahl der Badezimmer 2
Fläche 105 m²
Some apartments tell their story the moment you see the photos. This 105 m² space at Alcon 9…
$157,653
Eine Anfrage stellen
Schließen
Bitte lassen Sie mich wissen, dass Sie diese Anzeige auf Realting.com
Immobilienagentur
International Property Alerts
Sprachen
English
Wohnung 2 Schlafzimmer in Alanya, Türkei
Wohnung 2 Schlafzimmer
Alanya, Türkei
Schlafräume 2
Anzahl der Badezimmer 1
Fläche 100 m²
Property for sale in Avsallar Property for sale in Avsallar – This apartment for sale in Avs…
$135,033
Eine Anfrage stellen
Schließen
Bitte lassen Sie mich wissen, dass Sie diese Anzeige auf Realting.com
Immobilienagentur
International Property Alerts
Sprachen
English
Wohnung 3 Schlafzimmer in Mahmutlar, Türkei
Wohnung 3 Schlafzimmer
Mahmutlar, Türkei
Schlafräume 3
Anzahl der Badezimmer 2
Fläche 90 m²
In der lebhaften Stadt Mahmutlar, Alanya, eingebettet, lädt dieses exquisite Anwesen Sie ein…
$120,943
Eine Anfrage stellen
Schließen
Bitte lassen Sie mich wissen, dass Sie diese Anzeige auf Realting.com
Immobilienagentur
International Property Alerts
Sprachen
English
Wohnung 2 Schlafzimmer in Alanya, Türkei
Wohnung 2 Schlafzimmer
Alanya, Türkei
Schlafräume 2
Anzahl der Badezimmer 1
Fläche 45 m²
Willkommen in Ihrem Traumhaus im sonnigen Paradies von Alanya! Diese außergewöhnliche 1+1 Re…
$127,290
Eine Anfrage stellen
Schließen
Bitte lassen Sie mich wissen, dass Sie diese Anzeige auf Realting.com
Immobilienagentur
International Property Alerts
Sprachen
English
Wohnung 3 Schlafzimmer in Mahmutlar, Türkei
Wohnung 3 Schlafzimmer
Mahmutlar, Türkei
Schlafräume 3
Anzahl der Badezimmer 2
Fläche 130 m²
Furnished 3-Room Apartment for Sale in Rose Tower, Mahmutlar – Just 750m from the Beach This…
$145,975
Eine Anfrage stellen
Schließen
Bitte lassen Sie mich wissen, dass Sie diese Anzeige auf Realting.com
Immobilienagentur
International Property Alerts
Sprachen
English
Wohnung 3 Schlafzimmer in Kargıcak, Türkei
Wohnung 3 Schlafzimmer
Kargıcak, Türkei
Schlafräume 3
Anzahl der Badezimmer 2
Fläche 125 m²
2+1 apartment for sale in Tulip Tower, Mahmutlar — just 500 meters from the sea and close to…
$156,485
Eine Anfrage stellen
Schließen
Bitte lassen Sie mich wissen, dass Sie diese Anzeige auf Realting.com
Immobilienagentur
International Property Alerts
Sprachen
English