Oficina 190 m² en Montenegro, Montenegro

Montenegro
$1,693
$9/m²
;
ID: 3592080
ID de propiedad en Realting
In CRM: 24406
ID del anuncio en el sitio web o en el CRM de la empresa
Última actualización: 29/8/25

Localización

  • País
    Montenegro

Características del objeto

Detalles de la propiedad

  • Precio por m²
    Precio por m²
    $9/m²
  • Área total
    Área total
    190 m²

Descripción

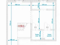
Un espacio comercial totalmente renovado y equipado de 190 m2 está disponible en alquiler, situado en una ubicación muy atractiva cerca del centro comercial Delta City, justo enfrente de City Kvart, el nuevo Voli Center, y el próximo supermercado Lidl.

El espacio se distribuye en tres niveles:

· Planta baja – 72 m2

· Primera planta – 72 m2

· Sótano – 45 m2

Características clave:

· Dos entradas separadas (una frente a la calle y otra que conduce a la zona de aparcamiento)

· Zona verde/garden frente a la entrada

· Aparcamiento gratuito junto al edificio

· Dos baños modernos y totalmente equipados

· Cocina y comedor

· Espacio de almacenamiento

· Excelente luz natural en todos los niveles, incluyendo ventanas en el sótano

Equipo y servicios:

· Persianas de seguridad y videovigilancia

· Cerraduras digitales y ventanas/ puertas de PVC

· Seis unidades de aire acondicionado

· Infraestructura de Internet Wi-Fi

· Iluminación LED

· Nuevos armarios empotrados

· Nuevo mobiliario de oficina (disponible a petición)

El espacio está disponible amueblado o sin amueblar, dependiendo de las necesidades del arrendatario, y está destinado a arrendamiento a largo plazo. Es ideal para diversos tipos de negocios, incluyendo oficinas, agencias, prácticas médicas, centros educativos, empresas de TI, oficinas representativas, unidades de alojamiento y más.

Localización en el mapa

Montenegro
Pregunte lo que quiera
Envíe su solicitud al agente
¡Gracias! Su solicitud ha sido aceptada
Quiero ver esta instalación. ¿Está actualizado el valor del inmueble? Deseo más información sobre el inmueble. ¿Cuales las condiciones de compra para extranjeros? Me gustaría ver más fotos/vídeos. ¿Es posible comprar a crédito/hipoteca? ¿Obtendré un permiso de residencia si compro una vivienda?
Volver a Dejar una solicitud
Propiedades similares