Квартира 2 комнаты 54 м² Витебск, Беларусь

Беларусь, Витебск
$57,000
$1,051/м²
;
ID: 3629140
ID объекта на Realting
Дата обновления: 08.10.2025

Местонахождение

  • Страна
    Беларусь
  • Область / штат
    Витебская область
  • Город
    Витебск
  • Адрес
    улица Кирова, 2

Характеристики объекта

Параметры квартиры

  • Цена за м²
    Цена за м²
    $1,051/м²
  • Этаж
    Этаж
    3
  • Количество комнат
    Количество комнат
    2
  • Общая площадь
    Общая площадь
    54 м²

Параметры здания

  • Год сдачи
    Год сдачи
    1960
  • Количество этажей
    Количество этажей
    5

Описание

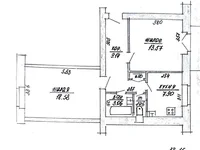
Продаётся двухкомнатная квартира (сталинка) по ул. Кирова, д.2 (дом признан историческим памятником архитектуры). Расположена на 3-ем этаже 5-ти этажного кирпичного дома 1960 года постройки. Общая площадь 54.21 кв.м., жилая 32.15 кв.м., кухня 7.9 кв.м. Комнаты просторные, изолированные, на разные стороны дома. Санузел раздельный. Окна деревянные стеклопакеты. Есть балкон. Высокие потолки - 3,2 м. Входная дверь двойная: металлическая+ деревянная. Полы крепкие, деревянные. Квартиры очень теплая и светлая. Чистый подъезд. Хорошие соседи. Капремонт дома запланирован на 2026 год. Планируемые работы: ремонт кровли, фасада, отмостки, замена внутренних инженерных сетей. Вся инфраструктура в шаговой доступности. Транспортное сообщение в любую точку города. Подробнее по телефону. Звоните! Возможна быстрая продажа. 
Договор № 166/1 от 08.10.2025 г. ООО «Агентство Мир Недвижимости». УНП 391910445. Лицензия Министерства юстиции Республики Беларусь №02240/385 от 15.10.2019 (бессрочна) на право осуществления деятельности по оказанию юридических услуг – риэлтерские услуги.

Номер договора с агентством 166/1 от 2025-10-08

Местонахождение на карте

Беларусь, Витебск
Образование
Здравоохранение

Калькулятор ипотеки

Процентная ставка, %
Срок кредитования, лет
Стоимость жилья
Первоначальный взнос, %
{{ initialPaymentCurrency }} USD
Обратите внимание! Вы изменили параметр стоимости жилья на {{ differentPrice }}%. Это влияет на актуальность расчета ежемесячных платежей для текущего объекта недвижимости. Вернуть обратно
Процентная ставка
{{ loanPercentValue.toLocaleString() }} %
Процентная ставка
Сумма кредита
{{ mortgageAmount }} USD
Сумма кредита
Срок
{{ loanPeriodValue | pluralizeRu("год", "года", "лет") }}
Срок
Ежемесячный платеж
{{ paymentPerMonth }} USD
Ежемесячный платеж
Задайте все интересующие вопросы
Отправьте Вашу заявку агенту
Спасибо! Ваша заявка принята
Хочу посмотреть этот объект. Актуальна ли стоимость объекта? Хочу получить больше информации об объекте. Какие условия покупки для иностранцев? Хотел бы посмотреть больше фото/видео. Возможна ли покупка в кредит/ипотеку? Получу ли я ВНЖ при покупке недвижимости?
Назад Оставить заявку
Похожие объекты
Квартира 2 комнаты в Жодино, Беларусь
Квартира 2 комнаты
Жодино, Беларусь
Число комнат 2
Площадь 51 м²
Этаж 4/9
2-комнатная квартира в центре Жодино  ❤️ Просторная двухкомнатная квартира в центре Жодино -…
$57,900
Оставить заявку
Закрыть
Пожалуйста, скажите продавцу, что Вы нашли это объявление на Realting.com
Агентство
Центр международной недвижимости Моя 7Я
Языки общения
English, Русский
Квартира 3 комнаты в Борисов, Беларусь
Квартира 3 комнаты
Борисов, Беларусь
Число комнат 3
Площадь 87 м²
Этаж 3/6
Редкая находка: двухуровневая квартира  ❤️ Уникальное предложение: двухуровневая трёхкомнатн…
$56,900
Оставить заявку
Закрыть
Пожалуйста, скажите продавцу, что Вы нашли это объявление на Realting.com
Агентство
Центр международной недвижимости Моя 7Я
Языки общения
English, Русский
Квартира 1 комната в Минск, Беларусь
Квартира 1 комната
Минск, Беларусь
Число комнат 1
Площадь 35 м²
Этаж 1/9
Светлая квартира возле парков и ст.м. "Каменная Горка" ❤️Отличный вариант, как для инвестора…
$63,900
Оставить заявку
Закрыть
Пожалуйста, скажите продавцу, что Вы нашли это объявление на Realting.com
Агентство
Центр международной недвижимости Моя 7Я
Языки общения
English, Русский
Квартира 1 комната в Минск, Беларусь
Квартира 1 комната
Минск, Беларусь
Число комнат 1
Площадь 30 м²
Этаж 10/25
Светлая квартира в новом доме с отличной инфраструктурой ❤️Квартира в доме «Мадрид» - это во…
$64,000
Оставить заявку
Закрыть
Пожалуйста, скажите продавцу, что Вы нашли это объявление на Realting.com
Агентство
Центр международной недвижимости Моя 7Я
Языки общения
English, Русский
Квартира 2 комнаты в Сёмково, Беларусь
Квартира 2 комнаты
Сёмково, Беларусь
Число комнат 2
Площадь 56 м²
Этаж 2/2
2-комнатная квартира с качественным ремонтом  ❤️ Готовая к проживанию двухкомнатная квартира…
$57,900
Оставить заявку
Закрыть
Пожалуйста, скажите продавцу, что Вы нашли это объявление на Realting.com
Агентство
Центр международной недвижимости Моя 7Я
Языки общения
English, Русский
Квартира 3 комнаты в Нарочь, Беларусь
Квартира 3 комнаты
Нарочь, Беларусь
Число комнат 3
Площадь 64 м²
Этаж 1/4
Просторная 3-комн. квартира на первом этаже в курортном посёлке Нарочь ❤️Уютная квартира для…
$59,900
Оставить заявку
Закрыть
Пожалуйста, скажите продавцу, что Вы нашли это объявление на Realting.com
Агентство
Центр международной недвижимости Моя 7Я
Языки общения
English, Русский