Umożliwiają przeglądanie zawartości witryny i uzyskiwanie dostępu do funkcjonalności. Tego typu pliki cookies wykorzystywane są wyłącznie w celu prawidłowego działania serwisu i nie są przekazywane podmiotom trzecim. Wyłączenie nie jest możliwe bez zakłócenia funkcjonowania serwisu.
Analityczne pliki cookie
Pomóż nam ulepszyć wydajność witryny, Twoje doświadczenie korzystania z witryny i uczynić ją wygodniejszą w użyciu. Informacje gromadzone przez tego typu pliki cookie są zbiorcze i dlatego anonimowe. Służy do dostarczania statystycznych wskaźników korzystania z witryny bez identyfikacji użytkowników.
Reklamowe pliki cookie
Pozwól nam obniżyć koszty marketingu i poprawić komfort użytkowania.
Realting.com wykorzystuje pliki cookie, aby usprawnić Twoją interakcję ze stroną internetową. Możesz skonfigurować, które pliki cookies będą zapisywane na Twoim urządzeniu.
Dowiedz się więcej
Excellent investment opportunity.
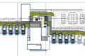
Plot with approved project, with the construction license paid for and valid until 2025, being able to immediately start the construction, for a 4 star hotel, less than 500 meters from the sea, in a privileged location, with superb views to the sea, within walking distance from the centre of the picturesque village of Ferragudo where you can find excellent restaurants, cafes, local shops and several beaches such as Praia do Pintadinho, Molhe and Praia Grande.
Total constructed area: 2000.00m2;
Construction volume: 6000.00m2;
Implementation area: 1291.90sq.m;
Number of floors: 2;
Height: 7,50m;
Number of units: 36 accommodation units.
For further information please contact us.
Ferragudo sits on the mouth of the Arade river, and is said to be one of the prettiest villages in the region. It has a long history, and many vestiges of its past can be seen as you wander around the village. Its cobbled streets are lined with whitewashed houses, given splashes of colour by their vibrant flowers and painted doorways. The harbour is filled with colourful fishing boats and surrounded by some fantastic seafood restaurants and charming cafes. Ferragudo also has a sandy riverside beach with an impressive fortress, Castelo de São João do Arade, sitting just above it.
Po kliknięciu przycisku "Potwierdź" otrzymasz debet w wysokości 50 realtek (5 EUR) na opłatę za Superlink z Twojego salda w myAlpari
Zapłać 5 EUR
Anuluj
Kliknij przycisk "Zapłać", zostaniesz automatycznie przekierowany na stronę doładowania, ponieważ nie masz wystarczającej ilości realtek na swoim saldzie
Superlike!
Ten artykuł został już oznaczony. Aby anulować superlink, kliknij "Anuluj".
Zwróć uwagę, że w przypadku anulowania superlinku, opłaty za zakupy nie zostaną zwrócone.
Usuń
Pozostawić na
Klikając "Unsubscribe" anulujesz superlink bez zwracania jakichkolwiek reelts na swoje saldo.
Udostępnij tę rekomendację!
Otrzymuj procent udanych transakcji, polecając nieruchomość za pomocą poniższych linków!