Mieszkanie 4 pokoi 304 m² Limassol, Cypr

Cypr, Limassol
$2,24M
$7,378/m²
;
In CRM: 54257
Identyfikator reklamy na stronie internetowej lub w firmowym CRM
Data aktualizacji: 5.02.2026

Lokalizacja

  • Kraj
    Cypr
  • Okolica
    Limassol District
  • Miasto
    Limassol

Charakterystyka obiektu

Parametry mieszkania

  • Cena za m²
    Cena za m²
    $7,378/m²
  • Bedrooms:
    Bedrooms:
    4
  • Bathrooms:
    Bathrooms:
    2
  • Powierzchnia całkowita
    Powierzchnia całkowita
    304 m²

Opis

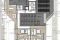
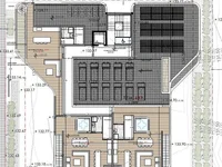
A brand new complex in Agia Fyla, Limassol. The project comprises of 11 units.  Key Features Double glazed windows All around insulation Electrical gate operated with remote control Solar heater with 0.8tn tank Pressure pump system Provision for air-condition SPLIT UNITS Provision for alarm Provision for electric heating units "A+" class building AVAILABILITY Apartment 3rd floor Internal area 234,1 sq.m. Covered veranda 45 sq.m. Uncovered area 32,8 sq.m. Roof garden 136,1 sq.m. Roof garden internal 25 sq.m. Mechanical area 92,2 sq.m. There are more apartments available in this project. Delivery Date: July 2026  

Lokalizacja na mapie

Cypr, Limassol
Edukacja
Opieka zdrowotna

Kalkulator hipoteczny

Stopa procentowa, %
Okres kredytowania, lata
Koszt nieruchomości
Płatność początkowa, %
{{ initialPaymentCurrency }} USD
Uwaga!!! Zmienili Państwo parametr koszt mieszkania na {{ differentPrice }}%. Wpływa to na zasadność wyliczenia miesięcznych płatności za obecną nieruchomość. Odłóż to.
Stopa procentowa
{{ loanPercentValue.toLocaleString() }} %
Stopa procentowa
Kwota pożyczki
{{ mortgageAmount }} USD
Kwota pożyczki
Terminy
{{ loanPeriodValue | pluralize("rok", "lata") }}
Terminy
Płatność miesięczna
{{ paymentPerMonth }} USD
Płatność miesięczna
HayatHayat
Zadaj wszelkie pytania, które możesz mieć
Wysłać wniosek do agenta
Dziękujemy! Zgłoszenie zostało przyjęte
Chcę zobaczyć ten obiekt. Czy wartość nieruchomości jest aktualna? Chciałbym uzyskać więcej informacji na temat nieruchomości. Jakie są warunki zakupu dla cudzoziemców? Chciałbym zobaczyć więcej zdjęć/filmów. Czy można kupić na kredyt/hipotekę? Czy otrzymam pozwolenie na pobyt, jeśli kupię nieruchomość?
Powrót do Zostawić wniosek
Podobne obiekty
Mieszkanie 4 pokoi w Jermasoja, Cypr
Mieszkanie 4 pokoi
Jermasoja, Cypr
Sypialnie 4
Liczba łazienek 4
Piętro 3
4 APARTAMENT SYPIALNICTWA - SPACIOUS RODZINY ŻYCIA Z POPRZEDNIMI PRZYGOTOWAMI Wykonane dla o…
$2,25M
Zostaw prośbę
Zamknij
Proszę, powiedz mi, że znalazłeś to ogłoszenie na Realting.com
Agencja
VIDI GROUP
Języki komunikacji
English, Русский
Mieszkanie 3 pokoi w Jermasoja, Cypr
Mieszkanie 3 pokoi
Jermasoja, Cypr
Sypialnie 3
Liczba łazienek 3
Powierzchnia 134 m²
$2,50M
Zostaw prośbę
Zamknij
Proszę, powiedz mi, że znalazłeś to ogłoszenie na Realting.com
Agencja
VIDI GROUP
Języki komunikacji
English, Русский
Mieszkanie 3 pokoi w Dystrykt Larnaka, Cypr
Mieszkanie 3 pokoi
Dystrykt Larnaka, Cypr
Sypialnie 3
Liczba łazienek 3
Powierzchnia 141 m²
Piętro 5
Ten ekspansywny apartament z trzema sypialniami zapewnia luksusowy, nadmorski styl życia z w…
$2,07M
Zostaw prośbę
Zamknij
Proszę, powiedz mi, że znalazłeś to ogłoszenie na Realting.com
Agencja
VIDI GROUP
Języki komunikacji
English, Русский
Mieszkanie 2 pokoi w Jermasoja, Cypr
Mieszkanie 2 pokoi
Jermasoja, Cypr
Sypialnie 2
Liczba łazienek 2
Powierzchnia 102 m²
Piętro 4
$2,44M
Zostaw prośbę
Zamknij
Proszę, powiedz mi, że znalazłeś to ogłoszenie na Realting.com
Agencja
VIDI GROUP
Języki komunikacji
English, Русский
Mieszkanie 2 pokoi w Limassol, Cypr
Mieszkanie 2 pokoi
Limassol, Cypr
Sypialnie 2
Liczba łazienek 2
Powierzchnia 104 m²
Piętro 17/32
2 Sypialnia luksusowy apartament - Panoramiczne widoki na morze & Nowoczesne Elegancja Ten w…
$2,50M
Zostaw prośbę
Zamknij
Proszę, powiedz mi, że znalazłeś to ogłoszenie na Realting.com
Agencja
VIDI GROUP
Języki komunikacji
English, Русский
Mieszkanie 3 pokoi w Dystrykt Larnaka, Cypr
Mieszkanie 3 pokoi
Dystrykt Larnaka, Cypr
Sypialnie 3
Liczba łazienek 3
Powierzchnia 140 m²
Piętro 9
Ten ekspansywny apartament z trzema sypialniami zapewnia luksusowy, nadmorski styl życia z w…
$2,23M
Zostaw prośbę
Zamknij
Proszę, powiedz mi, że znalazłeś to ogłoszenie na Realting.com
Agencja
VIDI GROUP
Języki komunikacji
English, Русский
Mieszkanie 3 pokoi w Limassol, Cypr
Mieszkanie 3 pokoi
Limassol, Cypr
Sypialnie 3
Liczba łazienek 2
Powierzchnia 110 m²
3 Bedroom / 2 Bathroom Ground Floor Apartment Fully renovated | Luxury gated community | Pri…
$2,02M
Zostaw prośbę
Zamknij
Proszę, powiedz mi, że znalazłeś to ogłoszenie na Realting.com
Agencja
VIDI GROUP
Języki komunikacji
English, Русский
Mieszkanie 3 pokoi w Jermasoja, Cypr
Mieszkanie 3 pokoi
Jermasoja, Cypr
Sypialnie 3
Liczba łazienek 3
Piętro 2
Wielka równowaga między morzem a górami dla spokojnego życia. Zaledwie 5 minut jazdy do pias…
$2,49M
Zostaw prośbę
Zamknij
Proszę, powiedz mi, że znalazłeś to ogłoszenie na Realting.com
Agencja
VIDI GROUP
Języki komunikacji
English, Русский