Стартовал новый пул продаж во втором доме ЖК Гулливер — финальный шанс приобрести квартиру возле метро Пушкинская
Ландшафт района на пересечении улиц Притыцкого и Дунина-Марцинкевича значительно преобразился в последние годы — все благодаря амбициозному проекту ЖК Гулливер. Первый дом комплекса практически полностью реализован — на рынке остались только встроенные коммерческие помещения, доступные до 31 декабря 2025 года. Однако шанс купить жилье в этом удобном районе еще есть, так как продолжаются продажи квартир во втором доме.
Первый дом: что там все еще можно купить
ЖК Гулливер — это не одна высотка, а целый жилой квартал, состоящий из шести зданий. Два из них — монолитные дома повышенного комфорта высотой в 19 этажей каждый, с закрытой двухуровневой подземной гараж-стоянкой. Остальные четыре здания будут возведены по технологии крупнопанельного строительства.

Первая очередь застройки уже демонстрирует жизнеспособность проекта. На момент начала декабря 2025 года практически все жилые квартиры в первом доме нашли своих собственников.
Что осталось в продаже: встроенные коммерческие помещения на 1-м этаже с отдельными входами и высокими потолками до 5,5 м. Эти помещения идеальны для запуска небольшого бизнеса: кафе, салона красоты, консультационного центра или офиса.

Схема встроенных помещений для бизнеса
Первый дом имеет 5 подъездов, 19 этажей (с жилыми помещениями на 18 этажах) и вместимость 360 квартир. В первой секции были предложены квартиры с чистовой отделкой. Остальные секции — в варианте черновой отделки, что позволило снизить стоимость для покупателей, готовых провести собственный ремонт.
Второй дом: что там продают сейчас и по каким ценам
После успеха первой очереди логично предположить, что второй дом вызовет не меньший интерес. Проектная декларация для 2-го дома была опубликована 8 июля 2025 года. Прием заявлений стартовал летом 2025, и сейчас он продолжается. Во втором доме — 19 этажей, 4 подъезда и 342 квартиры; строительство начали в апреле 2025, завершение планируется весной 2027.

Актуальное предложение
С 15 декабря 2025 года в продажу поступил пул квартир, расположенных с 11 по 18 этаж, по цене 6000 руб/м² с обязательным машино-местом за 70,000 руб:
|
Тип |
Кол-во |
Площадь |
Этажи |
Цена за м² |
Паркинг |
|
2-комнатные |
40 |
65–68 м² |
11–18 |
6000 руб |
70,000 руб (обязательно) |
|
3-комнатные |
32 |
64–81 м² |
11–18 |
6000 руб |
70,000 руб (обязательно) |
Примеры расчета:
- 2к 65 м²: 65×6000 = 390,000 руб + 70,000 = ≈460,000 руб.
- 3к 81 м²: 81×6000 = 486,000 руб + 70,000 = ≈556,000 руб.

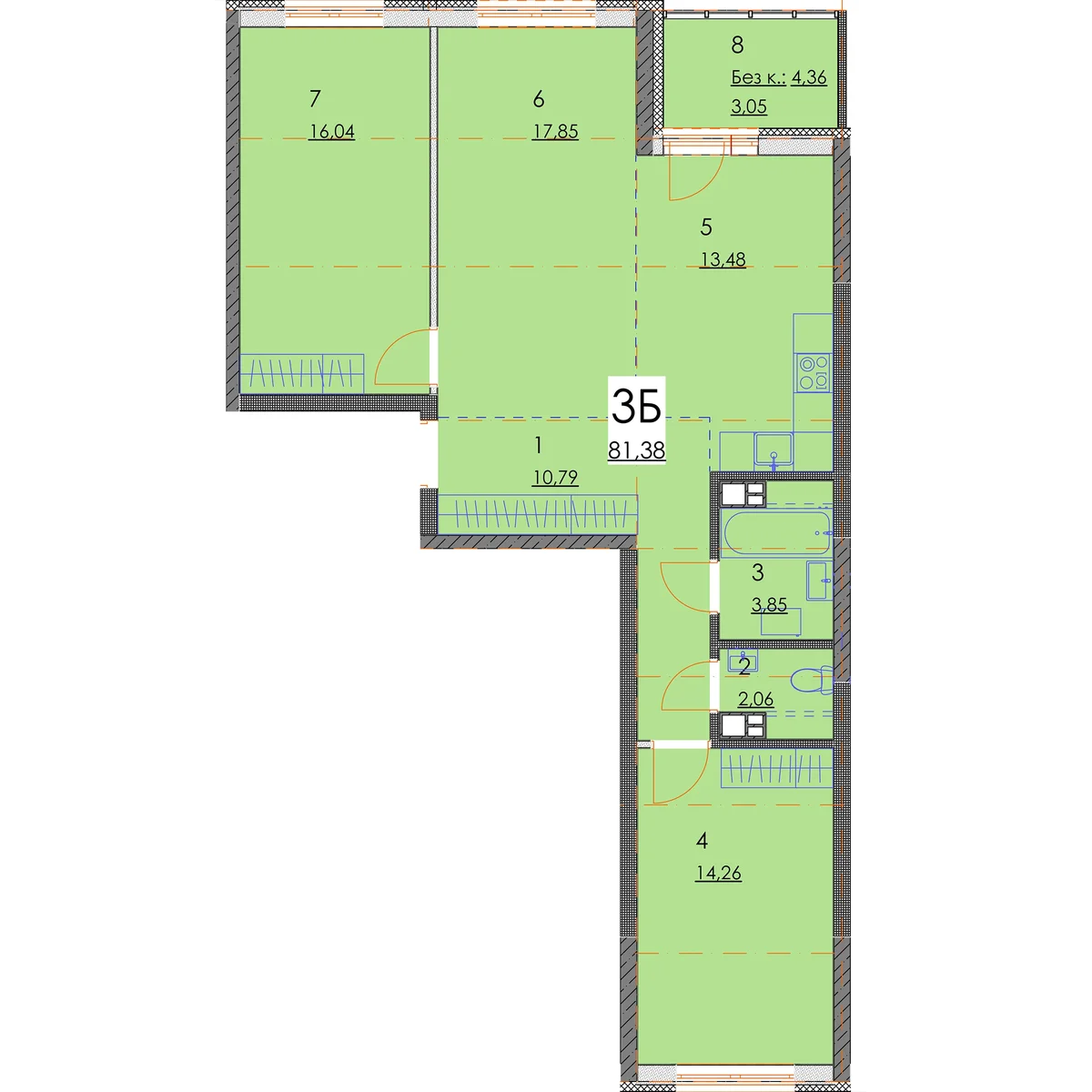
Пример планировки 2-комнатной квартиры

Пример планировки 3-комнатной квартиры
Все планировки доступны на сайте ЖК Гулливер.
Несколько слов про район
ЖК Гулливер находится всего в 400 метрах от станции метро «Пушкинская» Автозаводской линии метро. Это означает, что жители могут дойти туда за 5–7 минут.
Что есть в округе:
Ледовый дворец спорта Минской области (ул. Притыцкого, 27) — важное спортивное сооружение, которое предоставляет семьям с детьми возможность развивать их спортивные таланты прямо в районе проживания.
Кинотеатр «Аврора» (ул. Притыцкого, 23) — современный кинотеатр с тремя залами на 679 мест.
Торговый центр «Раковский кирмаш» (ул. Дунина-Марцинкевича, 11) — один из самых посещаемых торговых центров Минска с площадью 18,000 кв.м, 250 парковочными местами и ежедневным потоком ~13,000 посетителей. Здесь представлены все необходимые магазины, рестораны и кафе.
Сквер имени Притыцкого — ухоженный парк с альпийскими горками, детскими игровыми площадками, новым фонтаном и удобными лавочками.
Во Фрунзенском районе развитая система образования с многочисленными детскими садами и школами на каждом углу. В пешеходной доступности находятся ясли-сады Притыцкого (№489, №492), №527 и другие учреждения дошкольного образования.
Как купить квартиру в ЖК Гулливер на практике
Шаг 1. Посещение офиса застройщика
Адрес: г. Минск, ул. Советская, д. 17 (вход с дворовой территории).
Режим работы:
- Понедельник–четверг: 8:45–18:00.
- Пятница: 8:45–16:45.
- Перерыв: 13:00–14:00.
Шаг 2. Консультация с менеджером
Менеджер ознакомит вас с:
- Полным перечнем доступных квартир.
- Цветными планировками.
- Визуализацией фасадов и внутреннего благоустройства.
- Условиями долевого строительства.
Шаг 3. Выбор объекта и регистрация заявления
Вы выбираете подходящую планировку и регистрируете заявление в порядке живой очереди. Одно заявление — на одно помещение.
Шаг 4. Заключение договора
Договор долевого строительства заключается на условиях, согласованных с Минским городским исполнительным комитетом.
Шаг 5. Банковское кредитование (опционально)
Если вы хотите получить ипотеку, специалист УКС поможет оформить документы и согласовать условия с банком.
Контактная информация
Телефоны:
- +375 (44) 571-50-00 (сеть А1).
- +375 (33) 398-20-00 (сеть МТС).
Электронная почта: guliver@uks.by.
Веб-сайты:
- uks.minsk.gov.by (официальный сайт УКС).
- gulliver.minsk.by (специализированный сайт проекта).

