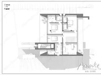
Участок строительства имеет достаточно резкий рельеф, расположен вверх от дороги. Это диктует определенные объемно-планировочные решения и благодаря таким условиям вилла словно парит над склоном. Максимальное разрешенное использование участка позволяет построить виллу 270 кв.м., земельный участок площадью 1765 кв.м., на полуострове Луштица с потрясающим видом на вход в Боко-Которский залив в 800 метрах от моря с уникальным проектом в лучших традициях балканской архитектуры с мотивами югославского модернизма. Проект (Идейное решение по нормам Черногории) может быть доработан или переработан в соответствии с пожеланиями заказчика и согласован в местных государственных органах. Компания готова организовать разработку рабочей документации (Главного проекта) и строительства объекта, включая интерьерные решения и комплектацию. Проект и реализация выполняются с учетом местных требований сейсмики. Бетонный каркас. В отделке преимущественно натуральные материалы (натуральный камень, дерево) или высококачественные современные отделочные материалы. Особое внимание будет уделено инженерным системам: дублирование систем на случаи аварийного отключения центрального снабжения, современные источники энергии – солнечные батареи, системы безопасности. Современный внешний и внутренний дизайн сочетает грамотную отделку с правильными планировочными решениями, комфортом и высокой надежностью. Симбиоз дизайна и архитектуры, с самого начала проектирования, гармонично впишет виллу в окружающем пространстве, как будто она создана самой природой, а также позволяет полностью, с ощущением естественной легкости и комфорта раствориться внутри помещений виллы. Супермаркеты (продукты) IDEA – 2 км, VOLI – 5 км, медицинский центр, больница, стоматологические клиники, детские сады, школы, торговые центры - 10 – 15 км. Расположение: Луштица, Забрдже Площадь виллы: 270 м2 Площадь участка: 1765 м2 Кол-во спален: 3 Кол-во ванных комнат: 5
