Коммерческое помещение 66 м² Каунас, Литва

Литва, Каунас
$263,268
$3,971/м²
;
In CRM: 1288224
ID объявления на сайте или в CRM компании
Дата обновления: 26.05.2025

Местонахождение

  • Страна
    Литва
  • Область / штат
    Каунасский уезд
  • Район
    Каунасское городское самоуправление
  • Город
    Каунас
  • Адрес
    Dujotiekio g, 26 c

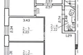
Характеристики объекта

Параметры объекта

  • Цена за м²
    Цена за м²
    $3,971/м²
  • Этаж
    Этаж
    1
  • Общая площадь
    Общая площадь
    66 м²

Описание

Продаются помещения - функциональный салон красоты, стратегически в хорошем месте в Дуйотелио г., Дайнаве, Каунасе Продается с мебелью на фотографиях. Отличная инвестиция, помещения в настоящее время сдаются в аренду. ОПИСАНИЕ ВОПРОСА: - Dujokelių g., Dainava, Kaunas - Площадь - 66,29 кв.м. - Текущая деятельность в помещениях - Три комнаты, банкет пространства для парикмахеров, кухонька, ВК. - Комнаты хорошо видны, окна Индивидуальная миграция больших человеческих потоков - Отопление - газ - Кондиционер Тревога - Частная парковка у входа - Объекты - аккуратные, отремонтированные Сообщение: - Электричество - Вода - городская - Сточные воды - городские Локация и инфраструктура: - Dujokelių g., Dainava, Kaunas Стратегически хорошее место рядом с ПК Girstutis, каждый день проходит большой поток людей. Проверка проводится по предварительной договоренности. Брокер НТ Дариус Даугел 8676 22 040 Вы можете найти все последние объявления о недвижимости CAPITAL на нашем сайте www.capital.lt. Пожалуйста, посетите!

Местонахождение на карте

Литва, Каунас
Образование
Здравоохранение
Продуктовые магазины
Еда и напитки
Транспорт
Финансы
Досуг
Insight Estate
Задайте все интересующие вопросы
Отправьте Вашу заявку агенту
Спасибо! Ваша заявка принята
Хочу посмотреть этот объект. Актуальна ли стоимость объекта? Хочу получить больше информации об объекте. Какие условия покупки для иностранцев? Хотел бы посмотреть больше фото/видео. Возможна ли покупка в кредит/ипотеку? Получу ли я ВНЖ при покупке недвижимости?
Назад Оставить заявку Показать контакты
Похожие объекты
Коммерческое помещение 108 м² в Вильнюс, Литва
Коммерческое помещение 108 м²
Вильнюс, Литва
Площадь 108 м²
Этаж 1
107,55 кВ. АДМИНИСТРАТИВНЫЙ ПРЕМИЙ ВИРБЕЛИЗ Г., ПРЕДСЕДАТЕЛЬ! Мы предлагаем в аренду совреме…
$231,749
Оставить заявку
Закрыть
Пожалуйста, скажите продавцу, что Вы нашли это объявление на Realting.com
Агентство
Capital
Языки общения
English, Русский, Deutsch, Polski, Français, Lietuvių
Коммерческое помещение 3 340 м² в Skuige, Литва
Коммерческое помещение 3 340 м²
Skuige, Литва
Площадь 3 340 м²
Этаж 1
Сказали в практиках милитаристских бизнес-цен. Продается участок земли 1,8 га и стоит там фе…
$274,633
Оставить заявку
Закрыть
Пожалуйста, скажите продавцу, что Вы нашли это объявление на Realting.com
Агентство
Capital
Языки общения
English, Русский, Deutsch, Polski, Français, Lietuvių
Коммерческое помещение 83 м² в Вильнюс, Литва
Коммерческое помещение 83 м²
Вильнюс, Литва
Площадь 83 м²
Этаж 1
! Продажа двух кормов в одном из самых лучших бизнес-микорионов!!! PUKI LOCATION - ACTUAL C…
$250,732
Оставить заявку
Закрыть
Пожалуйста, скажите продавцу, что Вы нашли это объявление на Realting.com
Агентство
Capital
Языки общения
English, Русский, Deutsch, Polski, Français, Lietuvių
Коммерческое помещение 1 490 м² в Кедайняй, Литва
Коммерческое помещение 1 490 м²
Кедайняй, Литва
Площадь 1 490 м²
Этаж 1
ПРОДАЖА ПРОИЗВОДСТВЕННЫХ ИНДУСТРИАЛЬНЫХ КОРРЕКЦИЙ, СОЗДАЮЩИХ БОЛЬШЕ Продаются производствен…
$283,783
Оставить заявку
Закрыть
Пожалуйста, скажите продавцу, что Вы нашли это объявление на Realting.com
Агентство
Capital
Языки общения
English, Русский, Deutsch, Polski, Français, Lietuvių
Коммерческое помещение 57 м² в Паланга, Литва
Коммерческое помещение 57 м²
Паланга, Литва
Площадь 57 м²
Этаж 3
Эксклюзивная возможность приобретения новых строительных коммерческих помещений в центре Пал…
$230,275
Оставить заявку
Закрыть
Пожалуйста, скажите продавцу, что Вы нашли это объявление на Realting.com
Агентство
Capital
Языки общения
English, Русский, Deutsch, Polski, Français, Lietuvių
Коммерческое помещение 76 м² в Вильнюс, Литва
Коммерческое помещение 76 м²
Вильнюс, Литва
Площадь 76 м²
Этаж 1
Комнаты для продажи в Старом городе, ул. Базилийону. В настоящее время помещения сдаются в а…
$262,129
Оставить заявку
Закрыть
Пожалуйста, скажите продавцу, что Вы нашли это объявление на Realting.com
Агентство
Capital
Языки общения
English, Русский, Deutsch, Polski, Français, Lietuvių
Коммерческое помещение 153 м² в Вильнюс, Литва
Коммерческое помещение 153 м²
Вильнюс, Литва
Площадь 153 м²
Этаж 1
ПРЕДУПРЕЖДЕНИЕ ТРАНСФЕРОВ И УНИВЕРСАЛОВ ДЛЯ ЛЮБЫХ КОММЕРЧЕСКИХ ДЕЙСТВИЙ 153,07 КМ КОММЕРЧЕСК…
$284,922
Оставить заявку
Закрыть
Пожалуйста, скажите продавцу, что Вы нашли это объявление на Realting.com
Агентство
Capital
Языки общения
English, Русский, Deutsch, Polski, Français, Lietuvių
Коммерческое помещение 1 100 м² в Пасвалис, Литва
Коммерческое помещение 1 100 м²
Пасвалис, Литва
Площадь 1 100 м²
Этаж 1
Отличная инвега! Осознание статуса административного определения КОМПРЕЕНСИВНЫЙ КОМПЛИАНС, К…
$245,978
Оставить заявку
Закрыть
Пожалуйста, скажите продавцу, что Вы нашли это объявление на Realting.com
Агентство
Capital
Языки общения
English, Русский, Deutsch, Polski, Français, Lietuvių