Nieruchomości komercyjne 4 000 m² Pancharevo, Bułgaria

Pancharevo, Bistritsa, Bułgaria
$1,31M
$329/m²
;
Data aktualizacji: 15.01.2024

Lokalizacja

  • Kraj
    Bułgaria
  • Region / Państwo
    Sofia-City
  • Okolica
    Sofia City
  • Wioska
    Pancharevo

Charakterystyka obiektu

Parametry obiektu

  • Cena za m²
    Cena za m²
    $329/m²
  • Powierzchnia całkowita
    Powierzchnia całkowita
    4 000 m²

Opis

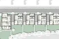
Bestay Property presents three combined investment plots in the area of Kambanite, Sofia. This development land has a ready visa and an area of 4,000 square meters.There is a licensed development project for five houses ready to be built on half of the lot. On the other half can be developed five more.The commercial plot is in regular shape and is fully regulated. All documents of the property are present and is ready to start the developing process.This special commercial property in Kambanite, Sofia is waiting for its special person: ,

Lokalizacja na mapie

Pancharevo, Bistritsa, Bułgaria
Opieka zdrowotna
Jedzenie i picie
Rekreacja
Zadaj wszelkie pytania, które możesz mieć
Wysłać wniosek do agenta
Dziękujemy! Zgłoszenie zostało przyjęte
Chcę zobaczyć ten obiekt. Czy wartość nieruchomości jest aktualna? Chciałbym uzyskać więcej informacji na temat nieruchomości. Jakie są warunki zakupu dla cudzoziemców? Chciałbym zobaczyć więcej zdjęć/filmów. Czy można kupić na kredyt/hipotekę? Czy otrzymam pozwolenie na pobyt, jeśli kupię nieruchomość?
Powrót do Zostawić wniosek
Podobne obiekty
Hotel w Rawda, Bułgaria
Hotel
Rawda, Bułgaria
Opis przedmiotu: Oferujemy pierwszorzędny hotel z 29 pokojami na sprzedaż, idealnie położony…
$1,19M
Zostaw prośbę
Zamknij
Proszę, powiedz mi, że znalazłeś to ogłoszenie na Realting.com
Agencja
Nils Ott Real Estates
Języki komunikacji
English, Русский, Deutsch, Čeština, Български, Italiano, Српски, Hrvatski
Hotel w Sweti Włas, Bułgaria
Hotel
Sweti Włas, Bułgaria
Opis przedmiotu: Oferujemy atrakcyjny hotel w doskonałej lokalizacji w popularnym kurorcie p…
$1,39M
Zostaw prośbę
Zamknij
Proszę, powiedz mi, że znalazłeś to ogłoszenie na Realting.com
Agencja
Nils Ott Real Estates
Języki komunikacji
English, Русский, Deutsch, Čeština, Български, Italiano, Српски, Hrvatski