Haus 4 zimmer 112 m² Verwaltungsgemeinschaft Helsinki, Finnland

Finnland, Verwaltungsgemeinschaft Helsinki, Espoo
$446,683
$4,006/m²
;
In CRM: 671272
ID der Anzeige auf der Website oder im CRM des Unternehmens
Letzte Aktualisierung: 28.02.26

Standort

  • Grundstück
    Finnland
  • Region / Bundesland
    Festland-Finnland
  • Stadt
    Verwaltungsgemeinschaft Helsinki
  • Adresse
    Taavinharju, 12

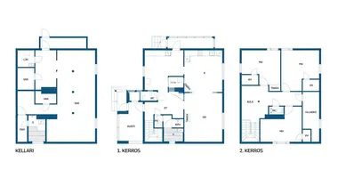
Objekteigenschaften

Gebäudedaten

  • Etagenzahl
    Etagenzahl
    1
  • Stockwerk
    Stockwerk
    1
  • Rooms:
    Rooms:
    4
  • Bedrooms:
    Bedrooms:
    3
  • Bathrooms:
    Bathrooms:
    1
  • Gesamt fläche
    Gesamt fläche
    112 m²
  • Grundstücksfläche
    Grundstücksfläche
    5 050 m²

Innere Details

Haushaltsgeräte:

  • Spülmaschine
  • Kühlschrank
  • Kochfeld

Innenausstattung:

  • Haushaltsgeräte

Reparaturfunktionen:

  • Reparaturbedürftig

Beschreibung

Jetzt zum Verkauf eine etablierte Doppelhaushälfte von Mankka. Drei geräumige Schlafzimmer, geräumiges Wohnzimmer mit Kamin und zwei Toiletten. Ein geschützter umzäunter Hof mit einer Terrasse zusätzlich zu einem Außenkamin zum Grillen und Kochen. Die Wohnung verfügt auch über eine Luftwärmepumpe im Wohnzimmer, die im Sommer kühlt und eine geräumige Küche mit viel Platz für einen größeren Esstisch. Ein idyllisches Mietobjekt mit zehn Wohnungen auf eigenem Grundstück. Ruhige und komfortable Lage mit guten Dienstleistungen und Außenbereichen in der Nähe. Die Wohnung ist sofort kostenlos. Rufen Sie an und arrangieren Sie eine Einführung.

Standort auf der Karte

Finnland, Verwaltungsgemeinschaft Helsinki, Espoo
Ausbildung
Gesundheitspflege
Essen & Trinken
Transport
Finanzen
Freizeit

Hypotheken-Rechner

Zinssatz, %
Laufzeit des Darlehens, jahre
Kosten der Immobilie
Erste Zahlung, %
{{ initialPaymentCurrency }} USD
Bitte beachten Sie! Sie haben den Parameter Wohnkosten geändert in {{ differentPrice }}%. Dies wirkt sich auf die Relevanz der Berechnung der monatlichen Zahlungen für die aktuelle Immobilie aus. Zurücklegen
Zinssatz
{{ loanPercentValue.toLocaleString() }} %
Zinssatz
Darlehensbetrag
{{ mortgageAmount }} USD
Darlehensbetrag
Termin
{{ loanPeriodValue | pluralize("jahr", "jahre") }}
Termin
Monatliche Zahlung
{{ paymentPerMonth }} USD
Monatliche Zahlung
Percent CoPercent Co
Stellen Sie alle Fragen, die Sie haben
Die Anfrage an den Makler senden
Danke! Ihre Anfrage ist eingegangen
Ich möchte diese Einrichtung sehen. Ist der Immobilienwert aktuell? Ich möchte mehr Informationen über das Objekt. Welche Kaufbedingungen gelten für Ausländer? Möchte mehr Fotos/Videos sehen. Ist ein Kauf auf Kredit/Hypothek möglich? Ist es möglich, eine Aufenthaltsgenehmigung zu erhalten?
Zurück zu Eine Anfrage hinterlassen Kontakte zeigen
Ähnliche Objekte
Haus 3 zimmer in Kylajoki, Finnland
Haus 3 zimmer
Kylajoki, Finnland
Zimmer 3
Schlafräume 2
Anzahl der Badezimmer 1
Fläche 121 m²
Stockwerk 1/1
Kontaktieren Sie einen Habita Vertreter für weitere Informationen über diese Einrichtung.
$399,646
Eine Anfrage stellen
Schließen
Bitte lassen Sie mich wissen, dass Sie diese Anzeige auf Realting.com
Immobilienagentur
International real estate agency Habita
Sprachen
English, Русский, Deutsch, Français, Svenska, Suomi, Italiano, Dutch
Haus 5 zimmer in Jyvaskyla sub region, Finnland
Haus 5 zimmer
Jyvaskyla sub region, Finnland
Zimmer 5
Schlafräume 3
Anzahl der Badezimmer 1
Fläche 123 m²
Stockwerk 1/2
Kontaktieren Sie einen Habita Vertreter für weitere Informationen über diese Einrichtung.
$434,616
Eine Anfrage stellen
Schließen
Bitte lassen Sie mich wissen, dass Sie diese Anzeige auf Realting.com
Immobilienagentur
International real estate agency Habita
Sprachen
English, Русский, Deutsch, Français, Svenska, Suomi, Italiano, Dutch
Haus 4 zimmer in Oulunsalo, Finnland
Haus 4 zimmer
Oulunsalo, Finnland
Zimmer 4
Schlafräume 3
Anzahl der Badezimmer 1
Fläche 104 m²
Stockwerk 1/2
Kontaktieren Sie einen Habita Vertreter für weitere Informationen über diese Einrichtung.
$493,362
Eine Anfrage stellen
Schließen
Bitte lassen Sie mich wissen, dass Sie diese Anzeige auf Realting.com
Immobilienagentur
International real estate agency Habita
Sprachen
English, Русский, Deutsch, Français, Svenska, Suomi, Italiano, Dutch
Haus 4 zimmer in Kuopio sub region, Finnland
Haus 4 zimmer
Kuopio sub region, Finnland
Zimmer 4
Schlafräume 3
Anzahl der Badezimmer 1
Fläche 125 m²
Stockwerk 1/3
$407,687
Eine Anfrage stellen
Schließen
Bitte lassen Sie mich wissen, dass Sie diese Anzeige auf Realting.com
Immobilienagentur
International real estate agency Habita
Sprachen
English, Русский, Deutsch, Français, Svenska, Suomi, Italiano, Dutch
Haus 4 zimmer in Oulu sub region, Finnland
Haus 4 zimmer
Oulu sub region, Finnland
Zimmer 4
Schlafräume 3
Anzahl der Badezimmer 1
Fläche 95 m²
Stockwerk 1/3
Kontaktieren Sie einen Habita Vertreter für weitere Informationen über diese Einrichtung.
$418,322
Eine Anfrage stellen
Schließen
Bitte lassen Sie mich wissen, dass Sie diese Anzeige auf Realting.com
Immobilienagentur
International real estate agency Habita
Sprachen
English, Русский, Deutsch, Français, Svenska, Suomi, Italiano, Dutch
Haus 4 zimmer in Verwaltungsgemeinschaft Helsinki, Finnland
Haus 4 zimmer
Verwaltungsgemeinschaft Helsinki, Finnland
Zimmer 4
Schlafräume 3
Anzahl der Badezimmer 2
Fläche 96 m²
Stockwerk 2/2
Selten verfügbares, hochwertiges Einfamilienhaus auf einem Grundstück an der Grenze zum Park…
$483,702
Eine Anfrage stellen
Schließen
Bitte lassen Sie mich wissen, dass Sie diese Anzeige auf Realting.com
Immobilienagentur
International real estate agency Habita
Sprachen
English, Русский, Deutsch, Français, Svenska, Suomi, Italiano, Dutch
Haus 5 zimmer in Jyvaskyla sub region, Finnland
Haus 5 zimmer
Jyvaskyla sub region, Finnland
Zimmer 5
Schlafräume 4
Anzahl der Badezimmer 1
Fläche 121 m²
Stockwerk 1/1
Contact the representative of Habita to obtain more information about this facility
$399,058
Eine Anfrage stellen
Schließen
Bitte lassen Sie mich wissen, dass Sie diese Anzeige auf Realting.com
Immobilienagentur
International real estate agency Habita
Sprachen
English, Русский, Deutsch, Français, Svenska, Suomi, Italiano, Dutch
Haus 3 zimmer in Verwaltungsgemeinschaft Helsinki, Finnland
Haus 3 zimmer
Verwaltungsgemeinschaft Helsinki, Finnland
Zimmer 3
Schlafräume 2
Anzahl der Badezimmer 1
Fläche 75 m²
Stockwerk 1/1
A new lovely semi-detached house awaits you in the peaceful small house area of Hiekkaharju.…
$434,373
Eine Anfrage stellen
Schließen
Bitte lassen Sie mich wissen, dass Sie diese Anzeige auf Realting.com
Immobilienagentur
International real estate agency Habita
Sprachen
English, Русский, Deutsch, Français, Svenska, Suomi, Italiano, Dutch