Дом 9 комнат Opcina Dezanovac, Хорватия

Opcina Dezanovac, Sokolovac, Хорватия
$350,710
$3,507/м²
;
Дата обновления: 05.04.2025

Местонахождение

  • Страна
    Хорватия
  • Район
    Беловарско-Билогорская жупания
  • Деревня
    Opcina Dezanovac

Характеристики объекта

Параметры здания

  • Количество комнат
    Количество комнат
    9
  • Количество ванных
    Количество ванных
    19
  • Жилая площадь
    Жилая площадь
    100 м²
  • Площадь участка
    Площадь участка
    645 м²

Описание

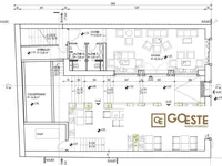
Недвижимость в Хорватии на продажу: Дом для ремонта, первый ряд для моря - REF ID: 5278/30 в Корчуле Интересная недвижимость, расположенная на острове Корчула в первом ряду от моря. Это перестроенная недвижимость, расположенная на участке площадью 645 м2. Нынешний размер здания составляет 100 м2 и был построен в 1920 году. Здание имеет два входа, один с восточной стороны, с главной улицы, а другой с западной стороны, с боковой улицы. Участок имеет полную проектную документацию и разрешение на строительство главного и вспомогательного корпуса. По проекту планируется построить меньший отель с рестораном. Отель состоит из первого этажа, двух этажей и галереи, а перед домом расположен ресторан. Первый этаж состоит из двух отдельных частей, соединенных общим входом. В первой части находится кафе с террасой и двумя туалетами. Во второй части есть ресторан со столовой, двумя туалетами, кухней, двумя кладовыми, комнатой с машинным отделением и оздоровительной зоной, оборудованной сауной, джакузи, горячей ванной и двумя ванными комнатами. Первый этаж состоит из трех спален, каждая из которых имеет собственную ванную комнату и выход на балкон. На том же этаже также есть прием с двумя туалетами, который имеет выход на просторную террасу с зоной для принятия солнечных ванн и бассейном. Второй этаж состоит из четырех спален, каждая из которых имеет собственную ванную комнату и выход на балкон. Внутренняя лестница ведет на верхний этаж, галерею, которая состоит из двух спален с собственными ванными комнатами, двух туалетов, прачечной и общей комнаты для проведения времени. Ориентация здания юго-восточная, перед двором расположены два парковочных места. Также возможно преобразование здания в жилое здание с одним, двумя или тремя помещениями или многоквартирное здание с четырьмя помещениями. Благодаря близости моря и всем необходимым удобствам, таким как магазины, рестораны, кафе и тому подобное, эта недвижимость является отличным туристическим вложением.

Местонахождение на карте

Opcina Dezanovac, Sokolovac, Хорватия

Калькулятор ипотеки

Процентная ставка, %
Срок кредитования, лет
Стоимость жилья
Первоначальный взнос, %
{{ initialPaymentCurrency }} USD
Обратите внимание! Вы изменили параметр стоимости жилья на {{ differentPrice }}%. Это влияет на актуальность расчета ежемесячных платежей для текущего объекта недвижимости. Вернуть обратно
Процентная ставка
{{ loanPercentValue.toLocaleString() }} %
Процентная ставка
Сумма кредита
{{ mortgageAmount }} USD
Сумма кредита
Срок
{{ loanPeriodValue | pluralizeRu("год", "года", "лет") }}
Срок
Ежемесячный платеж
{{ paymentPerMonth }} USD
Ежемесячный платеж
Задайте все интересующие вопросы
Отправьте Вашу заявку агенту
Спасибо! Ваша заявка принята
Хочу посмотреть этот объект. Актуальна ли стоимость объекта? Хочу получить больше информации об объекте. Какие условия покупки для иностранцев? Хотел бы посмотреть больше фото/видео. Возможна ли покупка в кредит/ипотеку? Получу ли я ВНЖ при покупке недвижимости?
Назад Оставить заявку
Похожие объекты
Дом 2 спальни в Opcina Mrkopalj, Хорватия
Дом 2 спальни
Opcina Mrkopalj, Хорватия
Количество спален 2
Кол-во ванных комнат 2
Площадь 208 м²
В самом сердце Горского котара продается отдельно стоящий дом общей площадью 208 м2, располо…
$329,462
Оставить заявку
Закрыть
Пожалуйста, скажите продавцу, что Вы нашли это объявление на Realting.com
Агентство
Ardor real estate agency
Языки общения
English, Italiano, Hrvatski
Дом 3 спальни в Мали-Лошинь, Хорватия
Дом 3 спальни
Мали-Лошинь, Хорватия
Количество спален 3
Кол-во ванных комнат 2
Площадь 100 м²
Этот очаровательный средиземноморский дом, расположенный в самом сердце Мали Лошинь, идеальн…
$370,041
Оставить заявку
Закрыть
Пожалуйста, скажите продавцу, что Вы нашли это объявление на Realting.com
Агентство
Ardor real estate agency
Языки общения
English, Italiano, Hrvatski
Дом 3 спальни в Барбат, Хорватия
Дом 3 спальни
Барбат, Хорватия
Количество спален 3
Кол-во ванных комнат 2
Площадь 100 м²
Количество этажей 1
Остров Раб, Барбат - привлекательный террасный дом для продажи в центральном месте с общей ж…
$345,907
Оставить заявку
Закрыть
Пожалуйста, скажите продавцу, что Вы нашли это объявление на Realting.com
Агентство
Ardor real estate agency
Языки общения
English, Italiano, Hrvatski
Коттедж 5 комнат в община Светвинченат, Хорватия
Коттедж 5 комнат
община Светвинченат, Хорватия
Число комнат 5
Количество спален 2
Кол-во ванных комнат 1
Площадь 84 м²
Этаж 2/2
Каменный дом, спроектированный абсолютными уродами и любовниками таким образом, что он тольк…
$348,396
Оставить заявку
Закрыть
Пожалуйста, скажите продавцу, что Вы нашли это объявление на Realting.com
Агентство
Международное агентство недвижимости Habita
Языки общения
English, Русский, Deutsch, Français, Svenska, Suomi, Italiano, Dutch
Актуальные новости в Хорватии