Dom 3 pokoi 58 m² Porpliscanski sielski Saviet, Białoruś

Białoruś, Porpliscanski sielski Saviet
$30,575
$526/m²
;
In CRM: 833081
Identyfikator reklamy na stronie internetowej lub w firmowym CRM
Data aktualizacji: 19.05.2026

Lokalizacja

  • Kraj
    Białoruś
  • Region / Państwo
    Obwód witebski
  • Okolica
    rejon dokszycki
  • Miasto
    Porpliscanski sielski Saviet
  • Adres
    ulica Jeziorna, 12

Charakterystyka obiektu

Parametry budynku

  • Rok realizacji
    Rok realizacji
    1951
  • Liczba kondygnacji
    Liczba kondygnacji
    1
  • Piętro
    Piętro
    1
  • Rooms:
    Rooms:
    3
  • Bedrooms:
    Bedrooms:
    3
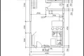
  • Powierzchnia całkowita
    Powierzchnia całkowita
    58 m²
  • Powierzchnia mieszkalna
    Powierzchnia mieszkalna
    42 m²
  • Powierzchnia działki
    Powierzchnia działki
    25 m²

Opis

Na sprzeda? dom na etapie rekonstrukcji na brzegu jeziora Servech w wsi Shantorovshchina!


Dom znajduje się w miejscowości Shantorovshchyna Porplishchensky z / z Dokshitsky dzielnicy Witebsk regionu na Lake Street. 7.


Szukasz miejsca, żeby trzymać się z dala od miasta? Ten dom to idealny wybór!


Korzyści z obiektu:


Unikalna lokalizacja: Dom znajduje się na pierwszej linii brzegowej jeziora Servech. Dostęp do jeziora bezpośrednio od strony z możliwością budowy własnego molo. Jest to idealne miejsce do spaceru i relaksu w przyrodzie.


Mocna konstrukcja: dom zbudowany jest z silnych, zdrowych kłód, podniesionych na fundamencie. Dom ma już zalane podłogi, zainstalowane wewnętrzne przegrody, zainstalowane nowy rosyjski piec z łóżkiem nowoczesnej cegły przyjaznej środowisku.


Wprowadzono komunikację, kanalizację ze zbiornikiem septycznym wykonano zgodnie ze wszystkimi zasadami strefy ochrony środowiska, fundacja jest nowa.

Dom ma elektryczność, tam jest metr.



Rozwinięta infrastruktura: dostawa wody, kanalizacja. Na etapie budowy - przedłużenie z łazienką i kuchnią z tarasem.


Dzia? ka 25 akrów: płaski kszta? t, z rocznikowym wej? ciem na doskonałej asfaltowej drodze, cichej ulicy bez aktywnego ruchu pojazdów.

Na miejscu znajduje się studnia z czystą wodą.


Dodatkowe zalety: nowy właściciel pozostanie materiały budowlane (blok krzemianowy gazu, deska, wzmocnienie, zmiażdżony kamień, skrzynia, itp.), również jako prezent będzie uzyskać nową wysokiej jakości drzwi frontowe.


W pobliżu dobrzy sąsiedzi - gwarancja komfortowego życia.


Dom i dzia? ka na boku ulicy s? ogrodzone nowym metalowym ogrodzeniem i brama zamkniêcia na klucz.


Ten dom jest doskonałą okazją do stworzenia przytulnego gniazda w przyrodzie. Tutaj można cieszyć się ciszą i pięknem otaczającej przyrody, oddychać świeżym powietrzem i zapomnieć o gwardii miasta.


Przyjdź i zobacz na własne oczy - ten dom stanie się twoim zakątkiem szczęścia i spokoju!

Lokalizacja na mapie

Białoruś, Porpliscanski sielski Saviet

Kalkulator hipoteczny

Stopa procentowa, %
Okres kredytowania, lata
Koszt nieruchomości
Płatność początkowa, %
{{ initialPaymentCurrency }} USD
Uwaga!!! Zmienili Państwo parametr koszt mieszkania na {{ differentPrice }}%. Wpływa to na zasadność wyliczenia miesięcznych płatności za obecną nieruchomość. Odłóż to.
Stopa procentowa
{{ loanPercentValue.toLocaleString() }} %
Stopa procentowa
Kwota pożyczki
{{ mortgageAmount }} USD
Kwota pożyczki
Terminy
{{ loanPeriodValue | pluralize("rok", "lata") }}
Terminy
Płatność miesięczna
{{ paymentPerMonth }} USD
Płatność miesięczna
Zadaj wszelkie pytania, które możesz mieć
Wysłać wniosek do agenta
Dziękujemy! Zgłoszenie zostało przyjęte
Chcę zobaczyć ten obiekt. Czy wartość nieruchomości jest aktualna? Chciałbym uzyskać więcej informacji na temat nieruchomości. Jakie są warunki zakupu dla cudzoziemców? Chciałbym zobaczyć więcej zdjęć/filmów. Czy można kupić na kredyt/hipotekę? Czy otrzymam pozwolenie na pobyt, jeśli kupię nieruchomość?
Powrót do Zostawić wniosek
Podobne obiekty
Dom w Kraśne, Białoruś
Dom
Kraśne, Białoruś
Powierzchnia 46 m²
Dobrze zadbany dom 45,8 m2 na 12 hektarach z gazem na ulicy 47 km od Moscow Ring Road! ❤️Dob…
$27,000
Zostaw prośbę
Zamknij
Proszę, powiedz mi, że znalazłeś to ogłoszenie na Realting.com
Agencja
Центр международной недвижимости Моя 7Я
Języki komunikacji
English, Русский
Dom w Krasnadvorcy, Białoruś
Dom
Krasnadvorcy, Białoruś
Powierzchnia 69 m²
Dom na 25 akrów z łazienką i garażem 7 km od Soligorsk ❤️ Przytulny dom logowania zbudowany …
$26,900
Zostaw prośbę
Zamknij
Proszę, powiedz mi, że znalazłeś to ogłoszenie na Realting.com
Agencja
Центр международной недвижимости Моя 7Я
Języki komunikacji
English, Русский
Dom w Aliachnovicki sielski Saviet, Białoruś
Dom
Aliachnovicki sielski Saviet, Białoruś
Powierzchnia 68 m²
Dom 68 m2 na 25 akrach przy lesie, Olekhnovichi ❤️ Dwupoziomowy dom bloku 68 m2 z piwnicą i …
$28,500
Zostaw prośbę
Zamknij
Proszę, powiedz mi, że znalazłeś to ogłoszenie na Realting.com
Agencja
Центр международной недвижимости Моя 7Я
Języki komunikacji
English, Русский