Жилой комплекс Compact House в Батуми — это современный проект, предлагающий комфортные условия для проживания и инвестирования. Комплекс расположен в тихом районе города, всего в 1900 метрах от моря, что делает его привлекательным для тех, кто ценит близость к пляжу и развитую инфраструктуру.
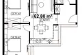
Описание проекта: Compact House представляет собой шестиподъездный дом с разнообразными планировками, включая студии, одно-, двух- и трехкомнатные апартаменты. Все квартиры оснащены современной мебелью и техникой, обеспечивая высокий уровень комфорта. Здания имеют современные архитектурные решения, большие окна, что позволяет наслаждаться естественным освещением и панорамными видами на город и море.
Инфраструктура:
Транспортная доступность: В непосредственной близости от комплекса находятся остановки общественного транспорта, что обеспечивает удобное сообщение с другими районами города и позволяет легко добраться до центрального автовокзала и железнодорожной станции. Международный аэропорт также находится всего в нескольких километрах от комплекса, обеспечивая удобство для частых путешественников.
Преимущества:
Compact House предлагает все необходимое для комфортной жизни и успешного инвестирования в недвижимость в Батуми. Проект планируется к завершению в 2025 году, и уже сейчас доступно множество выгодных предложений для приобретения квартир по ценам ниже, чем у застройщика.
Этот жилой комплекс идеально подходит для тех, кто ищет уютное место для постоянного проживания или сезонного отдыха в одном из самых быстроразвивающихся городов на побережье Черного моря.
