Коммерческое помещение 54 м² Варшава, Польша

Польша, Варшава
$219,540
$4,086/м²
;
In CRM: 34964534384
ID объявления на сайте или в CRM компании
Дата обновления: 13.12.2025

Местонахождение

  • Страна
    Польша
  • Область / штат
    Мазовецкое воеводство
  • Город
    Варшава
  • Адрес
    Wloscianska
  • Метро
    Marymont (~ 900 м)

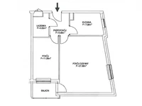
Характеристики объекта

Параметры объекта

  • Цена за м²
    Цена за м²
    $4,086/м²
  • Количество комнат
    Количество комнат
    2
  • Общая площадь
    Общая площадь
    54 м²

Описание

Продается просторная и солнечная квартира в Жолиборзе

Местонахождение на карте

Польша, Варшава
Образование
Здравоохранение
Insight Estate
Задайте все интересующие вопросы
Отправьте Вашу заявку агенту
Спасибо! Ваша заявка принята
Хочу посмотреть этот объект. Актуальна ли стоимость объекта? Хочу получить больше информации об объекте. Какие условия покупки для иностранцев? Хотел бы посмотреть больше фото/видео. Возможна ли покупка в кредит/ипотеку? Получу ли я ВНЖ при покупке недвижимости?
Назад Оставить заявку Показать контакты
Похожие объекты
Коммерческое помещение 53 м² в Варшава, Польша
Коммерческое помещение 53 м²
Варшава, Польша
Число комнат 3
Площадь 53 м²
Вы мечтаете жить вокруг зеленого, не отказываясь от близости оживленного центра?
$215,379
Оставить заявку
Закрыть
Пожалуйста, скажите продавцу, что Вы нашли это объявление на Realting.com
Агентство
Zaitseva Estates
Языки общения
Русский, Polski
Коммерческое помещение 58 м² в Познань, Польша
Коммерческое помещение 58 м²
Познань, Польша
Число комнат 3
Площадь 58 м²
Звоните и спрашивайте подробности. Посмотрите на квартиру и убедитесь, что это реальная возм…
$226,210
Оставить заявку
Закрыть
Пожалуйста, скажите продавцу, что Вы нашли это объявление на Realting.com
Агентство
Zaitseva Estates
Языки общения
Русский, Polski
Коммерческое помещение 30 м² в Варшава, Польша
Коммерческое помещение 30 м²
Варшава, Польша
Число комнат 1
Площадь 30 м²
Продается квартира 29,59 м2 в элитной инвестиционной башне по адресу ул. Гжибовская, 49 – в …
$229,637
Оставить заявку
Закрыть
Пожалуйста, скажите продавцу, что Вы нашли это объявление на Realting.com
Агентство
Zaitseva Estates
Языки общения
Русский, Polski
Коммерческое помещение 67 м² в Прушкув, Польша
Коммерческое помещение 67 м²
Прушкув, Польша
Число комнат 4
Площадь 67 м²
Количество этажей 5
Продается коммерческое помещение площадью 67 м² в современном доме.  Помещение расположено н…
$204,880
Оставить заявку
Закрыть
Пожалуйста, скажите продавцу, что Вы нашли это объявление на Realting.com
Агентство
OKEASK
Языки общения
English, Русский, Polski, Українська, Türkçe
Коммерческое помещение 53 м² в Варшава, Польша
Коммерческое помещение 53 м²
Варшава, Польша
Число комнат 2
Площадь 53 м²
Продается: 2-комнатная квартира площадью 52,7 м2 (плюс шкаф 7,61 м2 - в цене!), расположенна…
$210,926
Оставить заявку
Закрыть
Пожалуйста, скажите продавцу, что Вы нашли это объявление на Realting.com
Агентство
Zaitseva Estates
Языки общения
Русский, Polski
Коммерческое помещение 27 м² в Варшава, Польша
Коммерческое помещение 27 м²
Варшава, Польша
Число комнат 2
Площадь 27 м²
Привлекательная квартира в отличном месте по адресу ул. Зджеховского, 10 (в задней части ТВП…
$230,656
Оставить заявку
Закрыть
Пожалуйста, скажите продавцу, что Вы нашли это объявление на Realting.com
Агентство
Zaitseva Estates
Языки общения
Русский, Polski
Коммерческое помещение 67 м² в Прушкув, Польша
Коммерческое помещение 67 м²
Прушкув, Польша
Число комнат 4
Площадь 67 м²
Количество этажей 5
Продается полностью оборудованное торгово-услуговое помещение площадью 67 м², расположенное …
$219,685
Оставить заявку
Закрыть
Пожалуйста, скажите продавцу, что Вы нашли это объявление на Realting.com
Агентство
OKEASK
Языки общения
English, Русский, Polski, Українська, Türkçe
Коммерческое помещение 50 м² в Варшава, Польша
Коммерческое помещение 50 м²
Варшава, Польша
Площадь 50 м²
Количество этажей 4
Это новый жилой комплекс, строящийся на стыке двух варшавских районов - Вавера и Праги Полюд…
$197,267
Оставить заявку
Закрыть
Пожалуйста, скажите продавцу, что Вы нашли это объявление на Realting.com
Агентство
Mazur Estate
Языки общения
Русский, Polski, Українська