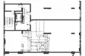
Помещение оформлено как студия пилатеса, с отдельным залом с рецепцией, 2 тренажерными залами, 2 раздевалками и ванной комнатой. Балкона нет.
Помещение двухстороннее, окна выходят на юго-восток - на территорию жилого комплекса, и на северо-запад - окна выходят на ул. Rydygiera.
В рамках доли в общем имуществе собственник помещения имеет право пользования двумя парковочными местами № 118 и 120 в многоквартирном гараже, расположенном на этаже «-2».
Помещение имеет договор аренды с заверенной датой. Рентабельность инвестиций 8%.
]]>