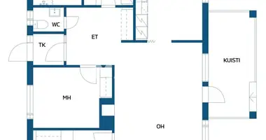
Dom 4 pokoi 137 m² Liperi, Finlandia

Liperi, Viinijarvi, Finlandia, Joensuu sub region
$194,805
$1,422/m²
;
In CRM: 673996
Identyfikator reklamy na stronie internetowej lub w firmowym CRM
Data aktualizacji: 2.04.2026

Lokalizacja

  • Kraj
    Finlandia
  • Region / Państwo
    Mainland Finland
  • Miasto
    Joensuu sub-region
  • Miasteczko
    Liperi
  • Adres
    Siikoniementie

Charakterystyka obiektu

Parametry budynku

  • Liczba kondygnacji
    Liczba kondygnacji
    1
  • Piętro
    Piętro
    1
  • Rooms:
    Rooms:
    4
  • Bedrooms:
    Bedrooms:
    3
  • Bathrooms:
    Bathrooms:
    1
  • Powierzchnia całkowita
    Powierzchnia całkowita
    137 m²
  • Powierzchnia działki
    Powierzchnia działki
    8 251 m²

Szczegóły wnętrza

Urządzenia AGD:

  • Zmywarka
  • Lodówka
  • Kuchenka

Wyposażenie wnętrza:

  • Internet

Funkcje naprawy:

  • Odnowiony

Lokalizacja

  • Niedaleko restauracji

Opis

Witamy w Viinijärvi Siikoniementie! Tu buduje się codzienne życie, z przestrzenią do oddychania, możliwościami do zrobienia i pokojem do zabawy. Dom został starannie utrzymany i odnowiony na przestrzeni lat: między innymi, kuchnia, sauna, łazienka, kanalizacja, wentylacja i sufit wodny zostały zaktualizowane. Powierzchnia wnętrza jest w dobrym stanie, a życie jest wygodne bez większych potrzeb renowacyjnych. Ogrzewanie elektryczne jest obsługiwane przez kominek magazynowy i pompę ciepła powietrza. Dodatkowe udogodnienia, które są odpowiednie do małych działań biznesowych, takich jak bankiet lub catering, sprawiają, że nieruchomość jest wyjątkowa. Istnieje również mnóstwo garażu i miejsca do przechowywania dla entuzjastów. Bogata dzia ³ ka o powierzchni 8,200 m ² oferuje wiele mo ¿liwo ¶ ci. To miejsce jest odpowiednie, na przykład dla rodziny, przedsiębiorcy lub kogoś, kto ceni wolność: ich własny pokój, ale dobre powiązania. Lokalne usługi można znaleźć w Vinijärvi i nowa szkoła podstawowa ma się otworzyć w miejscowości. Dojazd do rynków w Joensuu zajmuje tylko około 20 minut. Skontaktuj się z nami i zaaranżuj własne wprowadzenie!

Lokalizacja na mapie

Liperi, Viinijarvi, Finlandia, Joensuu sub region

Kalkulator hipoteczny

Stopa procentowa, %
Okres kredytowania, lata
Koszt nieruchomości
Płatność początkowa, %
{{ initialPaymentCurrency }} USD
Uwaga!!! Zmienili Państwo parametr koszt mieszkania na {{ differentPrice }}%. Wpływa to na zasadność wyliczenia miesięcznych płatności za obecną nieruchomość. Odłóż to.
Stopa procentowa
{{ loanPercentValue.toLocaleString() }} %
Stopa procentowa
Kwota pożyczki
{{ mortgageAmount }} USD
Kwota pożyczki
Terminy
{{ loanPeriodValue | pluralize("rok", "lata") }}
Terminy
Płatność miesięczna
{{ paymentPerMonth }} USD
Płatność miesięczna
HayatHayat
Zadaj wszelkie pytania, które możesz mieć
Wysłać wniosek do agenta
Dziękujemy! Zgłoszenie zostało przyjęte
Chcę zobaczyć ten obiekt. Czy wartość nieruchomości jest aktualna? Chciałbym uzyskać więcej informacji na temat nieruchomości. Jakie są warunki zakupu dla cudzoziemców? Chciałbym zobaczyć więcej zdjęć/filmów. Czy można kupić na kredyt/hipotekę? Czy otrzymam pozwolenie na pobyt, jeśli kupię nieruchomość?
Powrót do Zostawić wniosek Pokaż kontakty
Podobne obiekty
Dom 5 pokojów w Kouvola sub region, Finlandia
Dom 5 pokojów
Kouvola sub region, Finlandia
Pokoje 5
Sypialnie 3
Liczba łazienek 1
Powierzchnia 135 m²
Piętro 1/2
Skontaktuj się z przedstawicielem Habita, aby uzyskać więcej informacji na temat tego obiektu.
$217,940
Zostaw prośbę
Zamknij
Proszę, powiedz mi, że znalazłeś to ogłoszenie na Realting.com
Agencja
International real estate agency Habita
Języki komunikacji
English, Русский, Deutsch, Français, Svenska, Suomi, Italiano, Dutch
Dom 4 pokoi w Raahe, Finlandia
Dom 4 pokoi
Raahe, Finlandia
Pokoje 4
Sypialnie 3
Liczba łazienek 1
Powierzchnia 95 m²
Piętro 1/1
Dom w Ollinsaari, Raahe, który został zamówiony w 2022 roku, poszukuje nowych właścicieli. K…
$193,925
Zostaw prośbę
Zamknij
Proszę, powiedz mi, że znalazłeś to ogłoszenie na Realting.com
Agencja
International real estate agency Habita
Języki komunikacji
English, Русский, Deutsch, Français, Svenska, Suomi, Italiano, Dutch
Dom 4 pokoi w Helsinki sub region, Finlandia
Dom 4 pokoi
Helsinki sub region, Finlandia
Pokoje 4
Sypialnie 2
Liczba łazienek 1
Powierzchnia 112 m²
Piętro 1/2
Skontaktuj się z przedstawicielem Habita, aby uzyskać więcej informacji na temat tego obiektu.
$209,868
Zostaw prośbę
Zamknij
Proszę, powiedz mi, że znalazłeś to ogłoszenie na Realting.com
Agencja
International real estate agency Habita
Języki komunikacji
English, Русский, Deutsch, Français, Svenska, Suomi, Italiano, Dutch
Dom 4 pokoi w Valkeakoski, Finlandia
Dom 4 pokoi
Valkeakoski, Finlandia
Pokoje 4
Sypialnie 3
Liczba łazienek 1
Powierzchnia 101 m²
Piętro 1/1
Jasny i nowoczesny dom półautomatyczny w pożądanym obszarze! Bezpośrednio zwalniam - ten pi…
$219,156
Zostaw prośbę
Zamknij
Proszę, powiedz mi, że znalazłeś to ogłoszenie na Realting.com
Agencja
International real estate agency Habita
Języki komunikacji
English, Русский, Deutsch, Français, Svenska, Suomi, Italiano, Dutch
Dom 3 pokoi w Loviisa, Finlandia
Dom 3 pokoi
Loviisa, Finlandia
Pokoje 3
Sypialnie 2
Liczba łazienek 1
Powierzchnia 108 m²
Piętro 2/2
Skontaktuj się z przedstawicielem Habita, aby uzyskać więcej informacji na temat tego obiektu.
$211,137
Zostaw prośbę
Zamknij
Proszę, powiedz mi, że znalazłeś to ogłoszenie na Realting.com
Agencja
International real estate agency Habita
Języki komunikacji
English, Русский, Deutsch, Français, Svenska, Suomi, Italiano, Dutch
Dom 3 pokoi w Vaasa sub region, Finlandia
Dom 3 pokoi
Vaasa sub region, Finlandia
Pokoje 3
Sypialnie 2
Liczba łazienek 1
Powierzchnia 110 m²
Piętro 1/1
Skontaktuj się z przedstawicielem Habita, aby uzyskać więcej informacji na temat tego obiektu.
$172,774
Zostaw prośbę
Zamknij
Proszę, powiedz mi, że znalazłeś to ogłoszenie na Realting.com
Agencja
International real estate agency Habita
Języki komunikacji
English, Русский, Deutsch, Français, Svenska, Suomi, Italiano, Dutch
Dom 6 pokojów w Mantsala, Finlandia
Dom 6 pokojów
Mantsala, Finlandia
Pokoje 6
Sypialnie 4
Liczba łazienek 1
Powierzchnia 120 m²
Piętro 1/3
Skontaktuj się z przedstawicielem Habita, aby uzyskać więcej informacji na temat tego obiektu.
$217,996
Zostaw prośbę
Zamknij
Proszę, powiedz mi, że znalazłeś to ogłoszenie na Realting.com
Agencja
International real estate agency Habita
Języki komunikacji
English, Русский, Deutsch, Français, Svenska, Suomi, Italiano, Dutch
Dom 4 pokoi w Hamina, Finlandia
Dom 4 pokoi
Hamina, Finlandia
Pokoje 4
Sypialnie 3
Liczba łazienek 1
Powierzchnia 160 m²
Piętro 1/2
Skontaktuj się z przedstawicielem Habita, aby uzyskać więcej informacji na temat tego obiektu.
$170,859
Zostaw prośbę
Zamknij
Proszę, powiedz mi, że znalazłeś to ogłoszenie na Realting.com
Agencja
International real estate agency Habita
Języki komunikacji
English, Русский, Deutsch, Français, Svenska, Suomi, Italiano, Dutch