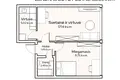
2 room apartment 38 m² Kaunas, Lithuania

Lithuania, Kaunas
$59,031
$1,551/m²
;
ID: 3608936
Property ID on Realting
In CRM: 1297752488200
ID of the ad on the website or in the company’s CRM
Last update: 23/09/2025

Location

  • Country
    Lithuania
  • State
    Kaunas County
  • Region
    Kauno miesto savivaldybe
  • City
    Kaunas
  • Address
    Jonavos g

Property characteristics

Apartment parameters

  • Price per m²
    Price per m²
    $1,551/m²
  • Floor
    Floor
    5
  • Rooms
    Rooms
    2
  • Total area
    Total area
    38 m²

Building parameters

  • The year of construction
    The year of construction
    1976
  • Number of floors
    Number of floors
    5

Interior details

Heating:

  • Central heating

Repair features:

  • Needs Repair

Construction details

Construction materials:

  • Brick

Description

SALE YONAVOS G., LANGUAGE, KAUNE - COUNTRY NERIES CRANTS! _ GENERAL: • Address: Jonavos g. 182, Kalniečiai, Žaliakalnio seniūnija, Kaunas • Area: 38,05 sq.m • Number of rooms: 4 • High: 5 from 5 • Building type: • Year of construction: 1976 • Heating: central -------------------------------------------------------------------------------------------------------------------------------- PRINCIPLES: • Apartment with kitchen and bathroom • Comfortable and compact apartment • 5 floor of 5 - more light and privacy • Neat house, quiet neighborhood • Central-collector heating - adjustable costs, economical option • Apartment to be renovated - the ability to install according to your needs and styles -------------------------------------------------------------------------------------------------------------------------------- INFRASTRUCTURE: • Neris quay with walking and cycling paths - next to • Nearby shopping centers, Kaunas Clinic • Convenient access to the city centre by car and public transport -------------------------------------------------------------------------------------------------------------------------------- I'm calling for a look. You're welcome at a time! You can find all the latest CAPITAL real estate ads on our website www.capital.lt. Please visit!

Location on the map

Lithuania, Kaunas
Education
Healthcare

Mortgage calculator

Interest rate, %
Loan term, years
Property cost
Down payment, %
{{ initialPaymentCurrency }} USD
Please note! You changed the property cost parameter to {{ differentPrice }}%. This affects the relevance of the calculation of monthly payments for the current property. Return
Interest rate
{{ loanPercentValue.toLocaleString() }} %
Interest rate
Loan amount
{{ mortgageAmount }} USD
Loan amount
Period
{{ loanPeriodValue | pluralize("year", "years") }}
Period
Monthly payment
{{ paymentPerMonth }} USD
Monthly payment
Ask all your questions
Send your request to the agent
Thank you! Your request has been accepted
I want to view this property. Is the price of the property relevant? I want more information about the property. What are the purchase conditions for foreigners? I want to see more photos/videos. Is it possible to buy with a loan/mortgage? Will I get a residence permit if I buy a property?
Back Leave a request Show contacts
Similar properties
2 room apartment in Mazeikiai, Lithuania
2 room apartment
Mazeikiai, Lithuania
Rooms 2
Area 50 m²
Floor 4/5
SUBMITTED PROCEDURE 2 KAMB. BUT BUTTER SUBMITTED WITH VOCATIONAL AND FORMER TECHNICAL GENER…
$58,124
Leave a request
Close
Please tell the seller that you found this ad on Realting.com
Agency
Capital
Languages
English, Русский, Deutsch, Polski, Français, Lietuvių
2 room apartment in Mazeikiai, Lithuania
2 room apartment
Mazeikiai, Lithuania
Rooms 2
Area 50 m²
Floor 3/5
SUBMITTED PROCEDURE 2 KAMB. BUT BUT SALE WITH ALL PUBLICATIONS AND BUT TECHNICAL GENERAL Lo…
$63,253
Leave a request
Close
Please tell the seller that you found this ad on Realting.com
Agency
Capital
Languages
English, Русский, Deutsch, Polski, Français, Lietuvių
2 room apartment in Vidiskiai, Lithuania
2 room apartment
Vidiskiai, Lithuania
Rooms 2
Area 56 m²
Floor 2/3
2 times for sale. Apartment Jasiuliškis K. ---------------------------------------- - Functi…
$62,683
Leave a request
Close
Please tell the seller that you found this ad on Realting.com
Agency
Capital
Languages
English, Русский, Deutsch, Polski, Français, Lietuvių
3 room apartment in Kaunas, Lithuania
3 room apartment
Kaunas, Lithuania
Rooms 3
Area 38 m²
Floor 1/2
Sold 3 CABLES WITH A LOW OF LAND SHARE IN RAW!! -- Three-room apartment in the wooden two-st…
$57,448
Leave a request
Close
Please tell the seller that you found this ad on Realting.com
Agency
Capital
Languages
English, Русский, Deutsch, Polski, Français, Lietuvių
3 room apartment in Visaginas, Lithuania
3 room apartment
Visaginas, Lithuania
Rooms 3
Area 62 m²
Floor 1/5
SALE OF THE SPACE OF 3 CASTLE IN VISAGINE Spacious 3-room apartment for sale in calm place …
$52,771
Leave a request
Close
Please tell the seller that you found this ad on Realting.com
Agency
Capital
Languages
English, Русский, Deutsch, Polski, Français, Lietuvių
2 room apartment in Panevėžys, Lithuania
2 room apartment
Panevėžys, Lithuania
Rooms 2
Area 47 m²
Floor 5/5
2 rooms apartment for sale in Tulip street. A great place near the park and Kalnapilio Arena…
$62,786
Leave a request
Close
Please tell the seller that you found this ad on Realting.com
Agency
Capital
Languages
English, Русский, Deutsch, Polski, Français, Lietuvių
1 room apartment in Kaunas, Lithuania
1 room apartment
Kaunas, Lithuania
Rooms 1
Area 32 m²
Floor 2/5
A cozy apartment of the type of apartment is sold in a very nice place. From two rooms made:…
$52,026
Leave a request
Close
Please tell the seller that you found this ad on Realting.com
Agency
Capital
Languages
English, Русский, Deutsch, Polski, Français, Lietuvių
2 room apartment in Mazeikiai, Lithuania
2 room apartment
Mazeikiai, Lithuania
Rooms 2
Area 50 m²
Floor 1/5
NEW SALE OF 2 KAMB. BUT AFTER REMONTO BUTE Location: Žemaitijos g. 27, Mažeikiai - 2 rooms …
$67,548
Leave a request
Close
Please tell the seller that you found this ad on Realting.com
Agency
Capital
Languages
English, Русский, Deutsch, Polski, Français, Lietuvių