Wohnung 3 Schlafzimmer Msida, Malta

Msida, Malta
Archivpreis Preis auf Anfrage
Verkauft oder veraltet
Ähnliche Objekte
Aktualisiert: 25.09.25

Standort

Grundstück: Malta
Region / Bundesland: Central Region
Stadt: Msida

Angaben zu den Wohnungen

Die Schlafzimmer: 3
Die Badezimmer: 2

Beschreibung

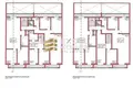
Ein 3-Zimmer-Duplex-Wohnung in Msida sehr zentral und in der Nähe aller Annehmlichkeiten. Diese Immobilie verfügt über eine offene Küche/Wohn-/Essecke und 3 Schlafzimmer (hauptsächlich mit en suite). Hauptbad und 4 Balkone. Wird in Schalenform verkauft. Tolle Investition zur Miete. Halt frei.

Standort

Msida, Malta
Ausbildung
Gesundheitspflege
Essen & Trinken