Эксклюзивный большой семейный пентхаус в роскошном курорте с открытыми и крытыми бассейнами, спортзалом, социальным клубом и кортами для гребли
Проект CVN — это жилой комплекс, созданный для обеспечения комфорта для вас и ваших близких, где каждый день может быть лучше, чем предыдущий. Мы предлагаем вам комплекс из 166 домов с 2, 3 и 4 спальнями. Во всех домах есть кладовое помещение и гараж. Ваш дом станет идеальным местом для жизни без забот, с идеальным сочетанием общих зон, спокойной обстановки и городской среды. Мы позаботились о каждой мелочи. Качество и современный дизайн придают этому комплексу непревзойдённый дух. Célere Vitta Nature — это дома, которые строят ваше будущее.
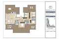
Дома сочетают в себе универсальность и комфорт благодаря оптимизированным открытым пространствам. Примером этого являются кухни с островом, открытыми и интегрированными в гостиную. В спальнях есть прямой выход на террасы, чтобы насладиться бризом в моменты отдыха.
В квартирах на верхнем этаже террасы более просторные и открываются панорамные виды на Средиземное море, а на первом этаже есть частный сад. Все выбранные материалы соответствуют самым высоким стандартам качества, чтобы предложить вам современную эстетику, соответствующую средиземноморскому дизайну.
---
Наше комплексное предложение:
- Специальные знания и опыт в сфере новостройки
- Профессиональная консультация и анализ ваших потребностей
- Подбор интересных объектов в соответствии с вашими критериями поиска
- 0% комиссии для наших клиентов-покупателей
- Планирование вашей поездки и организация просмотров недвижимости
- Трансфер: аэропорт – отель – объекты – экскурсионное сопровождение
- Проверка договоров и документов на недвижимость
- Помощь в получении ипотеки в национальных банках до 70% стоимости
- Открытие банковского счёта, получение налогового номера и визовая поддержка
- Помощь в получении лицензии на аренду вашей недвижимости
- Организация подключения воды, электричества и интернета
- Помощь в оформлении страхования дома и установке охранной сигнализации
- Рекомендации проверенных юристов и налоговых консультантов
- Услуги дизайна интерьера и управление арендой (по желанию)
- Перелёт и проживание в роскошном 5-звёздочном отеле во время вашей поездки *
- Помощь в открытии компании в ОАЭ (налог 0–9%) *
