Земельные участки Котор, Черногория

Котор, Черногория
$182,846
;
In CRM: 77083
ID объявления на сайте или в CRM компании
Дата обновления: 11.07.2025

Местонахождение

  • Страна
    Черногория
  • Район
    Община Котор
  • Город
    Котор

Описание

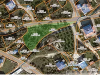
Предлагаем к продаже урбанизированный земельный участок площадью 1557 м², расположенный в живописном поселке Лешевичи (муниципалитет Котор), с великолепным видом на Тиватский залив. Участок идеально подходит для жилого, туристического или коммерческого строительства, находясь в смешанной зоне согласно градостроительным условиям (UT). Основные характеристики: - площадь 1557 м²; - доступ с двух сторон асфальтированной дороги (трасса Радановичи — Бигова); - подключения к водоснабжению и электросети в наличии; - пологий склон — идеален для строительства с минимальными затратами на подготовку участка; - прекрасные виды на залив и зелёные окрестности. Параметры застройки: - разрешённое количество этажей: P+2; - индекс застройки - 1.0; - индекс плотности (занятости) - 0.4. Потенциал Благодаря своему расположению и статусу, участок идеально подойдёт для строительства частной виллы, мини-отеля, апарт-комплекса или коммерческого объекта в экологически чистом районе с удобной транспортной доступностью. Документы Собственность 1/1, документы проверены и готовы к сделке. Если вы ищете перспективную инвестицию с потрясающим видом и полной готовностью к застройке — этот участок станет идеальным решением.

Местонахождение на карте

Котор, Черногория
Образование
Здравоохранение
Еда и напитки
Финансы
ParkviewParkview
Задайте все интересующие вопросы
Отправьте Вашу заявку агенту
Спасибо! Ваша заявка принята
Хочу посмотреть этот объект. Актуальна ли стоимость объекта? Хочу получить больше информации об объекте. Какие условия покупки для иностранцев? Хотел бы посмотреть больше фото/видео. Возможна ли покупка в кредит/ипотеку? Получу ли я ВНЖ при покупке недвижимости?
Назад Оставить заявку Показать контакты
Похожие объекты
Участок земли в Петровац, Черногория
Участок земли
Петровац, Черногория
Для продажи: урбанизированный участок в Петроваце, Первая зона, в 250 метрах от моряОбщая пл…
$198,282
Оставить заявку
Закрыть
Пожалуйста, скажите продавцу, что Вы нашли это объявление на Realting.com
Агентство
AMFORA REAL ESTATE
Языки общения
English, Русский, Türkçe, Crnogorski
Участок земли в Черногория
Участок земли
Черногория
Недвижимость, Черногория - КоторПродается: Урбанизированная земля площадью 615 м2, расположе…
$208,779
Оставить заявку
Закрыть
Пожалуйста, скажите продавцу, что Вы нашли это объявление на Realting.com
Агентство
AMFORA REAL ESTATE
Языки общения
English, Русский, Türkçe, Crnogorski
Участок земли в Жабляк, Черногория
Участок земли
Жабляк, Черногория
Недвижимость, Черногория, ЖаблякПродается участок земли площадью 4000 м2 в Боре, Жабляк!Учас…
$180,787
Оставить заявку
Закрыть
Пожалуйста, скажите продавцу, что Вы нашли это объявление на Realting.com
Агентство
AMFORA REAL ESTATE
Языки общения
English, Русский, Türkçe, Crnogorski
Участок земли в Будва, Черногория
Участок земли
Будва, Черногория
Представляем к продаже земельный участок площадью 304 кв. м, расположенный в живописном райо…
$168,883
Оставить заявку
Закрыть
Пожалуйста, скажите продавцу, что Вы нашли это объявление на Realting.com
Агентство
Monteonline
Языки общения
English, Русский, Српски
Участок земли в Подгорица, Черногория
Участок земли
Подгорица, Черногория
Продается урбанизированный участок площадью 1600 м2 в Должани, Подгорица.Участок идеально пл…
$195,949
Оставить заявку
Закрыть
Пожалуйста, скажите продавцу, что Вы нашли это объявление на Realting.com
Агентство
AMFORA REAL ESTATE
Языки общения
English, Русский, Türkçe, Crnogorski