*R Y D Y G I E R A 13, 3 HABITACIONES, HEART OF GREEN ŻOLIBORZ*
Le invitamos a familiarizarse con la oferta de venta de un elegante apartamento de 3 habitaciones con una superficie de 86 m2, situado en una prestigiosa ubicación en ul. Ludwika Rydygiera en el Żoliborz de Varsovia.
Este apartamento impresiona con su estilo moderno, funcionalidad y acabado lujoso.
El apartamento ha sido terminado al más alto nivel:
- Piso de roble uniforme de madera en todo el apartamento (excepto baños)
- Encimeras de mármol, pared en la cocina
- Armarios de madera
- Cocina de madera maciza oscura
- Baño equipado con Villeroy & Boch
- Radio montada en ambos baños
- Madera, ventanas panorámicas
- Elementos de equipo únicos, muchos de ellos importados del extranjero, encontrados por arquitectos. - Escalinata representativa con alto nivel de acabado
- Puertas de madera altas, elegantes y gruesas en cada habitación
Principales ventajas de la propiedad:
1. Amplio y brillo de los interiores - 2.80 m de altura y ventanas panorámicas de madera son una garantía de amplitud y excelente iluminación.
Los interiores del apartamento son luminosos, lo que crea un ambiente acogedor y elegante, así como un espacio universal para el arreglo.
2. Apartamento bien pensado - El apartamento consta de un amplio salón con cocina americana, dos amplios dormitorios con y dos baños (con bañera y ducha).
Un amplio armario proporciona espacio de almacenamiento adicional.
Todo fue diseñado con el máximo uso del espacio y la comodidad diaria de los residentes en mente,
3. Alto nivel de acabado - El apartamento fue terminado en un estilo moderno con los materiales de la más alta calidad. Cada detalle, desde suelos hasta muebles, ha sido cuidadosamente seleccionado para satisfacer las expectativas de incluso los clientes más exigentes manteniendo un estilo de diseño,
4. Instrucciones del mundo - Tanto el sur como el noreste de la exposición, apartamento perfectamente iluminado todo el día.
Descripción de la propiedad:
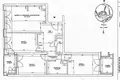
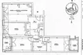
Apartamento con una superficie de 86.16 m2
- Alto.
- Espacioso salón con cocina americana (loggia con exposición noreste)
- Cuarto de baño con ducha
-Wardrobe
-Baño con bañera
-Dormitorio (loggia con exposición noreste)
-Habitación (loggia con exposición sur)
Greenery and recreation:
Żoliborz es famoso por sus hermosos parques, como Sady Żoliborskie Park o Cytadela Park. Estos son lugares ideales para paseos, footing o relax fin de semana.
Ubicación – el corazón de Żoliborz
Cerca: Sady Żoliborskie, Plac Grunwaldzki, Dworzec Gdański
A 5 minutos de: CH Arkadia, estación de metro, numerosos restaurantes y puntos de servicio
Ambiente íntimo, entorno verde
Apartamento – modernidad y espacio La propiedad se encuentra en la primera planta de un edificio desde 2014. En 86 m2 encontrará:
Un amplio salón con zona de cocina – ideal para la relajación y reuniones,
Dos dormitorios – cómodo y acogedor,
Dos baños,
Un vestidor
Dos loggias – un gran lugar para relajarse rodeado de árboles
Los cambios arquitectónicos han aumentado la superficie en 0,5-1 m2.
Acabados de clase alta, electrodomésticos modernos y altura superior de las habitaciones (280 cm) dan la ligereza interior y la elegancia. Ventajas adicionales:
Silencio y vegetación fuera de la ventana,
Propiedad vigilada con seguridad 24/7,
Infraestructura rica - tiendas, gimnasios, restaurantes, cultura y recreación a su alcance,
Gran comunicación - acceso rápido en metro y transporte público.
El apartamento incluye una plaza de aparcamiento en el garaje subterráneo (60.000 PLN).
Precio e información adicional
Precio: PLN 2,390,000
Lugar en el garaje subterráneo: 60.000 PLN
Superficie: 86.16 m2
Diseño: 3 habitaciones 2 loggias independientes.
