Квартира 2 комнаты 52 м² Солигорск, Беларусь

Беларусь, Солигорск
$58,000
$1,111/м²
;
Дата обновления: 01.10.2025

Местонахождение

  • Страна
    Беларусь
  • Область / штат
    Минская область
  • Район
    Солигорский район
  • Город
    Солигорск
  • Адрес
    Молодёжная улица, 36

Характеристики объекта

Параметры квартиры

  • Цена за м²
    Цена за м²
    $1,111/м²
  • Этаж
    Этаж
    7
  • Количество комнат
    Количество комнат
    2
  • Общая площадь
    Общая площадь
    52 м²

Параметры здания

  • Год сдачи
    Год сдачи
    2016
  • Количество этажей
    Количество этажей
    10

Элементы интерьера

Особенности интерьера:

  • С мебелью
  • Металлическая дверь
  • Стеклопакеты
  • Бытовая техника
  • Домофон
  • Встроенный шкаф

Расположение

  • Рядом с парками

Описание

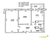
Свежее предложение. 2-комнатная квартира 52,2 м2 в г. Солигорск, ул. Молодежная, 36.

  • Отличная планировка, хорошие площади: 52,2 м2 - по СНБ/ 49,7 - общая / жилая - 27,9 м2 (2 жилые раздельные комнаты по 17,0 и 10,9 м2)/ кухня - 8,4. Раздельный санузел. Окна все ПВХ. 
  • Этаж 7 из 10. Дом 2016 года постройки. 
  • Квартира просторная, уютная и комфортная. 
  • Напольное покрытие: линолеум/ плитка. Потолки натяжные. 
  • Дом панельный. Есть лифт. На этаже 4 квартиры. Аккуратный, чистый двор и подъезд. Есть парковка. 
  • Окна квартиры выходят на лес. 
  • Рядом с домом имеется вся необходимая инфраструктура. 
  • Хорошее расположение. Удобный выезд из города. 

Продается со всей бытовой техникой. Мебель останется частично - уточняйте при звонке. 

Открыты к диалогу со всеми заинтересованными покупателями! 

Приглашаем на просмотр реальных покупателей! 

Звоните/ пишите. Ответим на все интересующие Вас вопросы. Согласуем удобное время для просмотра. 

Поможем забронировать эту квартиру для Вас. 
Окажем помощь в кредитовании. 
Юридическую чистоту и сопровождение сделки гарантируем. 

Смотрите еще больше в нашем Telegram канале @an7_estate Номер договора с агентством 1031/3 от 2025-07-22

Местонахождение на карте

Беларусь, Солигорск
Образование
Здравоохранение
Еда и напитки

Калькулятор ипотеки

Процентная ставка, %
Срок кредитования, лет
Стоимость жилья
Первоначальный взнос, %
{{ initialPaymentCurrency }} USD
Обратите внимание! Вы изменили параметр стоимости жилья на {{ differentPrice }}%. Это влияет на актуальность расчета ежемесячных платежей для текущего объекта недвижимости. Вернуть обратно
Процентная ставка
{{ loanPercentValue.toLocaleString() }} %
Процентная ставка
Сумма кредита
{{ mortgageAmount }} USD
Сумма кредита
Срок
{{ loanPeriodValue | pluralizeRu("год", "года", "лет") }}
Срок
Ежемесячный платеж
{{ paymentPerMonth }} USD
Ежемесячный платеж
Задайте все интересующие вопросы
Отправьте Вашу заявку агенту
Спасибо! Ваша заявка принята
Хочу посмотреть этот объект. Актуальна ли стоимость объекта? Хочу получить больше информации об объекте. Какие условия покупки для иностранцев? Хотел бы посмотреть больше фото/видео. Возможна ли покупка в кредит/ипотеку? Получу ли я ВНЖ при покупке недвижимости?
Назад Оставить заявку
Похожие объекты
Квартира 2 комнаты в Нарочь, Беларусь
Квартира 2 комнаты
Нарочь, Беларусь
Число комнат 2
Площадь 53 м²
Этаж 1/4
2-комнатная квартира у озера Нарочь  ❤️ Просторная двухкомнатная квартира с хорошим ремонтом…
$65,000
Оставить заявку
Закрыть
Пожалуйста, скажите продавцу, что Вы нашли это объявление на Realting.com
Агентство
Центр международной недвижимости Моя 7Я
Языки общения
English, Русский
Квартира 3 комнаты в Дзержинск, Беларусь
Квартира 3 комнаты
Дзержинск, Беларусь
Число комнат 3
Площадь 63 м²
Этаж 5/5
Квартира, в которую приятно возвращаться! ❤️ Продается просторная трехкомнатная квартира, в …
$61,900
Оставить заявку
Закрыть
Пожалуйста, скажите продавцу, что Вы нашли это объявление на Realting.com
Агентство
Центр международной недвижимости Моя 7Я
Языки общения
English, Русский
Квартира 1 комната в Минск, Беларусь
Квартира 1 комната
Минск, Беларусь
Число комнат 1
Площадь 33 м²
Этаж 1/12
1-комнатная квартира по доступной цене  ❤️ Однокомнатная квартира в благоустроенном районе, …
$64,500
Оставить заявку
Закрыть
Пожалуйста, скажите продавцу, что Вы нашли это объявление на Realting.com
Агентство
Центр международной недвижимости Моя 7Я
Языки общения
English, Русский
Квартира 1 комната в Минск, Беларусь
Квартира 1 комната
Минск, Беларусь
Число комнат 1
Площадь 30 м²
Этаж 13/25
Квартира в перспективном районе Минска  ❤️ 1-комнатная квартира в современном комплексе Mins…
$60,900
Оставить заявку
Закрыть
Пожалуйста, скажите продавцу, что Вы нашли это объявление на Realting.com
Агентство
Центр международной недвижимости Моя 7Я
Языки общения
English, Русский
Квартира 4 комнаты в Молодечно, Беларусь
Квартира 4 комнаты
Молодечно, Беларусь
Число комнат 4
Площадь 74 м²
Этаж 1/5
4-х комн. кв. для большой семьи на 1 этаже в центре города! ❤️У нас есть идеальное предложен…
$59,000
Оставить заявку
Закрыть
Пожалуйста, скажите продавцу, что Вы нашли это объявление на Realting.com
Агентство
Центр международной недвижимости Моя 7Я
Языки общения
English, Русский
Квартира 2 комнаты в Солигорск, Беларусь
Квартира 2 комнаты
Солигорск, Беларусь
Число комнат 2
Площадь 68 м²
Этаж 3/13
Продаётся 2-комнатная квартира свободной планировки  ❤️ Просторная двухкомнатная квартира в …
$61,000
Оставить заявку
Закрыть
Пожалуйста, скажите продавцу, что Вы нашли это объявление на Realting.com
Агентство
Центр международной недвижимости Моя 7Я
Языки общения
English, Русский
Квартира 1 комната в Минск, Беларусь
Квартира 1 комната
Минск, Беларусь
Число комнат 1
Площадь 35 м²
Этаж 9/9
Отличное решение для жизни и инвестиций  ❤️ Однокомнатная квартира в районе с развитой инфра…
$66,500
Оставить заявку
Закрыть
Пожалуйста, скажите продавцу, что Вы нашли это объявление на Realting.com
Агентство
Центр международной недвижимости Моя 7Я
Языки общения
English, Русский
Квартира 1 комната в Минск, Беларусь
Квартира 1 комната
Минск, Беларусь
Число комнат 1
Площадь 28 м²
Этаж 3/4
Отличное предложение у метро «Партизанская»  ❤️ Тёплая однокомнатная квартира рядом с метро …
$64,000
Оставить заявку
Закрыть
Пожалуйста, скажите продавцу, что Вы нашли это объявление на Realting.com
Агентство
Центр международной недвижимости Моя 7Я
Языки общения
English, Русский