Квартира 2 комнаты 55 м² Минск, Беларусь

Беларусь, Минск, Одинцова ул., 119
$86,000
$1,561/м²
;
ID: 2459028
ID объекта на Realting
Дата обновления: 18.08.2025

Местонахождение

  • Страна
    Беларусь
  • Город
    Минск
  • Адрес
    Одинцова ул., 119

Характеристики объекта

Параметры квартиры

  • Цена за м²
    Цена за м²
    $1,561/м²
  • Этаж
    Этаж
    8
  • Количество комнат
    Количество комнат
    2
  • Общая площадь
    Общая площадь
    55 м²
  • Жилая площадь
    Жилая площадь
    30 м²

Параметры здания

  • Год сдачи
    Год сдачи
    4
  • Количество этажей
    Количество этажей
    9

Описание

Уютная и светлая 2-комнатная квартира в микрорайоне Красный Бор-2. Отличное предложение как для жизни так и для вложения накопленных средств! Ухоженный подъезд. Тихий и зелёный двор с детской площадкой. Достаточное количество парковочных мест. Окна выходят на восток, поэтому в квартире будет комфортная температура как летом, так и зимой. Продуманная и рациональная планировка. Просторные кухня и прихожая. Две раздельные и широкие комнаты. Раздельный санузел с большой ванной комнатой и новой сантехникой. Пекрасно организована система хранения. Квартира готова к проживанию. На полу в жилых комнатах и коридоре уложен паркет, на кухне - линолеум. Установлены деревянные окна, лоджия застеклена окнами ПВХ и утеплена. Кухня с техникой. Стены в санузлах облицованы плиткой. Входная металлическая дверь. Микрорайон отличается развитой инфраструктурой. В шаговой доступности есть всё необходимое для комфортной жизни: детские сады, школа, гимназия, магазины, аптека, почта, банк, автозаправка и многое другое. Рядом большой стадион и хоккейная коробка. Удобный выезд на МКАД. Остановки прямо возле дома. Хорошее транспортное сообщение со всеми районами столицы и пригородом. Две остановки на общественном транспорте до станции метро Каменная горка. Развитая транспортная сеть: автобусы, троллейбусы и маршрутные такси. Территория возле дома просто утопает в зелени. Рядом расположены излюбленные места местных жителей для отдыха, пеших прогулок и занятия спортом: лесопарк Медвежино, Семейный сквер и парк Дививелка. Чистая продажа! Двухкомнатная квартира по адресу ул. Одинцова, д. 119 (Фрунзенский район)
  • Материал стен: блок-комнаты
  • Год постройки: 2004
  • Этаж: 8/9, лоджия застеклена
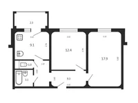
  • Общая площадь: 52.8 Жилая площадь: 30.3 Площадь кухни: 9.1
  • Площадь по СНБ: 55.1 Высота потолка: 2.5
Вам нужно продать или обменять недвижимость?Звоните 7735 или оставьте заявку и получите бесплатную консультацию профильного специалиста.Online-сервисы «Твоя столица»: Калькулятор стоимости. Узнайте столько стоит ваша квартира за 30 секунд!База покупателей. Предложите свой объект нашим покупателям!Кредитование «под ключ». Рассчитайте сумму кредита и платежи!Доставка риэлтерских услуг: Вызовите агента на дом для определения стоимости объекта, консультации по документам и юридическим аспектам вашей сделки. Звоните-7735! ООО Твоя столица, УНП 101136973, лицензия №02240/15 от 17.02.2005г., договор на оказание риэлтерских услуг №53/12 от 01.07.2024г. Номер договора с агентством 53/12 от 2024-07-01

Местонахождение на карте

Беларусь, Минск, Одинцова ул., 119
Образование
Здравоохранение
Продуктовые магазины
Транспорт
Финансы
Досуг

Калькулятор ипотеки

Процентная ставка, %
Срок кредитования, лет
Стоимость жилья
Первоначальный взнос, %
{{ initialPaymentCurrency }} USD
Обратите внимание! Вы изменили параметр стоимости жилья на {{ differentPrice }}%. Это влияет на актуальность расчета ежемесячных платежей для текущего объекта недвижимости. Вернуть обратно
Процентная ставка
{{ loanPercentValue.toLocaleString() }} %
Процентная ставка
Сумма кредита
{{ mortgageAmount }} USD
Сумма кредита
Срок
{{ loanPeriodValue | pluralizeRu("год", "года", "лет") }}
Срок
Ежемесячный платеж
{{ paymentPerMonth }} USD
Ежемесячный платеж
Задайте все интересующие вопросы
Отправьте Вашу заявку агенту
Спасибо! Ваша заявка принята
Хочу посмотреть этот объект. Актуальна ли стоимость объекта? Хочу получить больше информации об объекте. Какие условия покупки для иностранцев? Хотел бы посмотреть больше фото/видео. Возможна ли покупка в кредит/ипотеку? Получу ли я ВНЖ при покупке недвижимости?
Назад Оставить заявку
Похожие объекты
Квартира 2 комнаты в Минск, Беларусь
Квартира 2 комнаты
Минск, Беларусь
Число комнат 2
Площадь 45 м²
Этаж 5/5
Квартира у Лошицкого водохранилища ❤️ Двухкомнатная квартира возле живописных парков и Лошиц…
$74,800
Оставить заявку
Закрыть
Пожалуйста, скажите продавцу, что Вы нашли это объявление на Realting.com
Агентство
Центр международной недвижимости Моя 7Я
Языки общения
English, Русский
Квартира 2 комнаты в Минск, Беларусь
Квартира 2 комнаты
Минск, Беларусь
Число комнат 2
Площадь 53 м²
Этаж 5/12
Готовая к заселению 2-комнатная квартира  ❤️ Отличная двухкомнатная квартира с ремонтом в бл…
$95,000
Оставить заявку
Закрыть
Пожалуйста, скажите продавцу, что Вы нашли это объявление на Realting.com
Агентство
Центр международной недвижимости Моя 7Я
Языки общения
English, Русский
Квартира 3 комнаты в Минск, Беларусь
Квартира 3 комнаты
Минск, Беларусь
Число комнат 3
Площадь 63 м²
Этаж 1/5
Трехкомнатная квартира под ремонт с возможностью перепланировки ❤️ Просторная трёхкомнатная …
$95,000
Оставить заявку
Закрыть
Пожалуйста, скажите продавцу, что Вы нашли это объявление на Realting.com
Агентство
Центр международной недвижимости Моя 7Я
Языки общения
English, Русский
Квартира 4 комнаты в Минск, Беларусь
Квартира 4 комнаты
Минск, Беларусь
Число комнат 4
Площадь 77 м²
Этаж 3/5
Просторная 4-комнатная квартира в зелёном районе Минска ❤️Просторная 4-комнатная квартира в …
$81,500
Оставить заявку
Закрыть
Пожалуйста, скажите продавцу, что Вы нашли это объявление на Realting.com
Агентство
Центр международной недвижимости Моя 7Я
Языки общения
English, Русский