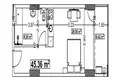
Studio 1 zimmer 45 m² Batumi, Georgien

Georgien, Batumi
$52,000
$1,146/m²
;
Letzte Aktualisierung: 20.01.26

Standort

  • Grundstück
    Georgien
  • Region / Bundesland
    Autonome Republik Adscharien
  • Stadt
    Batumi
  • Adresse
    Adlia Straße, 12

Objekteigenschaften

Angaben zu den Wohnungen

  • Preis pro m²
    Preis pro m²
    $1,146/m²
  • Stockwerk
    Stockwerk
    17
  • Rooms:
    Rooms:
    1
  • Bedrooms:
    Bedrooms:
    1
  • Bathrooms:
    Bathrooms:
    1
  • Gesamt fläche
    Gesamt fläche
    45 m²

Gebäudedaten

  • Etagenzahl
    Etagenzahl
    18

Beschreibung

Verkauft wird das Studio in einem weißen Rahmen.
Die Zimmer bieten Stadtblick.
Geeignet sowohl für den persönlichen Aufenthalt als auch für Investitionen.

Lot 4527ASH

Standort auf der Karte

Georgien, Batumi
Ausbildung
Gesundheitspflege
Essen & Trinken
Finanzen
Freizeit

Hypotheken-Rechner

Zinssatz, %
Laufzeit des Darlehens, jahre
Kosten der Immobilie
Erste Zahlung, %
{{ initialPaymentCurrency }} USD
Bitte beachten Sie! Sie haben den Parameter Wohnkosten geändert in {{ differentPrice }}%. Dies wirkt sich auf die Relevanz der Berechnung der monatlichen Zahlungen für die aktuelle Immobilie aus. Zurücklegen
Zinssatz
{{ loanPercentValue.toLocaleString() }} %
Zinssatz
Darlehensbetrag
{{ mortgageAmount }} USD
Darlehensbetrag
Termin
{{ loanPeriodValue | pluralize("jahr", "jahre") }}
Termin
Monatliche Zahlung
{{ paymentPerMonth }} USD
Monatliche Zahlung
ParkviewParkview
Stellen Sie alle Fragen, die Sie haben
Die Anfrage an den Makler senden
Danke! Ihre Anfrage ist eingegangen
Ich möchte diese Einrichtung sehen. Ist der Immobilienwert aktuell? Ich möchte mehr Informationen über das Objekt. Welche Kaufbedingungen gelten für Ausländer? Möchte mehr Fotos/Videos sehen. Ist ein Kauf auf Kredit/Hypothek möglich? Ist es möglich, eine Aufenthaltsgenehmigung zu erhalten?
Zurück zu Eine Anfrage hinterlassen
Ähnliche Objekte
Wohnung 3 zimmer in Batumi, Georgien
UP UP
Wohnung 3 zimmer
Batumi, Georgien
Zimmer 3
Schlafräume 2
Anzahl der Badezimmer 1
Fläche 84 m²
Wir helfen Ihnen, Immobilien in Batumi sicher und profitabel zu kaufen.Wir helfen bei Hypoth…
$54,574
Eine Anfrage stellen
Schließen
Bitte lassen Sie mich wissen, dass Sie diese Anzeige auf Realting.com
Immobilienagentur
RECOM
Sprachen
English, Русский
Wohnung 2 zimmer in Batumi, Georgien
Wohnung 2 zimmer
Batumi, Georgien
Zimmer 2
Schlafräume 1
Anzahl der Badezimmer 1
Fläche 49 m²
Mortgage for foreign citizens!   Excellent option for investment, personal residence and rec…
$59,000
Eine Anfrage stellen
Schließen
Bitte lassen Sie mich wissen, dass Sie diese Anzeige auf Realting.com
Immobilienagentur
RECOM
Sprachen
English, Русский
Wohnung 2 zimmer in Batumi, Georgien
Wohnung 2 zimmer
Batumi, Georgien
Zimmer 2
Schlafräume 1
Anzahl der Badezimmer 1
Fläche 46 m²
Stockwerk 9
Mortgage for foreign citizens!   Excellent option for investment, personal residence and rec…
$52,000
Eine Anfrage stellen
Schließen
Bitte lassen Sie mich wissen, dass Sie diese Anzeige auf Realting.com
Immobilienagentur
RECOM
Sprachen
English, Русский
Wohnung 2 zimmer in Batumi, Georgien
Wohnung 2 zimmer
Batumi, Georgien
Zimmer 2
Schlafräume 1
Anzahl der Badezimmer 1
Fläche 47 m²
Stockwerk 9/18
Wir helfen Ihnen, Immobilien in Batumi sicher und profitabel zu kaufen.Wir helfen bei Hypoth…
$58,513
Eine Anfrage stellen
Schließen
Bitte lassen Sie mich wissen, dass Sie diese Anzeige auf Realting.com
Immobilienagentur
RECOM
Sprachen
English, Русский
Wohnung 2 zimmer in Batumi, Georgien
Wohnung 2 zimmer
Batumi, Georgien
Zimmer 2
Schlafräume 1
Anzahl der Badezimmer 1
Fläche 58 m²
SMG Palace ist eine 13-stöckige Wohnanlage in der ersten Linie des Meeres.Von Ihrer zukünfti…
$52,200
Eine Anfrage stellen
Schließen
Bitte lassen Sie mich wissen, dass Sie diese Anzeige auf Realting.com
Immobilienagentur
RECOM
Sprachen
English, Русский
Studio 1 zimmer in Batumi, Georgien
Studio 1 zimmer
Batumi, Georgien
Zimmer 1
Schlafräume 1
Anzahl der Badezimmer 1
Fläche 27 m²
Stockwerk 15
Wohnung zum Verkauf mit Meerblick in Rainbow Komplex.Fläche: 27,1 m2, 15 Etage.Die Wohnung w…
$50,000
Eine Anfrage stellen
Schließen
Bitte lassen Sie mich wissen, dass Sie diese Anzeige auf Realting.com
Immobilienagentur
RECOM
Sprachen
English, Русский
Wohnung 2 zimmer in Batumi, Georgien
Wohnung 2 zimmer
Batumi, Georgien
Zimmer 2
Schlafräume 1
Anzahl der Badezimmer 1
Fläche 51 m²
Sea Zone ist ein erstklassiger Wohn- und Investitionskomplex in Batumi, 50 Meter vom Meer en…
$58,368
Eine Anfrage stellen
Schließen
Bitte lassen Sie mich wissen, dass Sie diese Anzeige auf Realting.com
Immobilienagentur
RECOM
Sprachen
English, Русский
Wohnung 2 zimmer in Batumi, Georgien
Wohnung 2 zimmer
Batumi, Georgien
Zimmer 2
Schlafräume 1
Anzahl der Badezimmer 1
Fläche 50 m²
Stockwerk 3/12
Tekto Rakurs ist eine neue, spezielle Wohnanlage im Resort von Chakvi, nur 50 Meter vom Meer…
$57,915
Eine Anfrage stellen
Schließen
Bitte lassen Sie mich wissen, dass Sie diese Anzeige auf Realting.com
Immobilienagentur
RECOM
Sprachen
English, Русский