2 room apartment 47 m² Minsk, Belarus

Belarus, Minsk
$30,000
$636/m²
;
Last update: 30/01/2026

Location

  • Country
    Belarus
  • City
    Minsk
  • Address
    vulica Burdziejnaha, 17
  • Metro
    Kuntsevshchina (~ 300 m)

Property characteristics

Apartment parameters

  • Price per m²
    Price per m²
    $636/m²
  • Floor
    Floor
    9
  • Rooms
    Rooms
    2
  • Total area
    Total area
    47 m²

Building parameters

  • The year of construction
    The year of construction
    87
  • Number of floors
    Number of floors
    12

Description

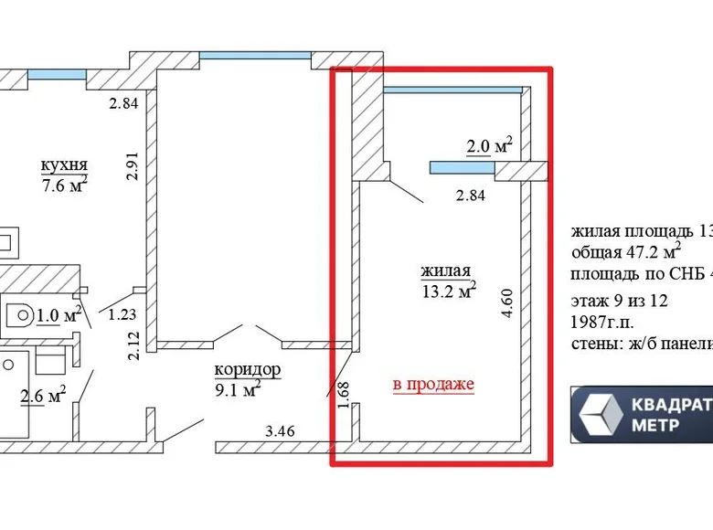
For sale 9/20 shares in a 2-room apartment near the metro Kuntsevshchyna on the high 9th floor of a 12-storey house.

The area of the entire apartment on the SNB 49.2 sq.m., Total area of 47.2 sq.m., living area of the sold room 13.2 sq.m. with loggia 2.0 m2, kitchen 7.6 sq.m.

The year the house was built, 1987. Tambour for 2 apartments, neat. The apartment is not angular, warm. There are PVC windows in the apartment.

The apartment requires investment.

The second owner is a man who lives permanently.

There are always parking spaces in the yard.

The infrastructure is well developed: in walking distance there is everything necessary for life - Euroopt, Santa, "Western Market", children's and adult polyclinics, schools, gymnasiums, nursery garden, cafe, banks, etc.

To Kuntsevo region - 5 minutes on foot, convenient exit to the Moscow Ring Road.

Full legal support of the transaction.

For more detailed information, contact the number indicated in the advertisement, I, Specialist Julia Bovshis, will answer all your questions and agree on a convenient viewing time for you.

Watch more on our Telegram channel @kvadratnyjmetr

UE "Square meter"

UNP: 190003285

License 02240/29_
from 17.02.2005, the Ministry of Justice of RB

Contract 42/24 of 26.01.2026

Contract number with the agency 42/24 from 2026-01-26

Location on the map

Belarus, Minsk
Education
Healthcare

Mortgage calculator

Interest rate, %
Loan term, years
Property cost
Down payment, %
{{ initialPaymentCurrency }} USD
Please note! You changed the property cost parameter to {{ differentPrice }}%. This affects the relevance of the calculation of monthly payments for the current property. Return
Interest rate
{{ loanPercentValue.toLocaleString() }} %
Interest rate
Loan amount
{{ mortgageAmount }} USD
Loan amount
Period
{{ loanPeriodValue | pluralize("year", "years") }}
Period
Monthly payment
{{ paymentPerMonth }} USD
Monthly payment
Under SunUnder Sun
Ask all your questions
Send your request to the agent
Thank you! Your request has been accepted
I want to view this property. Is the price of the property relevant? I want more information about the property. What are the purchase conditions for foreigners? I want to see more photos/videos. Is it possible to buy with a loan/mortgage? Will I get a residence permit if I buy a property?
Back Leave a request
Similar properties
3 room apartment in Smarhon, Belarus
3 room apartment
Smarhon, Belarus
Rooms 3
Area 68 m²
Floor 1/2
3-bedroom apartment with good location ❤️ Spacious warm three-bedroom apartment for sale in …
$30,900
Leave a request
Close
Please tell the seller that you found this ad on Realting.com
Agency
Центр международной недвижимости Моя 7Я
Languages
English, Русский
1 room apartment in Salihorsk, Belarus
1 room apartment
Salihorsk, Belarus
Rooms 1
Area 29 m²
Floor 4/4
Sale of one-bedroom apartment in a brick house ❤️ Comfortable warm 1-apartment with good loc…
$28,500
Leave a request
Close
Please tell the seller that you found this ad on Realting.com
Agency
Центр международной недвижимости Моя 7Я
Languages
English, Русский
3 room apartment in Staryja Ciaruski, Belarus
3 room apartment
Staryja Ciaruski, Belarus
Rooms 3
Area 64 m²
Floor 2/2
Three-bedroom apartment in Old Terushki with a plot ❤️For sale 3-room apartment of 64.1 sq.m…
$31,000
Leave a request
Close
Please tell the seller that you found this ad on Realting.com
Agency
Центр международной недвижимости Моя 7Я
Languages
English, Русский
3 room apartment in Lyuban, Belarus
3 room apartment
Lyuban, Belarus
Rooms 3
Area 49 m²
Floor 2/2
3-room apartment in Luban, International str. ❤️ For sale a cozy apartment in the heart of L…
$29,900
Leave a request
Close
Please tell the seller that you found this ad on Realting.com
Agency
Центр международной недвижимости Моя 7Я
Languages
English, Русский
1 room apartment in Starobin, Belarus
1 room apartment
Starobin, Belarus
Rooms 1
Area 40 m²
Floor 4/5
1-bedroom apartment in Starobin with good repair ❤️Warm and cozy 1-room apartment on a comfo…
$28,000
Leave a request
Close
Please tell the seller that you found this ad on Realting.com
Agency
Центр международной недвижимости Моя 7Я
Languages
English, Русский
Apartment in Krasnienski sielski Saviet, Belarus
Apartment
Krasnienski sielski Saviet, Belarus
Area 80 m²
Excellent half house of 80 sq.m. with divided own plot and bath. ❤️This house is a wonderful…
$33,900
Leave a request
Close
Please tell the seller that you found this ad on Realting.com
Agency
Центр международной недвижимости Моя 7Я
Languages
English, Русский
1 room apartment in Sluck, Belarus
1 room apartment
Sluck, Belarus
Rooms 1
Area 32 m²
Floor 2/4
One-bedroom apartment in the center of Slutsk on a comfortable 2nd floor ❤️ You will find a …
$29,300
Leave a request
Close
Please tell the seller that you found this ad on Realting.com
Agency
Центр международной недвижимости Моя 7Я
Languages
English, Русский