Apartamento 1 habitación 42 m² Lagolovskoe selskoe poselenie, Rusia

Rusia, Lagolovskoe selskoe poselenie
$78,912
$1,876/m²
;
In CRM: 102694
ID del anuncio en el sitio web o en el CRM de la empresa
Última actualización: 26/2/26

Localización

  • País
    Rusia
  • Región / estado
    Northwestern Federal District
  • Barrio
    Kaarosta District
  • Ciudad
    Lagolovskoe selskoe poselenie
  • Dirección
    Dudergofskaa ulica

Características del objeto

Parámetros de los apartamentos

  • Precio por m²
    Precio por m²
    $1,876/m²
  • Piso
    Piso
    6
  • Rooms:
    Rooms:
    1
  • Bathrooms:
    Bathrooms:
    1
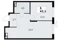
  • Área total
    Área total
    42 m²

Parámetros del edificio

  • Año de construcción
    Año de construcción
    2029
  • Número de plantas
    Número de plantas
    13

Descripción

Venta apartamento de 1 dormitorio, con una superficie de 42.06 metros cuadrados. m en el sexto piso de una casa de clase confort en el complejo residencial "A101 Lagolovo". Apartamento con diseño funcional: grandes ventanales, altura de techo de 2.84 m. El acabado es diseñador. Hay opciones para apartamentos con acabado de caja blanca prelimpio y sin acabado en otros edificios del LCD.

Localización en el mapa

Rusia, Lagolovskoe selskoe poselenie
Educación
Cuidado de la salud

Calculadora hipotecaria

Tipo de interés, %
Plazo del préstamo, años
Coste de la propiedad
Pago inicial, %
{{ initialPaymentCurrency }} USD
Atención Ha cambiado el parámetro del coste de la vivienda a {{ differentPrice }}%. Esto afecta a la pertinencia de calcular los pagos mensuales de la propiedad actual. Devuélvelo
Tipo de interés
{{ loanPercentValue.toLocaleString() }} %
Tipo de interés
Importe del préstamo
{{ mortgageAmount }} USD
Importe del préstamo
Fecha límite
{{ loanPeriodValue | pluralize("año", "años") }}
Fecha límite
Pago mensual
{{ paymentPerMonth }} USD
Pago mensual
HayatHayat
Pregunte lo que quiera
Envíe su solicitud al agente
¡Gracias! Su solicitud ha sido aceptada
Quiero ver esta instalación. ¿Está actualizado el valor del inmueble? Deseo más información sobre el inmueble. ¿Cuales las condiciones de compra para extranjeros? Me gustaría ver más fotos/vídeos. ¿Es posible comprar a crédito/hipoteca? ¿Obtendré un permiso de residencia si compro una vivienda?
Volver a Dejar una solicitud
Propiedades similares