Zu verkaufen Gewerbeeinheit mit großer Filialfront – st. Puławska, Stary Mokotów.
Zum Verkauf eine funktionale Gewerbefläche von 20,9 m2, im Erdgeschoss eines historischen 1935 Miethauses in ul. Puławska im Herzen von Stary Mokotów.
Dank seines großen Schaufensters und des direkten Straßeneingangs genießt die Unterkunft eine hervorragende Sichtbarkeit und einen hohen Fußgängerverkehr – ideal für einen Ladengeschäft, Büro oder Service Point.
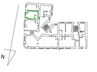
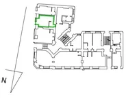
LAYOUT:
• Verkaufsfläche – 17.8 m2
• WC – 3.1 m2
Die Räumlichkeiten sind in sehr gutem technischen Zustand – sofort gebrauchsfertig.
Ausgestattet mit funktionellen elektrischen, Wasser/Abwasser und Heizsystemen.
BUILDING:
Viergeschossiges Miethaus mit Fassaden auf St. Puławska und st. Racławicka. Gemütliche Umgebung mit historischem Charme.
LOCATION UND SURROUNDATIONEN:
Ausgezeichnete Lage in der Nähe von Park Morskie Oko, Wohngebäude, Geschäfte, Cafés und Dienstleistungen.
Łazienki Królewskie sind zu Fuß erreichbar – das Gebiet zieht sowohl Bewohner als auch Touristen an.
GREAT TRANSPORT ACCESS:
• Buslinien: 130, 141, 172, 222
• Straßenbahnen: 4, 10, 14, 18, 35
• U-Bahn: Bahnhof Racławicka – ca. 10 Minuten zu Fuß
• Plac Unii Lubelskiej – ein paar Minuten zu Fuß oder öffentlichen Verkehrsmitteln
ZUSAMMENFASSUNG
Eine zusätzliche Einheit von 15,9 m2 ist im gleichen Gebäude verfügbar – perfekt wie ein Lager-, Büro- oder Personalbereich.
EXTRA INFORMATIONEN:
• Gasheizung
• Parkplätze auf der Straße
