Verkauf einer Zweizimmerwohnung in einem Neubau, im Eliteviertel Dubovitsa, in Budva
Fläche: 55,79 m²
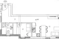
Aufbau: Eingangshalle, Wohnzimmer mit Esszimmer und Küche, 2 Schlafzimmer, Arbeitszimmer, 1 Badezimmer, 3. Stock, Terrasse mit unglaublich coolem Seitenblick auf das Meer
Preis: 2750 €/m²
WHATSAPP, TELEGRAM, VIBER
+38268200906 Sabina Mailova
@realestatemontenegr
SM INVESTMENT
