Office 15 m² in Zdanovicy, Belarus

Zdanovicy, Belarus, Zdanovicki sielski Saviet
$15,000
$1,027/m²
;
Last update: 21/08/2025

Location

  • Country
    Belarus
  • State
    Minsk Region
  • Region
    Minsk District
  • City
    Zdanovicki sielski Saviet
  • Town
    Zdanovicy
  • Address
    Paliavaja vulica, 1 a

Property characteristics

Property parameters

  • Price per m²
    Price per m²
    $1,027/m²
  • Floor
    Floor
    1
  • Total area
    Total area
    15 m²

Building parameters

  • Number of floors
    Number of floors
    9

Description

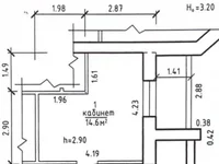
We offer you an office with a tenant, (14.6 m2) on the ground floor with natural light. On the floor there is a bathroom, round-the-clock access, closed territory.

Contract number with the agency 72/1 of 2025-06-24

Location on the map

Zdanovicy, Belarus, Zdanovicki sielski Saviet
Education
Healthcare
Grocery stores
Food & Drink
Finance
Leisure
Insight Estate
Ask all your questions
Send your request to the agent
Thank you! Your request has been accepted
I want to view this property. Is the price of the property relevant? I want more information about the property. What are the purchase conditions for foreigners? I want to see more photos/videos. Is it possible to buy with a loan/mortgage? Will I get a residence permit if I buy a property?
Back Leave a request
Similar properties
Shop 203 m² in Kryvicy, Belarus
Shop 203 m²
Kryvicy, Belarus
Rooms 2
Area 203 m²
Floor 1/1
Shopping room 203 m2 in the center of Ag. Krivichi. ❤️ It is offered for sale a capital trad…
$16,000
Leave a request
Close
Please tell the seller that you found this ad on Realting.com
Agency
Центр международной недвижимости Моя 7Я
Languages
English, Русский
Shop 160 m² in Akciabrski sielski Saviet, Belarus
Shop 160 m²
Akciabrski sielski Saviet, Belarus
Area 160 m²
Floor 1/1
Shopping space 160 sq.m. ❤️ The 160 sqm retail space in the village of Dawn is located next …
$16,000
Leave a request
Close
Please tell the seller that you found this ad on Realting.com
Agency
Центр международной недвижимости Моя 7Я
Languages
English, Русский
Commercial property 19 m² in Minsk, Belarus
Commercial property 19 m²
Minsk, Belarus
Rooms 1
Area 19 m²
Floor 1/6
Machine place in a prestigious area ❤️ Sold car seats in one of the most prestigious residen…
$15,000
Leave a request
Close
Please tell the seller that you found this ad on Realting.com
Agency
Центр международной недвижимости Моя 7Я
Languages
English, Русский