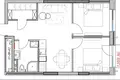
Mieszkanie 1 pokój 43 m² Odessa, Ukraina

Ukraina, Odessa
$78,000
$1,814/m²
;
In CRM: 33945
Identyfikator reklamy na stronie internetowej lub w firmowym CRM
Data aktualizacji: 9.01.2026

Lokalizacja

  • Kraj
    Ukraina
  • Region / Państwo
    Obwód odeski
  • Okolica
    Odesa Raion
  • Miasto
    Odessa
  • Adres
    ulica Daczna

Charakterystyka obiektu

Parametry mieszkania

  • Cena za m²
    Cena za m²
    $1,814/m²
  • Piętro
    Piętro
    2
  • Rooms:
    Rooms:
    1
  • Powierzchnia całkowita
    Powierzchnia całkowita
    43 m²

Parametry budynku

  • Liczba kondygnacji
    Liczba kondygnacji
    7

Lokalizacja na mapie

Ukraina, Odessa
Edukacja
Opieka zdrowotna
Jedzenie i picie
Rekreacja

Kalkulator hipoteczny

Stopa procentowa, %
Okres kredytowania, lata
Koszt nieruchomości
Płatność początkowa, %
{{ initialPaymentCurrency }} USD
Uwaga!!! Zmienili Państwo parametr koszt mieszkania na {{ differentPrice }}%. Wpływa to na zasadność wyliczenia miesięcznych płatności za obecną nieruchomość. Odłóż to.
Stopa procentowa
{{ loanPercentValue.toLocaleString() }} %
Stopa procentowa
Kwota pożyczki
{{ mortgageAmount }} USD
Kwota pożyczki
Terminy
{{ loanPeriodValue | pluralize("rok", "lata") }}
Terminy
Płatność miesięczna
{{ paymentPerMonth }} USD
Płatność miesięczna
ParkviewParkview
Powrót do Zostawić wniosek
Podobne obiekty