Mieszkanie 2 pokoi 90 m² Sosua, Dominikana

Sosua, Dominikana
$234,000
$2,600/m²
;
ID: 1558399
ID nieruchomości na Realting
In CRM: 648444
Identyfikator reklamy na stronie internetowej lub w firmowym CRM
Data aktualizacji: 28.07.2025

Lokalizacja

  • Kraj
    Dominikana
  • Region / Państwo
    Puerto Plata
  • Okolica
    Sosua
  • Adres
    Calle Francia

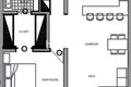
Charakterystyka obiektu

Parametry mieszkania

  • Cena za m²
    Cena za m²
    $2,600/m²
  • Piętro
    Piętro
    1
  • Rooms:
    Rooms:
    2
  • Bedrooms:
    Bedrooms:
    1
  • Bathrooms:
    Bathrooms:
    1
  • Powierzchnia całkowita
    Powierzchnia całkowita
    90 m²

Parametry budynku

  • Liczba kondygnacji
    Liczba kondygnacji
    4

Opis

W samym sercu obszaru turystycznego Sosua, gdzie wszystkie restauracje, bary i plaże są, hotel nowy 1 sypialnia w pełni umeblowane, z kuchnią, salon / jadalnia, łazienka, balkon lub taras w zależności od podłogi, basen, altanka, możliwość dostępu do klubu plażowego przez członkostwo za dodatkową opłatą, ale plaża publiczna jest na 5 minut spacerem

Lokalizacja na mapie

Sosua, Dominikana
Edukacja
Opieka zdrowotna
Sklepy spożywcze
Jedzenie i picie
Finanse
Rekreacja

Kalkulator hipoteczny

Stopa procentowa, %
Okres kredytowania, lata
Koszt nieruchomości
Płatność początkowa, %
{{ initialPaymentCurrency }} USD
Uwaga!!! Zmienili Państwo parametr koszt mieszkania na {{ differentPrice }}%. Wpływa to na zasadność wyliczenia miesięcznych płatności za obecną nieruchomość. Odłóż to.
Stopa procentowa
{{ loanPercentValue.toLocaleString() }} %
Stopa procentowa
Kwota pożyczki
{{ mortgageAmount }} USD
Kwota pożyczki
Terminy
{{ loanPeriodValue | pluralize("rok", "lata") }}
Terminy
Płatność miesięczna
{{ paymentPerMonth }} USD
Płatność miesięczna
Zadaj wszelkie pytania, które możesz mieć
Wysłać wniosek do agenta
Dziękujemy! Zgłoszenie zostało przyjęte
Chcę zobaczyć ten obiekt. Czy wartość nieruchomości jest aktualna? Chciałbym uzyskać więcej informacji na temat nieruchomości. Jakie są warunki zakupu dla cudzoziemców? Chciałbym zobaczyć więcej zdjęć/filmów. Czy można kupić na kredyt/hipotekę? Czy otrzymam pozwolenie na pobyt, jeśli kupię nieruchomość?
Powrót do Zostawić wniosek Pokaż kontakty
Podobne obiekty
Mieszkanie 2 pokoi w Higuey, Dominikana
Mieszkanie 2 pokoi
Higuey, Dominikana
Pokoje 2
Sypialnie 1
Liczba łazienek 1
Powierzchnia 99 m²
Piętro 5/2
Najbardziej znanym kondominium w Punta Cana jest Cana Rock, położony w Hard Rock Community, …
$252,599
Zostaw prośbę
Zamknij
Proszę, powiedz mi, że znalazłeś to ogłoszenie na Realting.com
Agencja
International real estate agency Habita
Języki komunikacji
English, Русский, Deutsch, Français, Svenska, Suomi, Italiano
Mieszkanie 2 pokoi w Guayacanes, Dominikana
Mieszkanie 2 pokoi
Guayacanes, Dominikana
Pokoje 2
Sypialnie 1
Liczba łazienek 1
Powierzchnia 57 m²
Piętro 14/16
Luksusowy front plażowy, jeden pokój, każdy apartament posiada salon / jadalnia, sypialnia z…
$265,000
Zostaw prośbę
Zamknij
Proszę, powiedz mi, że znalazłeś to ogłoszenie na Realting.com
Agencja
International real estate agency Habita
Języki komunikacji
English, Русский, Deutsch, Français, Svenska, Suomi, Italiano
Mieszkanie 2 pokoi w Higuey, Dominikana
Mieszkanie 2 pokoi
Higuey, Dominikana
Pokoje 2
Sypialnie 1
Liczba łazienek 1
Powierzchnia 85 m²
Piętro 4/6
1 sypialnia, 1 łazienka, taras, niesamowity widok. Położony w jednym z najbardziej ekskluzyw…
$234,000
Zostaw prośbę
Zamknij
Proszę, powiedz mi, że znalazłeś to ogłoszenie na Realting.com
Agencja
International real estate agency Habita
Języki komunikacji
English, Русский, Deutsch, Français, Svenska, Suomi, Italiano