Wohnung 420 m² Calp, Spanien

Calp, Spanien
$523,744
$1,247/m²
;
ID: 3383624
Immobilien-ID auf Realting
Letzte Aktualisierung: 21.08.25

Standort

  • Grundstück
    Spanien
  • Region / Bundesland
    Valencianische Gemeinschaft
  • Stadt
    Calp

Objekteigenschaften

Angaben zu den Wohnungen

  • Preis pro m²
    Preis pro m²
    $1,247/m²
  • Gesamt fläche
    Gesamt fläche
    420 m²

Beschreibung

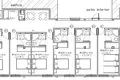
In Calpe stehen Geschäftsräume zum Kauf zur Verfügung, die für Hostelzwecke angepasst werden können. Es wurde ein Projekt zum Bau einer Herberge entwickelt und eine Baugenehmigung erteilt. Das Projekt zum Bau der Herberge umfasst 17 separate, voll ausgestattete Zimmer mit Bad, ein Verwaltungsbüro und mehrere Nebenräume. Die Geschäftsräume befinden sich in den unteren Geschossen zweier angrenzender Wohngebäude. Jedes Gebäude verfügt über ausgewiesene Parkplätze. Die Lage der Geschäftsräume ist sehr gut für ein Hostel geeignet, da sie sich im logistischen Zentrum der Stadt befinden. Das Meer ist nur 700 Meter entfernt, der Busbahnhof ist 450 Meter entfernt und das Stadtbad, der Sportkomplex, die Tennisplätze, die Schule, Cafés und Geschäfte sind weniger als 50 Meter entfernt. Die Geschäftsräume sind für den Beginn der Bauarbeiten vollständig vorbereitet und verfügen über alle notwendigen Versorgungseinrichtungen – Strom, Wasser und Abwasser. Kontaktieren Sie uns, um diese Immobilie persönlich zu besichtigen.

Standort auf der Karte

Calp, Spanien
Ausbildung
Gesundheitspflege
Freizeit

Hypotheken-Rechner

Zinssatz, %
Laufzeit des Darlehens, jahre
Kosten der Immobilie
Erste Zahlung, %
{{ initialPaymentCurrency }} USD
Bitte beachten Sie! Sie haben den Parameter Wohnkosten geändert in {{ differentPrice }}%. Dies wirkt sich auf die Relevanz der Berechnung der monatlichen Zahlungen für die aktuelle Immobilie aus. Zurücklegen
Zinssatz
{{ loanPercentValue.toLocaleString() }} %
Zinssatz
Darlehensbetrag
{{ mortgageAmount }} USD
Darlehensbetrag
Termin
{{ loanPeriodValue | pluralize("jahr", "jahre") }}
Termin
Monatliche Zahlung
{{ paymentPerMonth }} USD
Monatliche Zahlung
Stellen Sie alle Fragen, die Sie haben
Die Anfrage an den Makler senden
Danke! Ihre Anfrage ist eingegangen
Ich möchte diese Einrichtung sehen. Ist der Immobilienwert aktuell? Ich möchte mehr Informationen über das Objekt. Welche Kaufbedingungen gelten für Ausländer? Möchte mehr Fotos/Videos sehen. Ist ein Kauf auf Kredit/Hypothek möglich? Ist es möglich, eine Aufenthaltsgenehmigung zu erhalten?
Zurück zu Eine Anfrage hinterlassen Kontakte zeigen
Ähnliche Objekte
Wohnung 2 Schlafzimmer in Arona, Spanien
TOP TOP
Wohnung 2 Schlafzimmer
Arona, Spanien
Schlafräume 2
Anzahl der Badezimmer 1
Schöne renovierte 2-Zimmer-Wohnung in einem Wohnkomplex mit einem Pool. Der Komplex verfügt …
$521,043
Eine Anfrage stellen
Schließen
Bitte lassen Sie mich wissen, dass Sie diese Anzeige auf Realting.com
Immobilienagentur
Lupain Properties
Sprachen
English
Studio 3 Schlafzimmer in Bel Air, Spanien
Studio 3 Schlafzimmer
Bel Air, Spanien
Schlafräume 3
Anzahl der Badezimmer 2
Fläche 130 m²
Last Remaining Home – Exclusive Development in Cancelada, Estepona Don’t miss the final oppo…
$508,822
Eine Anfrage stellen
Schließen
Bitte lassen Sie mich wissen, dass Sie diese Anzeige auf Realting.com
Immobilienagentur
International Property Alerts
Sprachen
English
Wohnung 2 Schlafzimmer in Marbella, Spanien
Wohnung 2 Schlafzimmer
Marbella, Spanien
Schlafräume 2
Anzahl der Badezimmer 2
Fläche 109 m²
Availability (as of 02/10/2025) 2-Bed Apartments & Penthouses – from €497,500 to €680,000…
$583,269
Eine Anfrage stellen
Schließen
Bitte lassen Sie mich wissen, dass Sie diese Anzeige auf Realting.com
Immobilienagentur
International Property Alerts
Sprachen
English
Studio 3 Schlafzimmer in Bel Air, Spanien
Studio 3 Schlafzimmer
Bel Air, Spanien
Schlafräume 3
Anzahl der Badezimmer 2
Fläche 130 m²
Last Remaining Home – Exclusive Development in Cancelada, Estepona Don’t miss the final oppo…
$508,822
Eine Anfrage stellen
Schließen
Bitte lassen Sie mich wissen, dass Sie diese Anzeige auf Realting.com
Immobilienagentur
International Property Alerts
Sprachen
English