Ermöglichen Sie die Anzeige von Website-Inhalten und den Zugriff auf Funktionen. Diese Art von Cookies wird nur für den ordnungsgemäßen Betrieb der Website verwendet und nicht an Dritte weitergegeben. Eine Deaktivierung ist nicht möglich, ohne die Funktion der Website zu beeinträchtigen.
Analytische Cookies
Helfen Sie uns, die Leistung der Website zu verbessern, Ihre Erfahrung bei der Nutzung der Website zu verbessern und die Nutzung komfortabler zu gestalten. Die Informationen, die diese Art von Cookies sammelt, werden aggregiert und sind daher anonym. Wird verwendet, um statistische Indikatoren zur Website-Nutzung bereitzustellen, ohne Benutzer zu identifizieren.
Werbe-Cookies
Ermöglichen Sie uns, unsere Marketingkosten zu senken und die Benutzererfahrung zu verbessern.
Realting.com verwendet Cookies, um Ihre Interaktion mit der Website zu verbessern. Sie können konfigurieren, welche Cookies auf Ihrem Gerät gespeichert werden.
Erfahren Sie mehr
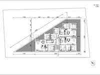
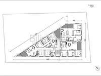
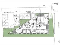
www.biliskov.com ID: 14681Standort: Novi Zagreb, Sveta KlaraArt: Baugrundstück für Wohnzwecke, rechteckige Form, Maße ca. 25x45 Meter, Fläche 1228 m² mit gültiger Baugenehmigung für den Bau eines Wohngebäudes mit 11 Wohnungen, insgesamt 1005 m².Laut der Projektunterlagen besteht das Gebäude aus drei Etagen: Erdgeschoss, Obergeschoss und einem zurückgesetzten Geschoss.
Erdgeschoss: 365 m², geplant für vier Wohnungen.
Obergeschoss: 366 m², ebenfalls geplant für vier Wohnungen.
Zurückgesetztes Geschoss: 274 m², vorgesehen für drei Wohnungen.
Das Projekt umfasst 15 Parkplätze auf dem Grundstück.Das Grundstück befindet sich in Sveta Klara, in ausgezeichneter Lage, in unmittelbarer Nähe zu öffentlichen Verkehrsmitteln (50 m), Schule (150 m), Apotheke (500 m), Kindergarten (700 m) und anderen Einrichtungen, die für ein qualitativ hochwertiges Leben notwendig sind.Alle Versorgungsanschlüsse sind auf dem Grundstück verfügbar.Dokumentation: In Ordnung.Preis: 320.000 €Maklergebühr für Käufer: 2% + MwSt. vom erzielten Kaufpreis.
Wenn Sie auf den Button "Bestätigen" klicken, werden Ihnen 50 Realtings (5 EUR) für die Superlink-Gebühr von Ihrem Guthaben in myAlpari abgebucht
Bezahlen 5 EUR
Abbrechen
Wenn Sie auf die Schaltfläche "Bezahlen" klicken, werden Sie automatisch auf die Aufladeseite weitergeleitet, da Sie nicht genügend Realtings auf Ihrem Guthaben haben
Superlike!
Sie haben diesen Artikel bereits mit einem Superlink versehen. Um den Superlink zu löschen, klicken Sie auf "Abbrechen".
Beachten Sie, dass bei der Stornierung des Superlinks keine Rückerstattung des Guthabens erfolgt.
entfernen
Belassen Sie es dabei
Wenn Sie auf "Abbestellen" klicken, stornieren Sie den Superlink, ohne dass Ihnen die Guthaben zurückerstattet werden.
Teilen Sie diese Empfehlung!
Erhalten Sie einen Prozentsatz erfolgreicher Transaktionen, indem Sie die Immobilie über die untenstehenden Links weiterempfehlen!
Sie können die Empfehlung in Ihren sozialen Netzwerken teilen
Klicken Sie hier, um die URL zu kopieren
Teilen Sie diese Empfehlung!
Warum empfehlen?
Sie können die Empfehlung in Ihren sozialen Netzwerken teilen
Klicken Sie hier, um die URL zu kopieren
Dieser Artikel ist in Ihren Realting-Empfehlungen gespeichert. Um ihn aus Ihrer Empfehlung zu entfernen, klicken Sie auf den unten stehenden Link.
Aus Empfehlungen entfernen
Autorisierung erforderlich
Sie müssen ein registrierter Benutzer sein, um vollständig mit Ihren Favoriten arbeiten zu können und sehen und teilen zu können, was Sie zu Ihren Favoriten hinzugefügt haben.