Apartment 189 m² Sofia, Bulgaria

Bulgaria, Sofia
$411,109
$2,175/m²
;
ID: 967657
Property ID on Realting
In CRM: 8278
ID of the ad on the website or in the company’s CRM
Last update: 02/10/2025

Location

  • Country
    Bulgaria
  • State
    Sofia-City
  • Region
    Sofia City
  • City
    Sofia
  • Metro
    Vitosha (~ 900 m)

Property characteristics

Apartment parameters

  • Price per m²
    Price per m²
    $2,175/m²
  • Floor
    Floor
    6
  • Total area
    Total area
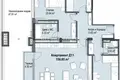
    189 m²

Building parameters

  • Number of floors
    Number of floors
    12

Interior details

Security features:

  • Video surveillance
  • Security

Description

WITHOUT COMMISSION FROM THE BUYER!!! DREAM WISHEN REAL ESTATE For sale a multi-room apartment, penthouse, in. Krastova vada. The apartment is located in a new building, part of a luxury gated complex. It is located near a very communicative place - fast movement to any point through Blvd.'Black Peak', near 'Paradise' Mall, South Park, kindergartens, schools and sports complexes. The complex will have lots of greenery and alleys, playground, recreation area, video surveillance and 24-hour security at the entrance of the complex. The apartment consists of - first level - entrance hall, living room with kitchenette and dining area, bedroom, two bathrooms with toilets, warehouse, closet, terraces; second level - entrance hall, three bedrooms, two bathrooms with toilets, balconies, warehouse. Opportunity to buy garages and parking spaces. It is transmitted to putty and screed. THE DEDICATED PRICE IS WITHOUT VAT. In the complex we offer other apartments. Quality construction by a proven builder. Offer at the agency 8278. We work all our ads with colleagues. You can find more of our offers at www. dreamvision. bg Contact telephones: 02 421 96 35/0886 13 22 91 - Dimitar Georgiev

Location on the map

Bulgaria, Sofia
Education
Healthcare
Food & Drink
Transportation

Mortgage calculator

Interest rate, %
Loan term, years
Property cost
Down payment, %
{{ initialPaymentCurrency }} USD
Please note! You changed the property cost parameter to {{ differentPrice }}%. This affects the relevance of the calculation of monthly payments for the current property. Return
Interest rate
{{ loanPercentValue.toLocaleString() }} %
Interest rate
Loan amount
{{ mortgageAmount }} USD
Loan amount
Period
{{ loanPeriodValue | pluralize("year", "years") }}
Period
Monthly payment
{{ paymentPerMonth }} USD
Monthly payment
Ask all your questions
Send your request to the agent
Thank you! Your request has been accepted
I want to view this property. Is the price of the property relevant? I want more information about the property. What are the purchase conditions for foreigners? I want to see more photos/videos. Is it possible to buy with a loan/mortgage? Will I get a residence permit if I buy a property?
Back Leave a request
Similar properties
2 bedroom apartment in Ravda, Bulgaria
2 bedroom apartment
Ravda, Bulgaria
Bedrooms 2
Bathrooms count 2
Area 173 m²
Description of object: In the exclusive Villa Metara complex, located directly on the beach …
$460,808
Leave a request
Close
Please tell the seller that you found this ad on Realting.com
Agency
International Property Alerts
Languages
English
Apartment 12 bedrooms in Sveti Vlas, Bulgaria
Apartment 12 bedrooms
Sveti Vlas, Bulgaria
Bedrooms 12
Area 636 m²
Description of object: We present to you a spacious multi-family house with 636 m² of living…
$457,465
Leave a request
Close
Please tell the seller that you found this ad on Realting.com
Agency
International Property Alerts
Languages
English
Condo 2 bedrooms in Ravda, Bulgaria
Condo 2 bedrooms
Ravda, Bulgaria
Bedrooms 2
Bathrooms count 2
Area 228 m²
Description of object: We offer for sale a stunning three-story apartment in the amazing "Es…
$387,086
Leave a request
Close
Please tell the seller that you found this ad on Realting.com
Agency
International Property Alerts
Languages
English
2 bedroom apartment in Sveti Vlas, Bulgaria
2 bedroom apartment
Sveti Vlas, Bulgaria
Bedrooms 2
Bathrooms count 1
Area 255 m²
$394,007
Leave a request
Close
Please tell the seller that you found this ad on Realting.com
Agency
International Property Alerts
Languages
English
Condo 2 bedrooms in Ravda, Bulgaria
Condo 2 bedrooms
Ravda, Bulgaria
Bedrooms 2
Bathrooms count 2
Area 228 m²
Description of object: We offer for sale a stunning three-story apartment in the amazing "Es…
$387,086
Leave a request
Close
Please tell the seller that you found this ad on Realting.com
Agency
International Property Alerts
Languages
English
2 bedroom apartment in Sveti Vlas, Bulgaria
2 bedroom apartment
Sveti Vlas, Bulgaria
Bedrooms 2
Bathrooms count 2
Area 204 m²
Description of object: We offer you a penthouse apartment with a sea view at Marina Sunrise …
$381,807
Leave a request
Close
Please tell the seller that you found this ad on Realting.com
Agency
International Property Alerts
Languages
English
3 bedroom apartment in Sveti Vlas, Bulgaria
3 bedroom apartment
Sveti Vlas, Bulgaria
Bedrooms 3
Bathrooms count 2
Area 248 m²
Description of object: The gated San Vayve complex with its own infrastructure is located in…
$434,768
Leave a request
Close
Please tell the seller that you found this ad on Realting.com
Agency
International Property Alerts
Languages
English
Apartment 12 bedrooms in Sveti Vlas, Bulgaria
Apartment 12 bedrooms
Sveti Vlas, Bulgaria
Bedrooms 12
Area 636 m²
Description of object: We present to you a spacious multi-family house with 636 m² of living…
$457,465
Leave a request
Close
Please tell the seller that you found this ad on Realting.com
Agency
International Property Alerts
Languages
English