Szeregowiec 4 pokoi 78 m² Nikiti, Grecja

Nikiti, Grecja, Municipality of Sithonia, Sithonia Municipal Unit
$275,576
$3,533/m²
;
In CRM: 65035
Identyfikator reklamy na stronie internetowej lub w firmowym CRM
Data aktualizacji: 19.12.2025

Lokalizacja

  • Kraj
    Grecja
  • Region / Państwo
    Macedonia-Tracja
  • Okolica
    Region Macedonia Środkowa
  • Miasto
    Municipality of Sithonia
  • Miasteczko
    Nikiti

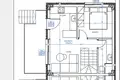
Charakterystyka obiektu

Parametry budynku

  • Rok realizacji
    Rok realizacji
    2025
  • Liczba kondygnacji
    Liczba kondygnacji
    3
  • Piętro
    Piętro
    -1
  • Rooms:
    Rooms:
    4
  • Bedrooms:
    Bedrooms:
    3
  • Bathrooms:
    Bathrooms:
    2
  • Powierzchnia całkowita
    Powierzchnia całkowita
    78 m²

Szczegóły zewnętrzne

Widok:

  • Widok miasta

Opis

Dwupoziomowy Maisonette na sprzedaż 78 m2 (B1) - Nikiti, Chankidiki Doskonała nowo wybudowany maisonette znajduje się w nadmorskiej osady Nikiti, zaledwie 170 m (2 minuty pieszo) od plaży. Obok restauracji, kawiarni i sklepów, w doskonałej lokalizacji nadaje się zarówno do użytku prywatnego i inwestycji turystycznych. Obiekt jest urządzony na dwóch poziomach. Parter składa się z salonu z kuchnią, jedną sypialnią i łazienką. Poziom półpiwnicy obejmuje dwa dodatkowe pokoje, magazyn i drugą łazienkę, oferując elastyczność i dodatkową przestrzeń. Cechy: Powłoka termoizolacyjna Aluminiowe ramy z podwójnym szkłem Ekrany insektów Niezależne wejście Urządzenia klimatyzacyjne Słoneczny podgrzewacz wody Otwarty parking Dostawa: 2026 Idealny wybór na dom letniskowy lub wysokiej wydajności inwestycji w Nikiti.

Lokalizacja na mapie

Nikiti, Grecja, Municipality of Sithonia, Sithonia Municipal Unit
Edukacja
Opieka zdrowotna
Sklepy spożywcze
Jedzenie i picie
Transport
Finanse
Rekreacja

Kalkulator hipoteczny

Stopa procentowa, %
Okres kredytowania, lata
Koszt nieruchomości
Płatność początkowa, %
{{ initialPaymentCurrency }} USD
Uwaga!!! Zmienili Państwo parametr koszt mieszkania na {{ differentPrice }}%. Wpływa to na zasadność wyliczenia miesięcznych płatności za obecną nieruchomość. Odłóż to.
Stopa procentowa
{{ loanPercentValue.toLocaleString() }} %
Stopa procentowa
Kwota pożyczki
{{ mortgageAmount }} USD
Kwota pożyczki
Terminy
{{ loanPeriodValue | pluralize("rok", "lata") }}
Terminy
Płatność miesięczna
{{ paymentPerMonth }} USD
Płatność miesięczna
Insight Estate
Zadaj wszelkie pytania, które możesz mieć
Wysłać wniosek do agenta
Dziękujemy! Zgłoszenie zostało przyjęte
Chcę zobaczyć ten obiekt. Czy wartość nieruchomości jest aktualna? Chciałbym uzyskać więcej informacji na temat nieruchomości. Jakie są warunki zakupu dla cudzoziemców? Chciałbym zobaczyć więcej zdjęć/filmów. Czy można kupić na kredyt/hipotekę? Czy otrzymam pozwolenie na pobyt, jeśli kupię nieruchomość?
Powrót do Zostawić wniosek Pokaż kontakty
Podobne obiekty
Dom wolnostojący 7 pokojów w Kallitea, Grecja
UP UP
Dom wolnostojący 7 pokojów
Kallitea, Grecja
Pokoje 7
Sypialnie 6
Liczba łazienek 2
Powierzchnia 150 m²
Liczba kondygnacji 1
Na sprzedaż 2- piętrowy dom 150 m kw. w Peloponezu. Parter składa się z jednej sypialni, jed…
$256,300
Zostaw prośbę
Zamknij
Proszę, powiedz mi, że znalazłeś to ogłoszenie na Realting.com
Agencja
Grekodom Development
Języki komunikacji
English, Русский, Deutsch, Ελληνικά, Български, Српски
Rezydencja 6 pokojów w Skala Potamias, Grecja
UP UP
Rezydencja 6 pokojów
Skala Potamias, Grecja
Pokoje 6
Sypialnie 3
Liczba łazienek 1
Powierzchnia 220 m²
Liczba kondygnacji 1
$240,759
Zostaw prośbę
Zamknij
Proszę, powiedz mi, że znalazłeś to ogłoszenie na Realting.com
Prywatny sprzedawca
Języki komunikacji
English
Szeregowiec 4 pokoi w Nikiti, Grecja
Szeregowiec 4 pokoi
Nikiti, Grecja
Pokoje 4
Sypialnie 3
Liczba łazienek 2
Powierzchnia 72 m²
Piętro 1/3
Dwupoziomowy Maisonette na sprzedaż 72 m2 (A7) - Nikiti, Chankidiki Doskonała nowo wybudowa…
$304,893
Zostaw prośbę
Zamknij
Proszę, powiedz mi, że znalazłeś to ogłoszenie na Realting.com
Agencja
Grekodom Development
Języki komunikacji
English, Русский, Deutsch, Ελληνικά, Български, Српски
Szeregowiec 4 pokoi w Nikiti, Grecja
Szeregowiec 4 pokoi
Nikiti, Grecja
Pokoje 4
Sypialnie 3
Liczba łazienek 2
Powierzchnia 76 m²
Piętro 1/3
Dwupoziomowy Maisonette na sprzedaż 76 m2 (A8) - Nikiti, Chankidiki Doskonała nowo wybudowa…
$316,619
Zostaw prośbę
Zamknij
Proszę, powiedz mi, że znalazłeś to ogłoszenie na Realting.com
Agencja
Grekodom Development
Języki komunikacji
English, Русский, Deutsch, Ελληνικά, Български, Српски
Szeregowiec 4 pokoi w Nikiti, Grecja
Szeregowiec 4 pokoi
Nikiti, Grecja
Pokoje 4
Sypialnie 3
Liczba łazienek 2
Powierzchnia 70 m²
Piętro 1/3
Dwupoziomowy Maisonette na sprzedaż 70 m2 (A6) - Nikiti, Chankidiki Doskonała nowo wybudowa…
$299,029
Zostaw prośbę
Zamknij
Proszę, powiedz mi, że znalazłeś to ogłoszenie na Realting.com
Agencja
Grekodom Development
Języki komunikacji
English, Русский, Deutsch, Ελληνικά, Български, Српски
Szeregowiec 4 pokoi w Nikiti, Grecja
Szeregowiec 4 pokoi
Nikiti, Grecja
Pokoje 4
Sypialnie 3
Liczba łazienek 2
Powierzchnia 73 m²
Piętro 1/3
Dwupoziomowy Maisonette na sprzedaż 73 m2 (B3) - Nikiti, Chankidiki Doskonała nowo wybudowa…
$299,029
Zostaw prośbę
Zamknij
Proszę, powiedz mi, że znalazłeś to ogłoszenie na Realting.com
Agencja
Grekodom Development
Języki komunikacji
English, Русский, Deutsch, Ελληνικά, Български, Српски