For sale: a modern and functional apartment that combines elegance with comfort, located within a pioneering residential complex in Western Thessaloniki.
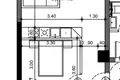
The apartment features a spacious bedroom, an open-plan living room with kitchen, a bathroom, a comfortable balcony, and a parking space. Similar apartments in size and price are available on all floors, from the 1st to the 8th.
The project occupies a privileged location at the western entrance of the city, close to major road networks connecting Thessaloniki with key regions of Greece and abroad. It aims to attract both local residents and international investors seeking a modern and luxurious lifestyle in Thessaloniki.
From the 5th floor upwards, the residential project is divided into two separate luxury buildings (a total of 8 floors). The 87 apartments in total will offer panoramic views of the city and the Thermaic Gulf, with a design that fully utilizes natural light and open space.
The project will also include spacious communal green areas that enhance the feeling of tranquility and well-being.
The building will meet the highest standards of energy efficiency and use environmentally friendly construction materials. Completion of construction is expected by the end of 2026.
