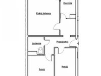
Mieszkanie składa się z przedpokoju z dużą ilością szaf i miejsca do przechowywania, osobnej jasnej kuchni oraz salonu z wyjściem na przestronną loggię (ekspozycja wschodnia). Kuchnia i salon są oddzielone ścianką działową, którą można usunąć, aby uzyskać otwartą przestrzeń. Z dwóch sypialni z oknami wychodzącymi na zachód można podziwiać piękne zachody słońca. Łazienka wyposażona jest w wannę, toaletę i miejsce na pralkę. Podłoga jest częściowo wyłożona panelami, w salonie natomiast znajduje się podłoga PCV.
Mieszkanie wymaga gruntownego remontu, co pozwoli przyszłemu właścicielowi urządzić je według własnego gustu.
Całkowita opłata administracyjna wynosi około 650 zł.
Mieszkanie posiada spółdzielcze prawo do zamieszkania z możliwością wpisania KW, co daje możliwość zakupu na kredyt. W cenę wliczona jest również komórka lokatorska na poziomie -1.
Budynek dysponuje nieograniczoną liczbą bezpłatnych miejsc parkingowych, a dla zainteresowanych dostępne są parkingi strzeżone i socjalne.
]]>