Haus 5 zimmer 121 m² Langenzersdorf, Österreich

Langenzersdorf, Österreich
$527,499
$4,362/m²
;
ID: 3631965
Immobilien-ID auf Realting
In CRM: 1976
ID der Anzeige auf der Website oder im CRM des Unternehmens
Letzte Aktualisierung: 10.10.25

Standort

  • Grundstück
    Österreich
  • Region / Bundesland
    Niederösterreich
  • Nachbarschaft
    Bezirk Korneuburg
  • Dorf
    Langenzersdorf
  • Adresse
    An den Muhlen

Objekteigenschaften

Gebäudedaten

  • Jahr der Inbetriebnahme
    Jahr der Inbetriebnahme
    2026
  • Rooms:
    Rooms:
    5
  • Bathrooms:
    Bathrooms:
    2
  • Gesamt fläche
    Gesamt fläche
    121 m²
  • Wohnfläche
    Wohnfläche
    121 m²

Beschreibung

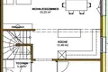
Mit hervorragendem Preis-Leistungs-Verhältnis entstehen acht hochwertige Doppelhaushälften in Langenzersdorf!   Projektbeschreibung Nur wenige Minuten von Wien entfernt, werden in nachhaltiger Massivholzbauweise moderne Doppelhaushälften errichtet. Das Projekt vereint ökologisches Wohnen, moderne Architektur und höchsten Wohnkomfort – ideal für Familien und anspruchsvolle Paare. Die durchdachte Bauweise, praktische Planung und hochwertige Ausstattung sorgen für ein gesundes Raumklima und energieeffizientes Wohnen auf höchstem Niveau. Die Übergabe der belagsfertigen Häuser ist mit Anfang 2027 geplant!   Ausstattung Massivholzbauweise (CLT) – natürlich, nachhaltig und langlebig Dreifach verglaste Kunststoff-Alu Fenster für optimale Wärmedämmung und Schallschutz, großzügige Hebe-Schiebetüre Luftwärmepumpe (230Liter Warmwasserspeicher) – umweltfreundliche, energieeffiziente Heiztechnik Vollwärmeschutzfassade mit 22 cm Dämmstärke elektrische Rollläden Fußbodenheizung in allen Wohnräumen Durchdachte Grundrisse mit lichtdurchfluteten Wohnbereichen und großzügigen Freiflächen Raumhöhe 270 cm im Erdgeschoß Terrasse und Garten (ca. 121,40 - ca. 213 m²) Eine schlüsselfertige Ausführung ist gegen Aufpreis möglich   Lage Langenzersdorf liegt direkt an der nördlichen Stadtgrenze zu Wien und bietet die perfekte Kombination aus städtischer Nähe und ländlicher Idylle. Die Verkehrsanbindung ist hervorragend: die S-Bahnstation "Bisamberg" ist in wenigen Minuten fußläufig erreichbar, die Buslinie 850 (Bhf Floridsdorf - Bhf Korneuburg) unweit entfernt und Autobahnanbindung (A22, B3) in unmittelbarer Nähe.   Infrastruktur Schulen, Kindergärten und medizinische Versorgung im Ort Nahversorger, Cafés und Restaurants hervorragend erreichbar Reichhaltiges Freizeitangebot mit Donauinsel, Seeschlacht, Bisamberg, Rad- und Wanderwegen in unmittelbarer Nähe Langenzersdorf überzeugt durch seine hohe Lebensqualität – ein Ort, an dem sich urbanes Leben und Natur harmonisch verbinden.   Baurecht Vertragslaufzeit bis 2105, 60 jähriger Kündigungsverzicht seitens des Stifts Klosterneuburg  Monatlicher Baurechtszins von nur EUR 1,56 pro/m² Wohn-Nutzfläche, 2x pro Jahr an das Chorherrenstift Klosterneuburg zu entrichten.   Abwicklung Treuhänderin ist Mag. Marlene Krüger, die Vertragsabwicklung kostet 1,5% zzgl. 20% MwSt. und beinhaltet Kaufvertrag, Geldwäscheprüfung und Treuhandschaft. Pfandrechtliche Sicherstellungen für die finanzierende Bank werden gesondert verrechnet, sofern diese notwendig sind.   Sonstiges Die Anschlusskosten (Wasser, Kanal, Strom) i.H.v. € 7.980,- sind separat zu bezahlen. "Belagsfertig" bedeutet, dass die Wand-, Decken- und Bodenbeläge sowie Armaturen noch auf die vom Bauträger vorbereiteten Untergründe aufgetragen werden müssen. Die belagsfertige Variante läßt den Käufern den größtmöglichen Spielraum bei der individuellen Wahl der Ausgestaltung der Belagsflächen bei gleichzeitiger Reduktion der Nebenkosten des Kaufes. Haus 8 wird in belagsfertigem Zustand angeboten und verfügt über ca. 120 m² Wohnfläche, 5 Zimmern und Nebenräumen auf 2 Geschoßen. Raumaufteilung im Erdgeschoß / Wohnbereich: Eingangsbereich, Technikraum, Büro, großzügiger Wohn-Essbereich mit Küche und Ausgang auf die Terrasse, 1 WC mit Anschlussvorbereitung für ein Handwaschbecken und eine Dusche Raumaufteilung im Obergeschoß/ Ruhebereich: Flur mit zentral begehbaren Zimmern, davon 2 Kinder/Schlaf/Homeoffice/Zimmer, 1 Master- Bedroom mit Schrankraum, 1 großes  Badezimmer (Vorbereitung für Waschtisch, Badewanne, Dusche & WC) Terrassen/Gartenflächen: ca. 130 m²  Stellplätze: 2 vorgeschriebene Stellplätze sind im Kaufpreis inkludiert und zugeordnet Hinweis gemäß Energieausweisvorlagegesetz: Ein Energieausweis wurde vom Eigentümer bzw. Verkäufer, nach unserer Aufklärung über die generell geltende Vorlagepflicht, sowie Aufforderung zu seiner Erstellung noch nicht vorgelegt. Daher gilt zumindest eine dem Alter und der Art des Gebäudes entsprechende Gesamtenergieeffizienz als vereinbart. Wir übernehmen keinerlei Gewähr oder Haftung für die tatsächliche Energieeffizienz der angebotenen Immobilie.

Standort auf der Karte

Langenzersdorf, Österreich
Ausbildung
Gesundheitspflege
Freizeit

Hypotheken-Rechner

Zinssatz, %
Laufzeit des Darlehens, jahre
Kosten der Immobilie
Erste Zahlung, %
{{ initialPaymentCurrency }} USD
Bitte beachten Sie! Sie haben den Parameter Wohnkosten geändert in {{ differentPrice }}%. Dies wirkt sich auf die Relevanz der Berechnung der monatlichen Zahlungen für die aktuelle Immobilie aus. Zurücklegen
Zinssatz
{{ loanPercentValue.toLocaleString() }} %
Zinssatz
Darlehensbetrag
{{ mortgageAmount }} USD
Darlehensbetrag
Termin
{{ loanPeriodValue | pluralize("jahr", "jahre") }}
Termin
Monatliche Zahlung
{{ paymentPerMonth }} USD
Monatliche Zahlung
Stellen Sie alle Fragen, die Sie haben
Die Anfrage an den Makler senden
Danke! Ihre Anfrage ist eingegangen
Ich möchte diese Einrichtung sehen. Ist der Immobilienwert aktuell? Ich möchte mehr Informationen über das Objekt. Welche Kaufbedingungen gelten für Ausländer? Möchte mehr Fotos/Videos sehen. Ist ein Kauf auf Kredit/Hypothek möglich? Ist es möglich, eine Aufenthaltsgenehmigung zu erhalten?
Zurück zu Eine Anfrage hinterlassen
Ähnliche Objekte