Der neue Komplex von Villen am Natai Beach gibt Ihnen Entspannung und Inspiration in einer einzigartigen Lage am abgeschiedenen Natai Beach.
Hier finden Sie Komfort dank Technologie und Konnektivität, während Sie Natur und Ruhe genießen.
Inspiriert von der Farbe des Natai-Sandes, wird das Design auf einem monochromen Thema zu muffel Ablenkungen modelliert und geben Ihnen ein wahres Gefühl des Friedens.
Über das Projekt
15 Villen:
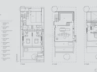
Alle Villen sind 3 Schlafzimmer und 3 Badezimmer, mit einem geräumigen Wohnzimmer, Essbereich, Küche, Sitzecke, privater Pool mit Garten und Parkplatz.
Das Management-Unternehmen bietet Rund-um-die-Uhr-Service für alle Gäste des Komplexes.
Ort:
Natai Beach liegt in der Provinz Phang Nga, in der Nähe von Phuket Island. Nur 30 Minuten vom internationalen Flughafen Phuket entfernt finden Sie einen unberührten und abgeschiedenen Strand. In der Nähe von Baba Beach Club, Santhiya Phuket Natai Resort & Spa, und Hotspring Beach Hotel & Spa. Es gibt auch eine große Auswahl an Restaurants und Geschäften.
Zahlungsplan:
