Umożliwiają przeglądanie zawartości witryny i uzyskiwanie dostępu do funkcjonalności. Tego typu pliki cookies wykorzystywane są wyłącznie w celu prawidłowego działania serwisu i nie są przekazywane podmiotom trzecim. Wyłączenie nie jest możliwe bez zakłócenia funkcjonowania serwisu.
Analityczne pliki cookie
Pomóż nam ulepszyć wydajność witryny, Twoje doświadczenie korzystania z witryny i uczynić ją wygodniejszą w użyciu. Informacje gromadzone przez tego typu pliki cookie są zbiorcze i dlatego anonimowe. Służy do dostarczania statystycznych wskaźników korzystania z witryny bez identyfikacji użytkowników.
Reklamowe pliki cookie
Pozwól nam obniżyć koszty marketingu i poprawić komfort użytkowania.
Realting.com wykorzystuje pliki cookie, aby usprawnić Twoją interakcję ze stroną internetową. Możesz skonfigurować, które pliki cookies będą zapisywane na Twoim urządzeniu.
Dowiedz się więcej
Plac mieszkalny w Elvirii, w dobrze znanej okolicy Santa María Golf, zaledwie krok od pola golfowego i wszystkich udogodnień, dobrze połączony i tylko kilka minut od Marbella i Puerto Banús, a także plaży. Ma dostęp z dwóch ulic.
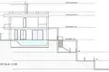
Pojemność budynku 30%, nadaje się do indywidualnej willi 7.5 m wysokości, co pozwala na budowę 326m2 + piwnica + tarasy + porche.
Istnieje dostępny projekt z licencją, do budowy łącznie 484.53m2 willi od 4 pięter.
Na parterze znajduje się wejście do przestronnego salonu i jadalni typu open- styl z kuchnią, pralnią i dużymi oknami prowadzącymi bezpośrednio do tarasów, ogrodów i basenu. Miałby również dwie sypialnie i dwie łazienki, garderoba, i dostęp do pierwszego piętra przez schody lub windę, gdzie byłoby jeszcze trzy sypialnie i dwie łazienki, wszystkie z garderoby i tarasy. Ponadto, z tego piętra, nie będzie dostęp do dużego solarium z obszaru Chill- out, grill, jacuzzi i niesamowite widoki panoramiczne.
W piwnicy znajduje się siłownia, łazienka, sala kinowa, winiarnia i prywatny garaż dla wielu samochodów. Dodatkowo, byłyby dwa wewnętrzne dziedzińce dostarczające naturalnego światła, czyniąc go bardzo jasnym.
Obszary zewnętrzne będą otoczone ogrodami i basenem z zadaszonymi i odkrytymi tarasami. - OP8585310-
Po kliknięciu przycisku "Potwierdź" otrzymasz debet w wysokości 50 realtek (5 EUR) na opłatę za Superlink z Twojego salda w myAlpari
Zapłać 5 EUR
Anuluj
Kliknij przycisk "Zapłać", zostaniesz automatycznie przekierowany na stronę doładowania, ponieważ nie masz wystarczającej ilości realtek na swoim saldzie
Superlike!
Ten artykuł został już oznaczony. Aby anulować superlink, kliknij "Anuluj".
Zwróć uwagę, że w przypadku anulowania superlinku, opłaty za zakupy nie zostaną zwrócone.
Usuń
Pozostawić na
Klikając "Unsubscribe" anulujesz superlink bez zwracania jakichkolwiek reelts na swoje saldo.
Udostępnij tę rekomendację!
Otrzymuj procent udanych transakcji, polecając nieruchomość za pomocą poniższych linków!