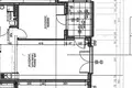
Venta apartamento, 2 habitaciones, 49,32 m2, Warszawa, Wilanów.
Presentamos un encantador apartamento de dos habitaciones con una cocina conectada al salón y un balcón, ubicado en una zona tranquila de la finca. La exposición sur garantiza abundante luz natural durante todo el día, creando un espacio acogedor perfecto para parejas o solteros que valoran la comodidad.
Complejo
Esta propiedad bien mantenida y cerrada de 2009 garantiza la seguridad y privacidad de sus residentes. El apartamento incluye una plaza de aparcamiento subterráneo disponible por un suplemento de 55.000 PLN.
Ubicación
Wilanów es un distrito único que combina comodidad urbana con espacio organizado. Los amplios callejones, cafés, restaurantes y zonas recreativas crean un ambiente incomparable. La proximidad al Palacio de Wilanów y las zonas verdes que caminan aumenta aún más el atractivo de esta ubicación.
Finanzas
El valor del apartamento y los costos adicionales relacionados con la plaza de aparcamiento son competitivos en comparación con otras ofertas en la zona.
Ventajas
Este apartamento es una opción ideal para aquellos que desean vivir en un espacio estéticamente agradable, apreciar la seguridad y la comodidad, y buscar un hogar lleno de compromisos. Wilanów no es sólo un lugar, es un estilo de vida. Llame ahora para programar una visita!
