Apartamento 3 habitaciones Smolice, Polonia

Smolice, Polonia, gmina Grabow
$170,487
$2,969/m²
;
Última actualización: 1/4/25

Localización

  • País
    Polonia
  • Región / estado
    Voivodato de Łódź
  • Barrio
    Łęczyca County
  • Ciudad
    gmina Grabow
  • Pueblo
    Smolice
  • Dirección
    48

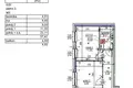
Características del objeto

Parámetros de los apartamentos

  • Precio por m²
    Precio por m²
    $2,969/m²
  • Piso
    Piso
    3
  • Rooms:
    Rooms:
    3
  • Espacio habitable
    Espacio habitable
    57 m²

Parámetros del edificio

  • Número de plantas
    Número de plantas
    6

Descripción

Apartamento directamente del desarrollador:
Apartamento de tres habitaciones en estado de desarrollo en el distrito La barba se encuentra en el tercer piso en un edificio de seis pisos con ascensor.

El apartamento en el estado de desarrollo consta de un amplio salón con cocina americana, que crea un espacio abierto ideal para la relajación y las reuniones sociales. La cocina está diseñada para proporcionar un lugar cómodo para cocinar y comer comidas. Está equipado con instalaciones eléctricas básicas y tomas de corriente, esperando la instalación de muebles de cocina y electrodomésticos según las preferencias del futuro residente.

El apartamento también tiene 2 dormitorios luminosos, que son un lugar ideal para descansar después de un día completo. Este espacio se adapta a las necesidades individuales y permitirá que el interior sea arreglado según la preferencia del residente. En los dormitorios hay tomas eléctricas e instalaciones, listas para conectar iluminación y dispositivos electrónicos.

El baño en el apartamento es funcional y espacioso. Tiene un lugar para instalar armarios y estantes que le permiten almacenar cosméticos y otros artículos esenciales.

El casco en el apartamento actúa como un espacio interior que conecta todas las habitaciones. Es un vestíbulo que proporciona privacidad a los residentes y proporciona un lugar para almacenar ropa y otros artículos esenciales. El casco está equipado con iluminación de techo y tomas eléctricas, lo que permite el uso gratuito de este espacio.

El apartamento también tiene un balcón, que es un lugar agradable en el aire libre. Es un espacio exterior que le da la oportunidad de relajarse y disfrutar del paisaje circundante. El balcón se puede arreglar según sus propias preferencias, por ejemplo, como un lugar para comer comidas al aire libre o como un jardín con flores y plantas.

El apartamento en el estado de desarrollo es una propiedad que espera la finalización y personalización por el futuro propietario. Ofrece habitaciones funcionales e instalaciones básicas, al tiempo que proporciona flexibilidad en la disposición interior según las preferencias y necesidades locales.

Fecha alta: 2023

LOCALIZACIÓN:
La inversión Livska 2 está perfectamente ubicada en términos de comunicación. Su mayor activo es la proximidad de paradas de autobús, estaciones SKM y estaciones de metro Brodno. La estación de tren SKM está a sólo 450 m de nuestra instalación. En pocos minutos se puede llegar a muchas escuelas, jardines de infancia, piscinas, tiendas y centros comerciales.

INVESTMENTO:
- 144 localidades de 28 m2 a 74 m2
- Lo siento. Jardines en el techo - zona recreativa disponible para todos los residentes
- Lo siento. Planta baja jardines
- Lo siento. Plazas de aparcamiento en el garaje subterráneo, posibilidad de carga de coches eléctricos
- 50 metros paradas de autobús
- 850 metros a la estación de metro Brodno
- 450 metros a la estación SKM
- Lo siento. Cerca rica oferta educativa, cultural y educativa

BUILDING:
Un moderno complejo residencial de 6 pisos fue creado en la parcela que pertenece al desarrollador. El edificio tiene un alto nivel de acabado y arquitectura innovadora. Dentro hay varios apartamentos, incluyendo dos niveles, con diseños y funcionalidad reflexivos. Las grandes ventanas hechas de materiales de alta calidad proporcionan mucha luz natural, y los balcones profundos y las terrazas verdes proporcionarán un lugar agradable para relajarse en el aire libre. Las escaleras son amplias, y hay espacios verdes únicos dentro del complejo.

LOCALE:
En la inversión, el desarrollador prestó especial atención a la funcionalidad y el cumplimiento de todas las normas de construcción. Los locales están equipados por encima de la norma para proporcionar un confort excepcional a los residentes. Videofonos coloridos, puertas de robo de alta calidad con portales iluminados y fibra óptica son sólo algunas de las comodidades adicionales que hacen atractivos los apartamentos. También las partes comunes están terminadas al más alto nivel. Asientos en pasillos, escaleras sólidas, iluminación elegante y ascensores cuidadosamente diseñados de una reconocida empresa forman todo, que es sinónimo de lujo y de alta clase.

ROAD ROAD ROOMS:
La inversión se distingue por la presencia de jardines en techos que están disponibles para todos los residentes. En estos espacios recreativos hay una variedad de vegetación, pavimentos, barbacoas (con parrillas, bancos y mesas), así como atractivas zonas de juegos con instalaciones probadas y seguras para niños. Además, hay duchas externas y aseos disponibles para la comodidad de los residentes. Además, se diseñaron zonas verdes tanto en partes comunes como en jardines adyacentes a viviendas de planta baja.

Posible financiación del programa seguro crédito 2%.



Localización en el mapa

Smolice, Polonia, gmina Grabow

Calculadora hipotecaria

Tipo de interés, %
Plazo del préstamo, años
Coste de la propiedad
Pago inicial, %
{{ initialPaymentCurrency }} USD
Atención Ha cambiado el parámetro del coste de la vivienda a {{ differentPrice }}%. Esto afecta a la pertinencia de calcular los pagos mensuales de la propiedad actual. Devuélvelo
Tipo de interés
{{ loanPercentValue.toLocaleString() }} %
Tipo de interés
Importe del préstamo
{{ mortgageAmount }} USD
Importe del préstamo
Fecha límite
{{ loanPeriodValue | pluralize("año", "años") }}
Fecha límite
Pago mensual
{{ paymentPerMonth }} USD
Pago mensual
Insight Estate
Pregunte lo que quiera
Envíe su solicitud al agente
¡Gracias! Su solicitud ha sido aceptada
Quiero ver esta instalación. ¿Está actualizado el valor del inmueble? Deseo más información sobre el inmueble. ¿Cuales las condiciones de compra para extranjeros? Me gustaría ver más fotos/vídeos. ¿Es posible comprar a crédito/hipoteca? ¿Obtendré un permiso de residencia si compro una vivienda?
Volver a Dejar una solicitud
Propiedades similares
Estudio 1 habitación en Varsovia, Polonia
Estudio 1 habitación
Varsovia, Polonia
Habitaciones 1
Área 32 m²
Le invito a conocer la oferta de un apartamento confortable, estudio con una superficie de 3…
$163,673
Dejar una solicitud
Cerrar
Por favor, dime que encontraste este anuncio en Realting.com
Agencia
Zaitseva Estates
Idiomas hablados
Русский, Polski
Apartamento 1 habitación en Varsovia, Polonia
Apartamento 1 habitación
Varsovia, Polonia
Habitaciones 1
Área 30 m²
En venta, un apartamento en Varsovia Praga-Norte situado en la planta baja de una casa de cu…
$149,123
Dejar una solicitud
Cerrar
Por favor, dime que encontraste este anuncio en Realting.com
Agencia
Zaitseva Estates
Idiomas hablados
Русский, Polski
Apartamento 2 habitaciones en Varsovia, Polonia
Apartamento 2 habitaciones
Varsovia, Polonia
Habitaciones 2
Área 36 m²
En venta, un apartamento de 2 habitaciones con una superficie de 35,89m2, situado en la 3a p…
$153,304
Dejar una solicitud
Cerrar
Por favor, dime que encontraste este anuncio en Realting.com
Agencia
Zaitseva Estates
Idiomas hablados
Русский, Polski
Apartamento 2 habitaciones en Cracovia, Polonia
Apartamento 2 habitaciones
Cracovia, Polonia
Habitaciones 2
Área 52 m²
Ideal para un inicio o una pareja – 2 habitaciones en la rana, listo para vivir! ¿Está busca…
$186,473
Dejar una solicitud
Cerrar
Por favor, dime que encontraste este anuncio en Realting.com
Agencia
Zaitseva Estates
Idiomas hablados
Русский, Polski
Apartamento 2 habitaciones en Poznan, Polonia
Apartamento 2 habitaciones
Poznan, Polonia
Habitaciones 2
Área 50 m²
Le recomiendo un 2 – apartamento tranquilo situado en Poznań en Green Dębcu – Limbowa Street…
$166,404
Dejar una solicitud
Cerrar
Por favor, dime que encontraste este anuncio en Realting.com
Agencia
Zaitseva Estates
Idiomas hablados
Русский, Polski
Apartamento 2 habitaciones en Cracovia, Polonia
Apartamento 2 habitaciones
Cracovia, Polonia
Habitaciones 2
Área 53 m²
Ofrecemos a la venta un amplio y luminoso apartamento en Prokocim, en un íntimo bloque bajo …
$194,835
Dejar una solicitud
Cerrar
Por favor, dime que encontraste este anuncio en Realting.com
Agencia
Zaitseva Estates
Idiomas hablados
Русский, Polski
Apartamento 3 habitaciones en Kostrzyn, Polonia
Apartamento 3 habitaciones
Kostrzyn, Polonia
Habitaciones 3
Área 86 m²
En venta ofrezco un apartamento muy amplio y luminoso de dos plantas de 85 m2 situado en la …
$180,898
Dejar una solicitud
Cerrar
Por favor, dime que encontraste este anuncio en Realting.com
Agencia
Zaitseva Estates
Idiomas hablados
Русский, Polski
Apartamento 2 habitaciones en Varsovia, Polonia
Apartamento 2 habitaciones
Varsovia, Polonia
Habitaciones 2
Área 37 m²
Apartamento de 2 piezas 36,6 m2 en Puławy 176A. 3 minutos en el metro Wilanowska
$166,962
Dejar una solicitud
Cerrar
Por favor, dime que encontraste este anuncio en Realting.com
Agencia
Zaitseva Estates
Idiomas hablados
Русский, Polski