Apartamento 43 m² Odesa, Ucrania

Ucrania, Odesa
$62,500
$1,453/m²
;
In CRM: 38344
ID del anuncio en el sitio web o en el CRM de la empresa
Última actualización: 30/4/26

Localización

  • País
    Ucrania
  • Región / estado
    Óblast de Odesa
  • Barrio
    Odesa Raion
  • Ciudad
    Odesa
  • Dirección
    Krasnova Street

Características del objeto

Parámetros de los apartamentos

  • Precio por m²
    Precio por m²
    $1,453/m²
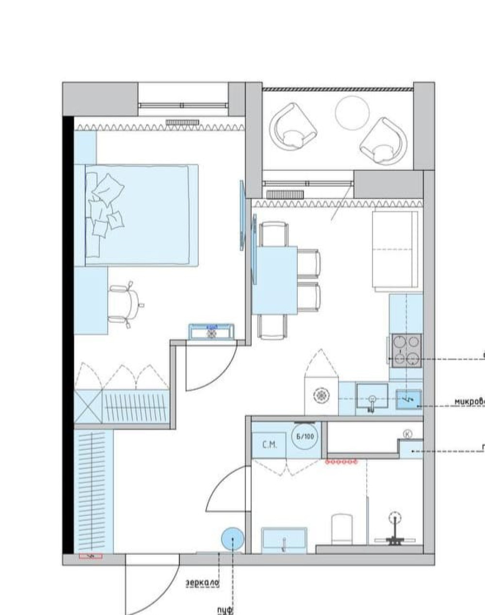
  • Área total
    Área total
    43 m²
  • Espacio habitable
    Espacio habitable
    20 m²

Descripción

38344 Venta apartamento de 1 dormitorio de 42.8 m2 en la nueva perla LCD 63 en Kadorr Sity en la calle Krasnov. - Nuevo complejo residencial de 24 plantas de clase empresarial - Apartamento en la planta 15. - Superficie: 42,8 m2 - Cocina - 12 m2 - Reparaciones de calidad - La zona luminosa de la sala de estar entra en la cocina del estudio con balcón y vistas al patio y a la pista de carreras. Apartamento sin muebles y equipamiento. Un guarda de agua contra las fugas. Superficie cerrada, aparcamiento subterráneo, fachada moderna. Amplios, videovigilancia, seguridad de las 24 horas. Una zona tranquila con infraestructura desarrollada. Salida conveniente en el territorio de los supermercados complejos, centro comercial, fitness, cerca del mercado, transporte. Hay una revisión de vídeo

Localización en el mapa

Ucrania, Odesa
Educación
Cuidado de la salud
Alimentación
Transporte
Finanzas
Ocio

Calculadora hipotecaria

Tipo de interés, %
Plazo del préstamo, años
Coste de la propiedad
Pago inicial, %
{{ initialPaymentCurrency }} USD
Atención Ha cambiado el parámetro del coste de la vivienda a {{ differentPrice }}%. Esto afecta a la pertinencia de calcular los pagos mensuales de la propiedad actual. Devuélvelo
Tipo de interés
{{ loanPercentValue.toLocaleString() }} %
Tipo de interés
Importe del préstamo
{{ mortgageAmount }} USD
Importe del préstamo
Fecha límite
{{ loanPeriodValue | pluralize("año", "años") }}
Fecha límite
Pago mensual
{{ paymentPerMonth }} USD
Pago mensual
HayatHayat
Volver a Dejar una solicitud
Propiedades similares
Apartamento en Odesa, Ucrania
Apartamento
Odesa, Ucrania
Área 30 m²
Parece un estudio de apartamentos con vistas al mar en el BRT. 24 / 24 planta, 3 sección, 30…
$57,000
Dejar una solicitud
Cerrar
Por favor, dime que encontraste este anuncio en Realting.com
Agencia
BPS Consulting
Idiomas hablados
English, Русский, Українська